查看完整案例

收藏

下载
Studio MAT Architects:障子(障しょう子じ,日语发音:[ɕo
d)ʑi])是日本传统建筑中使用的门、窗或房间隔板,由格子框架上的半透明(或透明)板材组成 。
最初,它们是为了分隔房间与房间,或室内与室外,但它们利用和纸面板“让光通过”的独特能力丰富了日本的家庭文化,成为家庭生活中不可或缺的一部分。
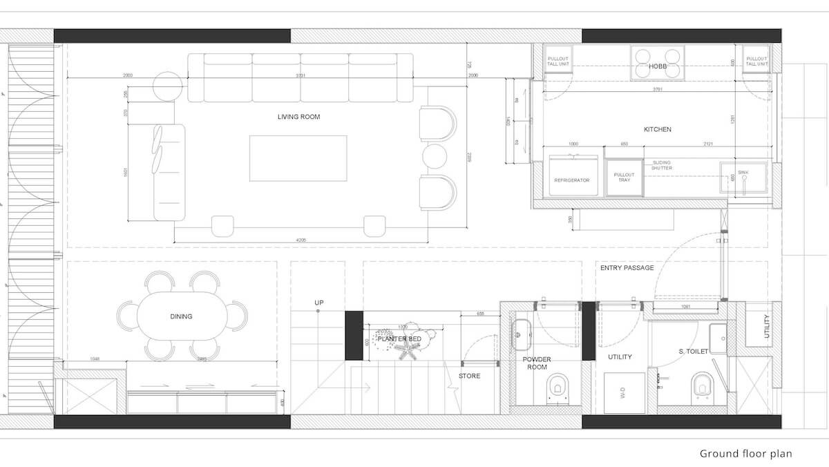
顾名思义,Shoji abode 是一座日本风格的住宅,采用极简设计,融合了印度背景。 这所房子坐落在孟买郊区,靠近浦那市,这座排屋是一个封闭社区的一部分。 客户的要求非常明确——打造一个远离城市、平静、舒缓、整洁的家。 这样它本质上是最小的,突出了空间的现有高度。
房子里的材料风格是一致的——石灰水墙、美国白蜡木地板、家具和衣柜。 我们在衣柜百叶窗中使用了障子纸(一种传统的手工宣纸)来增加半透明度。 窗帘和家具中的亚麻面料为空间增添了丰富迷人的质感
客厅是一个华丽的双高空间,铺有大理石地板。 休息区下方镶嵌着白色大理石。 美国白蜡木家具专为房屋定制设计,牢记空间的禅宗本质。 石灰水墙为空间增添了舒适的质感。 一进门,楼梯附近的竹子就吸引了你。 香蕉纸吊灯
客户喜欢招待他们的朋友和家人来参加游戏之夜或晚会,用餐区成为一个舒适的角落,可以坐下来与亲爱的人度过一个有趣的夜晚。
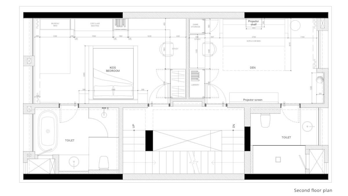
当我们搬到主卧室和客房时,微风徐徐的材料托盘仍在继续。 所有房间的衣柜百叶窗上都体现了障子的理念,宣纸(障子纸)夹在两层玻璃之间。 沿着美丽的美国白蜡木格子框架,这增加了空间的设计商和实用元素。 窗帘和家具中的亚麻面料为空间增添了丰富有趣的质感
与房子的其他部分相比,书房的感觉较暗。 这是一间多功能室,配有书房、投影仪屏幕和沙发床,使房间温馨舒适。
儿童房采用美丽的流行色彩,并有很多有趣的设计元素。 热带亚马逊壁纸搭配腮红,符合女儿的个性和喜好。
设计的重点是在采用简单简约的方法的同时,为家居带来平衡、宁静、和谐。 这所房子是一个极简主义的住所,当你穿过空间时会产生平静的感觉。
项目名称:Shoji House
建筑公司:Studio MAT Architects
项目地点:Pune, India
项目摄影:Kshan Collective
主笔建筑师:Harsh Soneji, Pratha Bhagat
设计团队:Pratha Bhagat, Harsh Soneji, Ria Chheda
室内设计:Studio MAT
建筑面积:2300 ft²
地块面积:2300 ft²
设计年份:2023
完成年份:2023
环境与机电:Studio MAT
景观设计:Studio MAT
灯光设计:Studio MAT
项目监督:Hemchandra Enterprises
项目可视化:Studio MAT
工具软件:AutoCAD, SketchUp
项目建造:Hemchandra Enterprises
主要材料:Australian white marble, American Ashwood, shoji paper, Lime plaster
业主甲方:Aditya Jha, Deeksha Singh
项目状态:Completed
项目类型:Residential › House
客服
消息
收藏
下载
最近












































