查看完整案例

收藏

下载
项目名称:荷兰de Boemerang小学
位置:荷兰
设计公司:EVA建筑师事务所
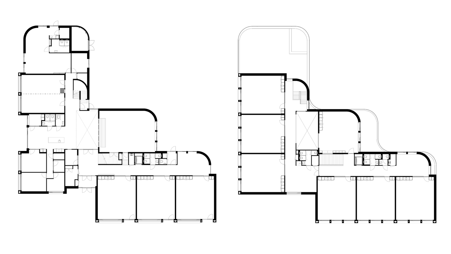
De Boemerang小学位于翁迪普,乌得勒支。翁迪普是一个工人阶级居住区,大部分地方都是绿色的。因此,当融入社区时,我们希望增加绿色植物,保留后广场的两棵大树,并使整个广场更适合居住。这个地区有一个主要是住宅建筑的正交分配区。学校的位置是这样一个住宅区的结束,它的正面,因此,融入了附近的正交设计语言和砖结构。通过将建筑从前面的人行道向后设置,为绿色的前院创造了空间。带有深凹的大窗户也在正面创造了绿化空间,你可以从里面往外看。在后面,远离街道的地方是广场。我们想保留这两棵大树,这两棵大树在附近提供了稀缺的树荫,是旧环境中唯一的绿色品质,学校的后部是围绕着树木设计的:建筑从树木站立的地方开始,并向外扩展。
对于立面,与城市正面形成对比,我们选择了一种柔和的设计语言,流畅的形状和温暖的木质立面。这创造了一个人性化的友好广场,蜿蜒的立面自动为上层和下层创造了不同的空间。广场本身也是由Buro Beuk设计和绿化的。Boemerang咖啡馆是学校的中心。这是你入学的地方,是学校和社区组织一般活动的地方,也是每个人聚会的地方。游戏室毗邻Boemerang咖啡馆,通过折叠一面大玻璃墙,这些空间可以连接起来进行更大的活动。从回旋镖咖啡馆,你去小组。一个大的空间使你很容易从所有的群体中确定自己的方向,你走向你进入一个群体的每一个走廊的光。拓宽走廊在教室外创造了集中的工作场所。我们用木材和平静的调色板保持了内部的朴素。
荷兰de Boemerang小学外部实景图
荷兰de Boemerang小学外部实景图
荷兰de Boemerang小学外部实景图
荷兰de Boemerang小学外部实景图
荷兰de Boemerang小学内部实景图
荷兰de Boemerang小学内部实景图
荷兰de Boemerang小学平面图
荷兰de Boemerang小学平面图
客服
消息
收藏
下载
最近











