查看完整案例

收藏

下载
项目名称:日本工程学院京都大学
位置:日本
设计公司:K.ASSOCIATES/Architects
工程学院京都大学,最初位于日本东北部的Hyakumanben主校区京都城市,已逐步转移到一个新的校园在桂,西部的一部分京都。这个新的桂城校园是用严格的形象控制建造的,为整个校园创造一个统一的主题。这次的项目是为桂校园建立一个新的图书馆。2015年,我们被指派提出建造这座图书馆的提案,并提交给文化和科学部。这个地点已经在整个校园规划中指定了。它面对着工程学院的办公楼侧楼,从远处可以看到一片竹林,街道京都东边的城市。第一个计划是结合工程学院的指导方针制定的。为了不阻挡从办公室一侧向东的视野,第一个计划是建造一个低矮的结构,仅比广场高一层。考虑到城市景观,图书馆设施的设计低于这个高度,并作为办公室侧楼的线性延伸。这些要点被不断地遵循,直到最后的计划被起草。然而,最终的计划不得不缩减到第一个计划的一半以下,这限制了我们提出一个替代方案,该方案包括为教师以及邻近公众提供图书馆设施的必要功能。所有其他功能只是作为未来扩展的选项提出的。
即使在最终的计划中,我们也确保了朝东的办公室侧楼的形象没有受到干扰,办公室侧楼的线性延伸得到了遵循,并且京都阅览室竹林上方的城市按照最初的提议得到了保护。此外,砖瓷砖被用于建筑外部,这是强制性的总计划桂校园。这种砖瓦饰面已经成为大学校园的基本规则,就像过去看到的那样京都技术与科学学院京都艺术大学,因此,我们在设计最终方案时遵循了这一规则。我们认为,这个项目需要一个与整个校园融为一体的建筑,包括外部细节,如广场和步行通道,而不是设计一个突出的建筑。历史悠久的校园京都理工学院,我们提出了这样的建筑空间,它与整个校园形象略有不同,但仍与之和谐,就像在KIT HOUSE项目中一样。然而,在这里的桂校园,逐步移动仍在进行超过10年,尚未完成。因此,我们得出的结论是,它是有意义的,不是呈现一个鹤立鸡群的建筑,而是通过创造一个谨慎的建筑作为公共空间,来搭建一个演奏和谐音调的舞台。这是培育这个新校园历史的方式。
日本工程学院京都大学外部实景图
日本工程学院京都大学外部实景图
日本工程学院京都大学外部实景图
日本工程学院京都大学内部实景图
日本工程学院京都大学内部实景图
日本工程学院京都大学内部实景图
日本工程学院京都大学内部实景图
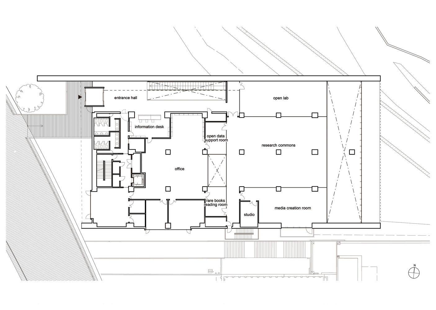
日本工程学院京都大学平面图
日本工程学院京都大学平面图
日本工程学院京都大学平面图
日本工程学院京都大学剖面图
日本工程学院京都大学立面图
日本工程学院京都大学立面图
客服
消息
收藏
下载
最近
















