查看完整案例

收藏

下载

翻译
Architects:Ponto de Apoio
Area:1894ft²
Year:2020
Photographs:André Mortatti
Manufacturers:Concresteel,Lumini,TM2
Lead Architects:Fernando Taborda, Regina Kikuchi
Concrete Structures:Grifa Engenharia
Hydraulic Installations:Fit Engenharia
Construction:Next Engenharia e Construções
City:Pinheiros
Country:Brazil
Text description provided by the architects. Pinheiros neighborhood, situated in the western zone of São Paulo city, stands as one of the most sought-after locations in the capital, owing to its cosmopolitan vibe and prime positioning near the city's main financial hubs, alongside a plethora of recreational, cultural, commercial, and transportation amenities. Over recent years, this district has undergone a rapid metamorphosis, with traditional houses and low-rise structures making way for towering, multi-use buildings, ushering in a new era of residential and commercial dynamics within this historical urban area.
Amid this lively urban landscape, the desire to live in a house is highly challenging, from searching for suitable land to the construction of a house that offers comfort and privacy amidst the towering skyline.
Despite the urban evolution, remnants of a past era endure in Pinheiros, with quaint rows of houses nestled within its urban fabric. In 2019, a family embarking on their home-building journey stumbled upon a house in a courtyard comprising ten houses in the heart of the neighborhood. House number 8, perched on a lot measuring 6.50 meters wide and 28.00 meters long, was available for acquisition. However, due to structural and maintenance deficiencies, its use was not possible. After acquiring the property, the decision was made to raze the existing single-story structure and erect a new residence that would fulfill the aspirations of the young family.
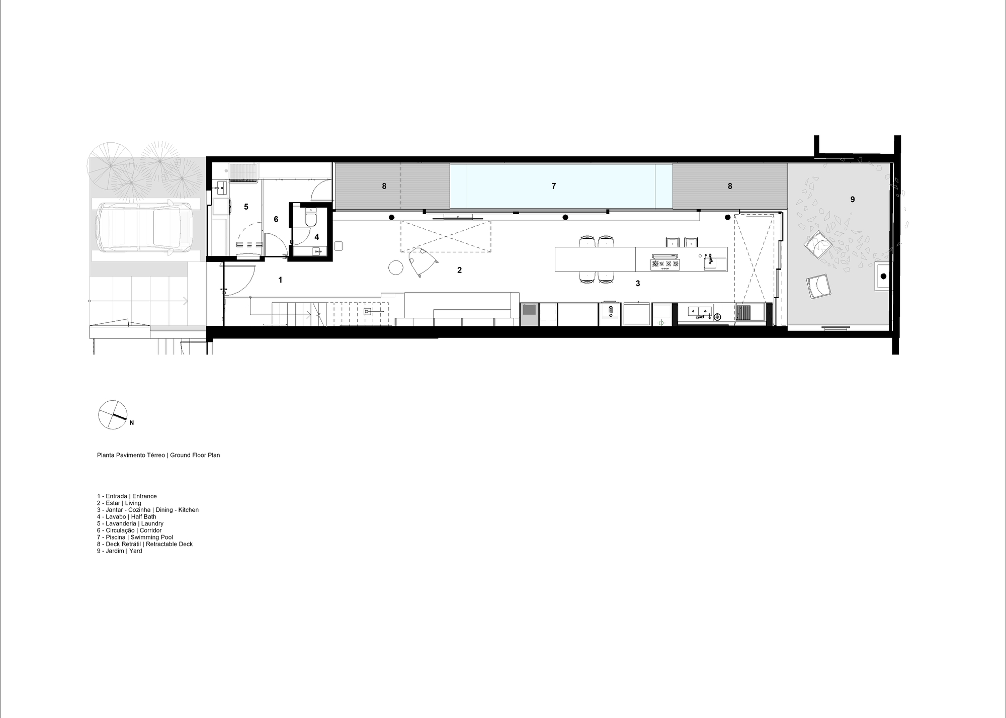
Designed to accommodate their lifestyle, the residence is organized on two levels, totaling an area of 176.00 square meters. Guided by the principle of privacy, a closed volume dominates the main facade, with interior spaces illuminated by translucent glass.
The construction is elevated from the ground as the other existing houses to prevent flooding which used to be an issue in this area.
The ground floor unfolds into the social area, seamlessly integrating with the outdoor space through wide sliding windows that delineate the interior from the pool area, built in the lateral setback of the residence. Extending from the social area, the kitchen effortlessly transitions to the rear garden, accentuated by a double-height ceiling that fosters a sense of spatial continuity between the interior and exterior areas. The kitchen features a countertop barbecue grill, complemented by a hot tub in the garden creating an inviting leisure area. The artist's graffiti, admired by residents, adorns the wall of a double-height area.
Along the social area, dining room, and kitchen, sliding windows were installed on a concrete bench that blurs the boundary between indoor and outdoor areas. A retractable deck was installed over the pool.
The laundry, half-bath, and access to the upper floor are located at the front of the residence. Ascending to the upper level unveils the private domain, comprising an en-suite bedroom, a standard bedroom, an office, a social bathroom, and a television room – a versatile space that can easily transform into an additional bedroom through sliding doors.
The office, visually linked to the lower social area, is filled with natural light coming from the windows on the side facade.
Accessible from the main bedroom, the rooftop features a solarium as well as the air conditioning technical area and the water tank.
Project gallery
客服
消息
收藏
下载
最近































