查看完整案例

收藏

下载
项目名称:比利时农业大学校园的改造
位置:比利时
建筑师: evr-建筑师
照片:斯蒂安·博拉埃特
农业大学校园的改造是一个雄心勃勃的可持续发展的项目布鲁塞尔。它引入了光、空气和空间。在整个翻修过程中,尽可能可持续地选择材料,并尽最大努力保存和再利用现有建筑的材料。新扩建部分的屋顶完全采用绿色屋顶,并在花园中增加了额外的绿色空间,总面积超过1500平方米2布鲁塞尔市中心的绿色空间。该项目AG校园是一个翻新的现有建筑的地面上的非常中心布鲁塞尔。校园是开会和学习的地方,包括教室、会议室、一个大休息区、两个大礼堂等等。为了实现一个受支持和可持续的项目,从一开始就提出了一个完整的、横向的和综合的方法。该项目的主要目标是引入光线、空间、与自然的联系,并为建筑使用者带来舒适。在翻新之前,底层是一系列独立的黑暗房间。没有任何形式的互动。新校园希望开放和交流,以开放的方式促进“共同生活”和“共同工作”。为此,底层进行了彻底的重新设计。
从灵活性、日光、与现有内部和外部区域的关系、日照和空间性等方面对建筑的现有扩建进行了重新思考。现有建筑和扩建部分之间有两个宽敞的天井。这种介入不仅提供了充足的日光,还创造了景观,并在室内和室外、自然和季节之间组织了一种亲密的、不断变化的关系。花园也进行了翻新,增加了几个大型绿地以促进生物多样性。除此之外,扩建部分的新屋顶是绿色的,总共增加了1500平方米2城市中心的绿色空间。该项目还试图在环境方面设定最高水平,使用太阳能电池板作为可再生能源,缓冲或再利用雨水,以及彻底再利用建筑材料。对于再利用和建筑材料的建议,我们得到了转子的帮助。转子是一个合作的设计实践,调查材料环境的组织。我们认为强调这种项目是至关重要的,这样它可以作为未来项目的激励措施。
比利时农业大学校园的改造外部实景图
比利时农业大学校园的改造外部实景图
比利时农业大学校园的改造外部实景图
比利时农业大学校园的改造外部实景图
比利时农业大学校园的改造外部实景图
比利时农业大学校园的改造外部实景图
比利时农业大学校园的改造外部实景图
比利时农业大学校园的改造外部实景图
比利时农业大学校园的改造外部实景图
比利时农业大学校园的改造外部实景图
比利时农业大学校园的改造外部实景图
比利时农业大学校园的改造内部实景图
比利时农业大学校园的改造内部实景图
比利时农业大学校园的改造内部实景图
比利时农业大学校园的改造内部实景图
比利时农业大学校园的改造内部实景图
比利时农业大学校园的改造内部实景图
比利时农业大学校园的改造内部实景图
比利时农业大学校园的改造内部实景图
比利时农业大学校园的改造内部实景图
比利时农业大学校园的改造内部实景图
比利时农业大学校园的改造内部实景图
比利时农业大学校园的改造内部实景图
比利时农业大学校园的改造内部实景图
比利时农业大学校园的改造内部实景图
比利时农业大学校园的改造
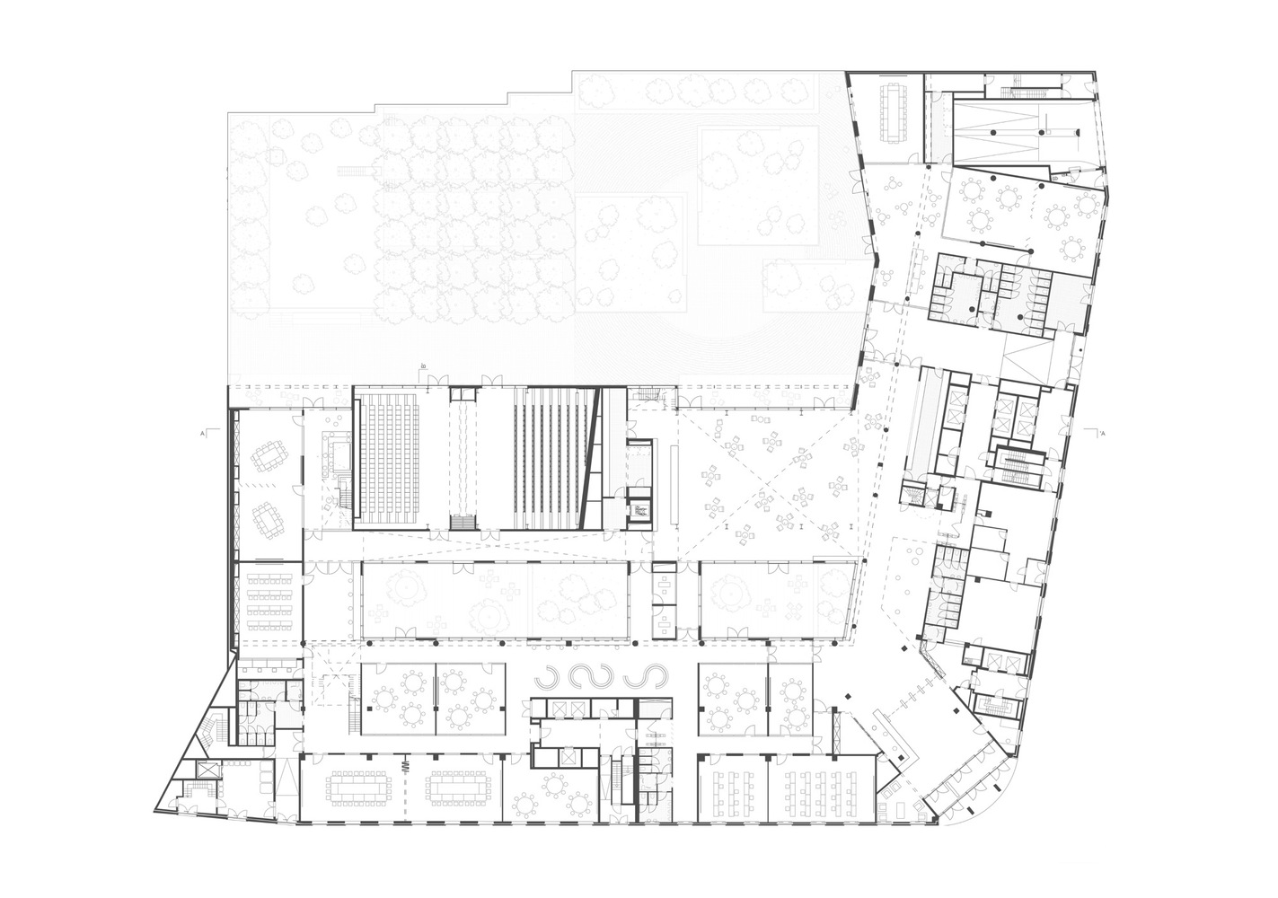
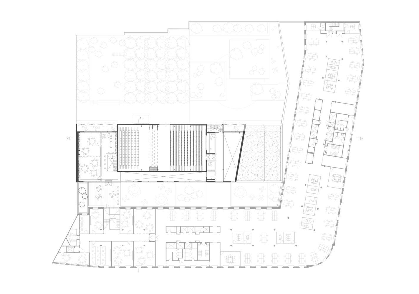
比利时农业大学校园的改造平面图
比利时农业大学校园的改造平面图
比利时农业大学校园的改造平面图
比利时农业大学校园的改造剖面图
比利时农业大学校园的改造剖面图
比利时农业大学校园的改造剖面图
客服
消息
收藏
下载
最近



































