查看完整案例

收藏

下载
项目名称:巴利亚多利德艺术学校
位置:巴利亚多利德
设计公司:Estudio Primitivo Gonzalez | eGa
摄影:路易斯·迪亚兹
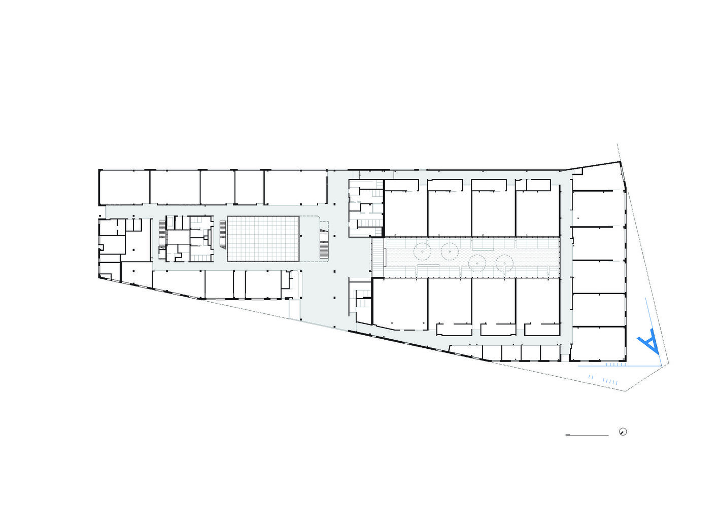
新艺术学院 The New School of Arts巴利亚多idis adjacent to the convent of the catch carmelites 。根据历史计划,图纸将成为协商会议的一部分,条件是你从一开始就对项目进行了表征。走向城市,建筑物展示自己作为墙的建筑;走向内心,一个庭院的建筑。该项目致力于尊重其历史背景。然而,它为创造力,青春和梦想提供了空间。项目的本质是这种二元性的物化。The exterior is clad in black brick 外面是黑砖一种纹理,材料和颜色的建筑,创造了一种围绕和保护创作的内心世界的神秘气氛。室内设计是对立的思想,作为一个技术空间,白色和明亮,对工业建筑,生产和创作有正式的暗示。The layout mimics the courtyard architecture,灵感来自附属修道院。两个法院的第一个在两个层面上阐明了课堂区域,而另一个,轻松地,在一个折叠的混凝土外壳下组织了研讨会。外壳是约束进入一个直线的外观在外墙上, 折叠自己, 就像它落入庭院, 创建一个破碎的轮廓, 导致在宽阔的窗户, 俯瞰庭院。我们想象学生在这个中心空间分享他们的经验,就像现在年轻,充满活力和多才多艺的创造一样。
庭院可以是展览,播放或互动的空间,更新这个传统类型学。大堂是建筑物不同用户之间的交叉点。不同的艺术学科走到一起的地方。它规范了进入和退出,但也成为一个会议场所,其中公共程序被视为图书馆或食堂。这个空间特征与教室的庭院相关联,在那里可以举行会议和活动。大堂是建筑物不同用户之间的交叉点。不同的艺术学科走到一起的地方。它规范了进入和退出,但也成为一个会议场所,其中公共程序被视为图书馆或食堂。这个空间特征与教室的庭院相关联,在那里可以举行会议和活动。考虑到建筑物的位置相对于城市结构的优势,一个小福利广场被赠送给城市。这为年轻人创造了会议空间,但也为公民创造了会议空间。这个小广场,过度放大的字母形成ART标志,将允许学生坐下来聊天,吃三明治或有乐趣。他们在街上占据自己的位置,他们成为公共空间的一部分,激活建筑。该建筑设定了背景, 和学生自己将采取行动的活动作为索赔为城市的其余部分.作为一个项目系统,它继续从相邻的修道院学习庭院建筑。
其中一个庭院将教室区域分为两个高度,而另一个较大的庭院在弯曲的混凝土平面下组织研讨会。这个平面在立面上保持一个正直的轮廓,而向内则产生一个破碎的轮廓,产生大窗户回到庭院。我们设想年轻的学生在这个中心空间分享他们的经验,作为一个年轻,充满活力和多功能的创造力。庭院可以是展示,行动或相互联系的橱窗。一个传统的,更新的台风方案。大厅是建筑物不同使用者之间的切点;这是教训汇集的地方。它规范了出入口,但也成为一个聚会场所,图书馆或咖啡馆等常见项目的所在地。这个空间有一个双层高,与教室的庭院相连,在那里可以举行会议和活动。利用建筑物融入城市地块的位置,为城市提供了一个小型的欢迎广场。我们创造了一个会议空间,这将是年轻人的,也是城市的。带有艺术标志的小广场将允许学生在课堂入口或出口处见面,坐在街上闲聊,占用公共空间,并激活建筑。建筑设置一个背景,和学生自己的活动,这将是城市的其余部分的索赔。
巴利亚多利德艺术学校外部实景图
巴利亚多利德艺术学校外部实景图
巴利亚多利德艺术学校外部实景图
巴利亚多利德艺术学校外部实景图
巴利亚多利德艺术学校外部实景图
巴利亚多利德艺术学校外部实景图
巴利亚多利德艺术学校外部实景图
巴利亚多利德艺术学校外部实景图
巴利亚多利德艺术学校外部实景图
巴利亚多利德艺术学校外部实景图
巴利亚多利德艺术学校外部实景图
巴利亚多利德艺术学校内部实景图
巴利亚多利德艺术学校内部实景图
巴利亚多利德艺术学校内部实景图
巴利亚多利德艺术学校内部实景图
巴利亚多利德艺术学校内部实景图
巴利亚多利德艺术学校内部实景图
巴利亚多利德艺术学校内部实景图
巴利亚多利德艺术学校内部实景图
巴利亚多利德艺术学校内部实景图
巴利亚多利德艺术学校内部实景图
巴利亚多利德艺术学校平面图
巴利亚多利德艺术学校平面图
巴利亚多利德艺术学校平面图
巴利亚多利德艺术学校平面图
巴利亚多利德艺术学校剖面图
巴利亚多利德艺术学校剖面图
客服
消息
收藏
下载
最近






























