查看完整案例

收藏

下载
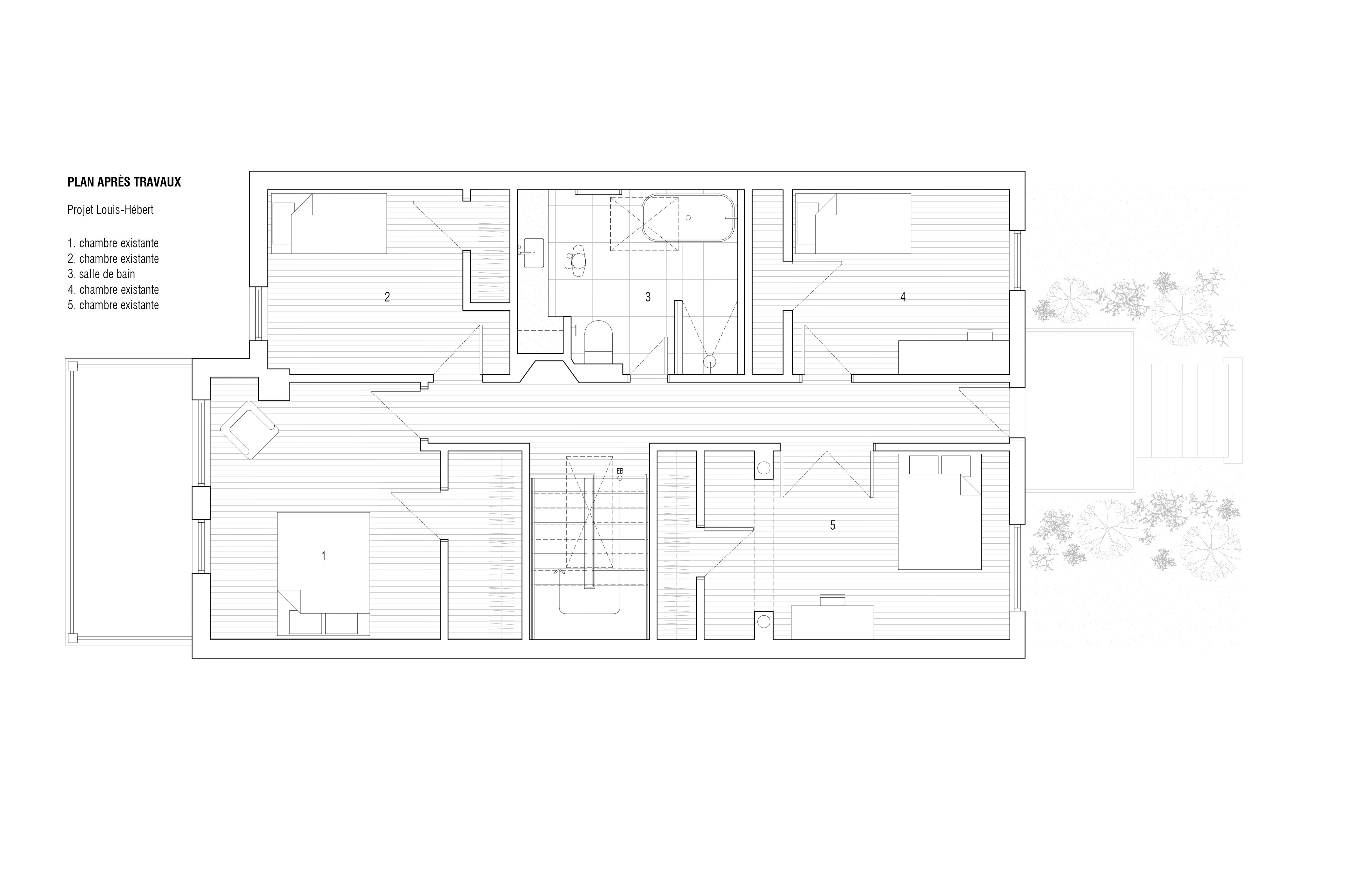
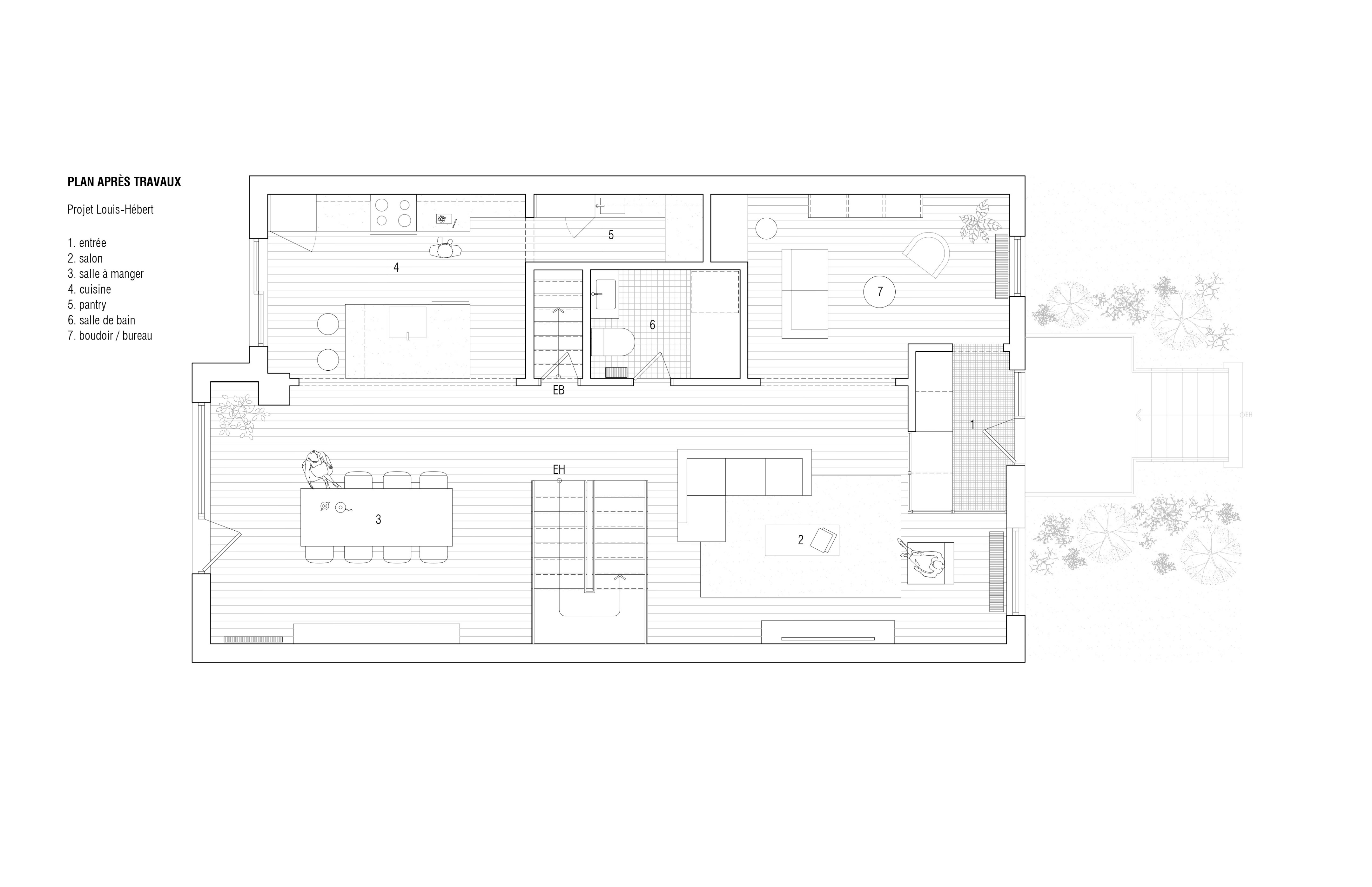
Vives St-Laurent 展示了其对位于蒙特利尔 Rosemont 社区的 Louis-Hébert 住宅的改造,该住宅以其轻盈和简约而引人注目。 它原本是一座复式公寓,经过建筑师的精心规划,于 15 年前进行了初步翻修。 该公司的任务反映了对现有结构的调整以及对一楼和楼上浴室的彻底翻新。 事实上,除卧室外,所有空间都经过重新设计,以满足五口之家的需求。
平面与结构图:
设计师:Vives St-Laurent
坐落:Montreal / Canada / 2023
语言:English
客服
消息
收藏
下载
最近




















