查看完整案例

收藏

下载
项目名称:重庆石子山中小学综合体
位置:重庆
设计公司:STWD十拓建筑规划设计事务所
建筑的原始场地是一片狭长土坡,西侧的快速路及周边环绕的高层住宅群给场地带来了强烈的压迫感。综合体服务于两个校园的特性又使其需综合考量不同人群使用的流线和空间感受。这些来自外部与内部的需求都需要在现实的场地上寻找到一种具备设计张力与弹性的回应。基于对场地的直观印象,我们希望建筑与地势可以达成和谐的平衡关系,结合两个校园的分区布置的策略,在校园整体规划中将综合体放置于场地中的最高处的山顶,再顺应地势于山地两侧布置中学和小学,使其能同时服务于两个校区。与传统的老师“教”为出发点不同,我们以学生的“学”为设计的出发点,将对教育的关注落在偶发性的“交流”上,从而激发唤醒受育者的潜在能力。综合体设计在形体上强调雕塑感的营造,通过螺旋上升的切割手法,强化了上升的势能。同时切割后生成的大量灰空间,成为了一个天然的舞台或事件发生器。
传统教育建筑设计往往出于安全考量,利用围墙将校园与城市隔绝,使校园与城市的紧密联系难以维系。而教育建筑作为城市公建中的重要一环,恰恰承担着当代中国城市化进程中重新缝合周边社区亲密关系的的社会性使命。设计利用场地的特殊地势,以综合体统领整个校园,打破一般教育建筑的局限性,把校园有机地“编织”进周边的社区环境。综合体作为学校对外展现自身魅力与文化的窗口,打破了千篇一律的城市街景,创造了具有层次感的街道界面,丰富了周边社区居民的生活图景。综合体之于社区,犹如帕提农神庙之于雅典卫城——当居民在社区街道中一瞥综合体,蔽体于大体量建筑所营造的场所感中,此刻校园的文化价值彰显无遗,它以一种非常具有包容性和征服力的感受影响着整个社区,乃至整个城市。
重庆石子山中小学综合体外部实景图
重庆石子山中小学综合体外部实景图
重庆石子山中小学综合体外部实景图
重庆石子山中小学综合体外部实景图
重庆石子山中小学综合体外部实景图
重庆石子山中小学综合体外部实景图
重庆石子山中小学综合体外部实景图
重庆石子山中小学综合体外部实景图
重庆石子山中小学综合体外部实景图
重庆石子山中小学综合体外部实景图
重庆石子山中小学综合体外部实景图
重庆石子山中小学综合体外部实景图
重庆石子山中小学综合体外部实景图
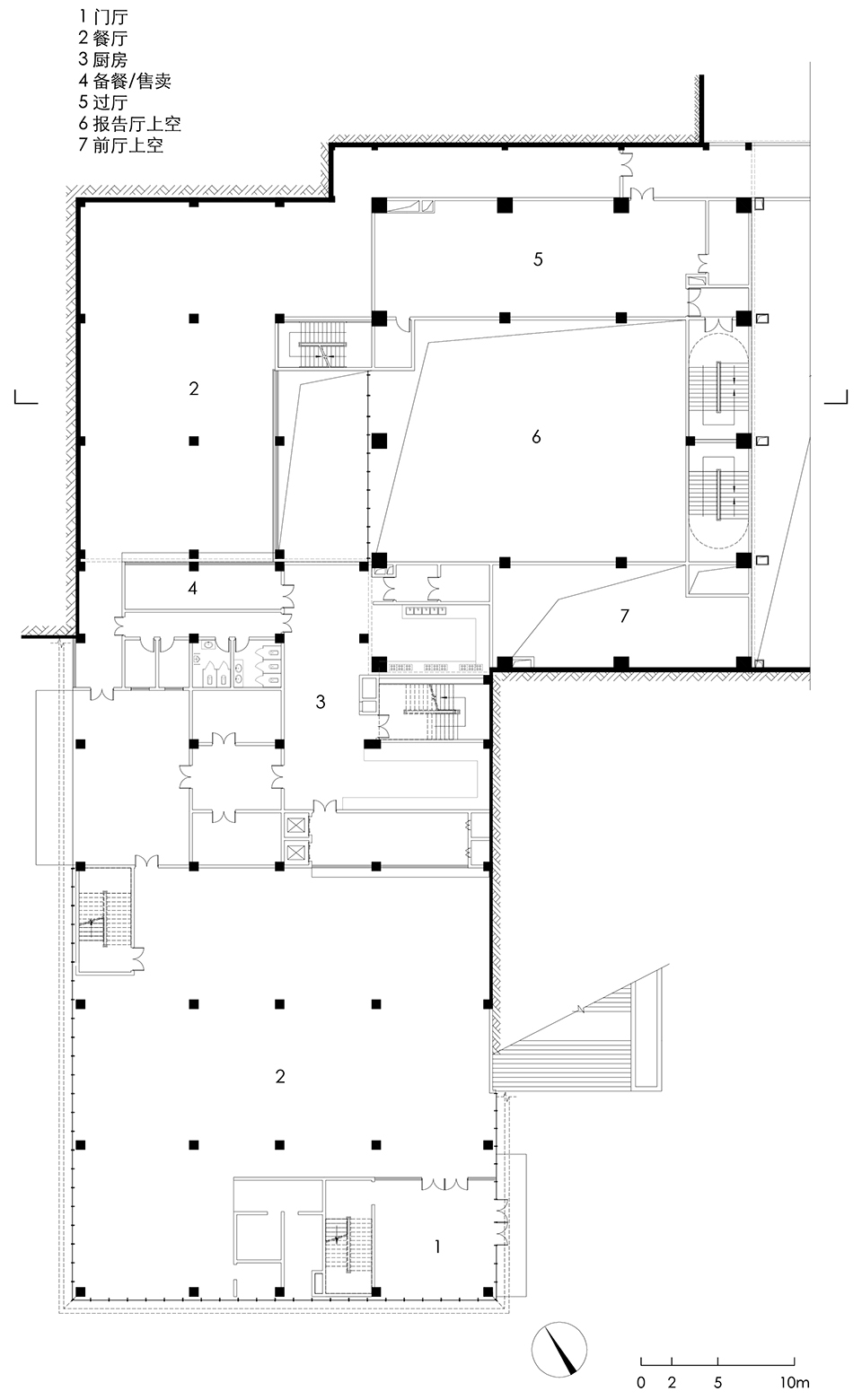
重庆石子山中小学综合体平面图
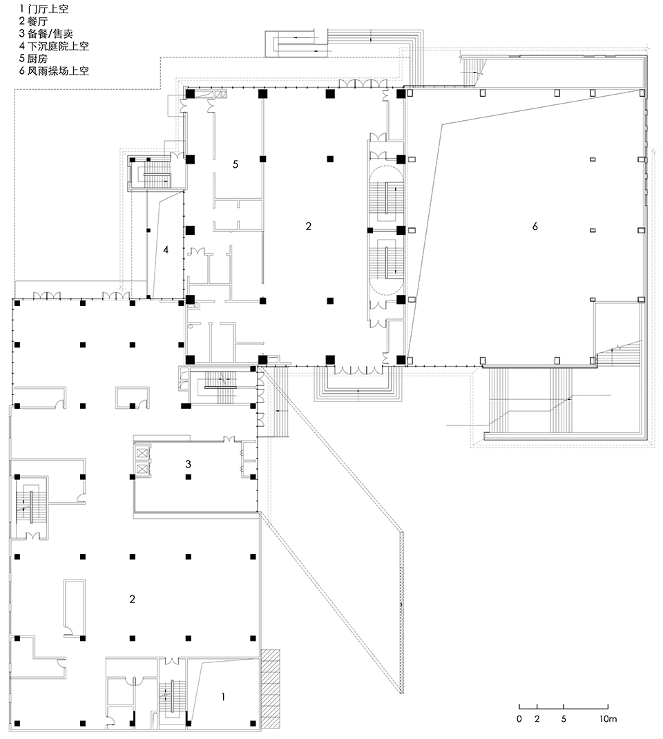
重庆石子山中小学综合体平面图
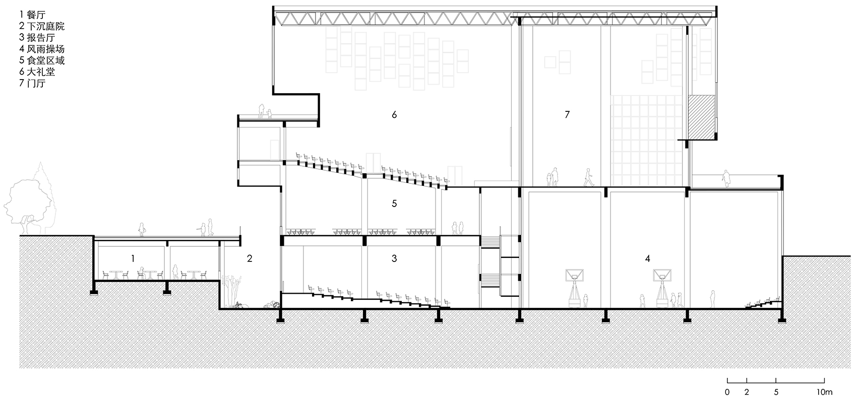
重庆石子山中小学综合体剖面图
重庆石子山中小学综合体立面图
重庆石子山中小学综合体立面图
重庆石子山中小学综合体立面图
客服
消息
收藏
下载
最近






















