查看完整案例

收藏

下载
项目名称:美国Sid Richardson寄宿制学院
位置:美国
设计公司:Barkow Leibinger
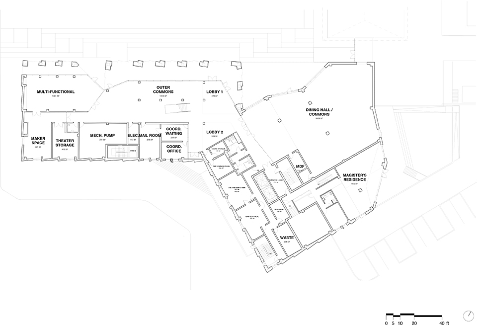
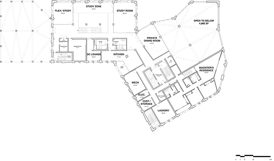
Sid Richardson学院现有学生宿舍楼建于1971年,由Neuhaus和Taylor建筑事务所设计,本项目的落成补充并完善了学校的住宿功能,成为了莱斯大学在快速发展的休斯顿校园中的里程碑。作为建筑领域的孵化器,莱斯大学在支持前瞻性建筑方面有着悠久的历史,从1910年由Cram、Goodhue和Ferguson设计的总体规划,到50-60年代的现代主义以及80年代Michael Graves、James Sterling、Cesar Pelli等建筑师为校园添加的后现代主义建筑,再到近期一系列由建筑师Michael Malzahn、Thomas Phifer和艺术家James Turrell设计的创新建筑,都足以证明这一点。全新的学院为该校区编织了一个多样化的社会和文化社区网络,其建筑群由三栋高度不同的建筑体量组成,包括:学生宿舍、学习和活动空间、娱乐设施、餐厅、办公室,以及校长公寓和花园。纵观这座高低错落的建筑综合体,共包含两栋分别为12层与5层的住宅楼,以及一座带有露台的双层活动楼。
这三栋建筑巧妙地组合在一起,形成了城市与校园之间的媒介,将校园的尺度从主街的高层医疗中心过渡到Sid Rich广场。住宅楼共向师生们提供了312个床位、3间辅导员公寓和一间助教公寓。公共区域均被规划在底层,进而将三栋建筑的底部楼层以公共空间的形式统一在一起。较为低矮的建筑中设有工作室和活动空间,屋顶设有大型露台,这座建筑作为学院面向公众的门户,在公共区域与住宅生活区域之间形成了空间的过渡与衔接。屋顶露台的设计想法由学生与设计团队一同提出,旨在为居住在这里的师生以及来访的客人们提供一处理想的社交聚会场所。建筑立面成锯齿状由砖材构成,这种砖材被称为St. Joe砖,在新奥尔良地区的校园建筑设计中十分常见。砖材立面不仅创造出温暖的质感,同时底部楼层交错、上部楼层平铺的砌筑模式也为建筑赋予了独特的肌理。顺砌法与水平和垂直方向的交错砌法在立面上创造出富有节奏感的图案效果。陶土板制成的遮阳板补充了砖材立面,并为较低的楼层提供了额外的遮阳。
露天拱廊面向广场,以及混凝土露天阶梯平台开放。该平台区域将为广场提供舒适的运动和休闲坐台及观景平台。无柱餐厅大厅作为学院内的主要社交空间,可容纳300人。近似扇形的屋顶被结构分割成一系列三角形,这种设置不仅为空间塑造出引人注目的焦点,同时也将这个制造相遇与相聚的空间统一起来。整体建筑的设计均围绕着学院的历史、现有建筑的野兽派风格、Sid Rich学院塔楼的城市化规模、开窗形式以及所用材料展开。露台遮阳结构呼应了餐厅天花板的设计,以三角形百叶为特色,并在结构中嵌入了光伏模块系统。这种设置实现了可持续的设计理念,在炎热潮湿的季节为室外露天咖啡区提供了荫凉。有围墙的庭院则保护了院长居住区的隐私,使该区域远离街道的喧嚣,并形成荫凉舒适的居住环境。
美国Sid Richardson寄宿制学院外部实景图
美国Sid Richardson寄宿制学院外部实景图
美国Sid Richardson寄宿制学院外部实景图
美国Sid Richardson寄宿制学院外部实景图
美国Sid Richardson寄宿制学院外部实景图
美国Sid Richardson寄宿制学院外部实景图
美国Sid Richardson寄宿制学院外部实景图
美国Sid Richardson寄宿制学院外部实景图
美国Sid Richardson寄宿制学院外部实景图
美国Sid Richardson寄宿制学院外部实景图
美国Sid Richardson寄宿制学院外部实景图
美国Sid Richardson寄宿制学院外部实景图
美国Sid Richardson寄宿制学院外部实景图
美国Sid Richardson寄宿制学院外部实景图
美国Sid Richardson寄宿制学院外部实景图
美国Sid Richardson寄宿制学院外部实景图
美国Sid Richardson寄宿制学院外部实景图
美国Sid Richardson寄宿制学院外部实景图
美国Sid Richardson寄宿制学院外部实景图
美国Sid Richardson寄宿制学院内部实景图
美国Sid Richardson寄宿制学院内部实景图
美国Sid Richardson寄宿制学院内部实景图
美国Sid Richardson寄宿制学院内部实景图
美国Sid Richardson寄宿制学院内部实景图
美国Sid Richardson寄宿制学院内部实景图
美国Sid Richardson寄宿制学院内部实景图
美国Sid Richardson寄宿制学院内部实景图
美国Sid Richardson寄宿制学院内部实景图
美国Sid Richardson寄宿制学院内部实景图
美国Sid Richardson寄宿制学院内部实景图
美国Sid Richardson寄宿制学院内部实景图
美国Sid Richardson寄宿制学院内部实景图
美国Sid Richardson寄宿制学院内部实景图
美国Sid Richardson寄宿制学院内部实景图
美国Sid Richardson寄宿制学院内部实景图
美国Sid Richardson寄宿制学院内部实景图
美国Sid Richardson寄宿制学院平面图
美国Sid Richardson寄宿制学院平面图
美国Sid Richardson寄宿制学院平面图
美国Sid Richardson寄宿制学院平面图
美国Sid Richardson寄宿制学院平面图
客服
消息
收藏
下载
最近












































