查看完整案例

收藏

下载
项目名称:日本RY保育园
位置:日本
设计公司:HIBINOSEKKEI + Youji no Shiro
以「培育热爱故乡之心和想象力的寺庙园」为概念,位于冈山县冈山市可容纳135名儿童的改建保育园。很久以前寺庙和附近居民就保持着良好的亲近关系,整个社区守护着孩子们成长。寺庙不仅是人们来祈祷参拜的地方,也是大家平时散步购物,休闲娱乐的场所。孩子们每天在这里玩耍游戏,和当地居民产生交流,培养了养育自己的故乡的眷恋之情。然而随着时代的发展,这样的紧密连接也变得日渐稀薄,彼此之间交流的景象也逐渐消失。有种说法是学习「学ぶ」这个词汇的词源是单词模仿「まねぶ(真似ぶ)」,通过在日常生活中模仿身边的人,不断吸收各种事物的知识和经验得到成长。 观察比自己大一些的孩子,学习他们的身体活动方式,观察大人,学习规矩和礼节,观察附近的居民学习当地文化。如此孩子们的社交能力也得到了培养。
这一次的设计计划,通过将庭园和参拜道路并列分布,产生和当地居民交流会话的机会,培养孩子们基本的交流能力。保育室正对绵延向神社的参拜道路,配置了大大的窗户,孩子们观察参拜者的姿态并模仿,与经过的人挥手打招呼,生起对这片地区的兴趣,产生对家乡的喜爱依恋之情。二楼的幼儿保育室和三楼的婴儿保育室使用网状游戏设施连接,孩子们能够自由往来,不同年龄阶段的孩子之间也能积极产生交流。小一些的孩子观察大一些的孩子,产生憧憬之情,大一些的孩子因为被憧憬产生自信以及作为大孩子的自觉心。加工材料使用了铜粉,采纳了寺庙日式传统要素。根据年月会发生变化的素材让孩子们生起疑问和好奇心,促进孩子们不断有新的发现。纵向的格子设计让孩子们能感受雨水,阳光和风,丰富了孩子们的感性。孩子们通过在园舍中生活感受日本四季的变化和时间的流逝,还能磨练感性促进学习。
日本RY保育园外部实景图
日本RY保育园外部实景图
日本RY保育园外部实景图
日本RY保育园外部实景图
日本RY保育园外部实景图
日本RY保育园内部部实景图
日本RY保育园内部实景图
日本RY保育园内部实景图
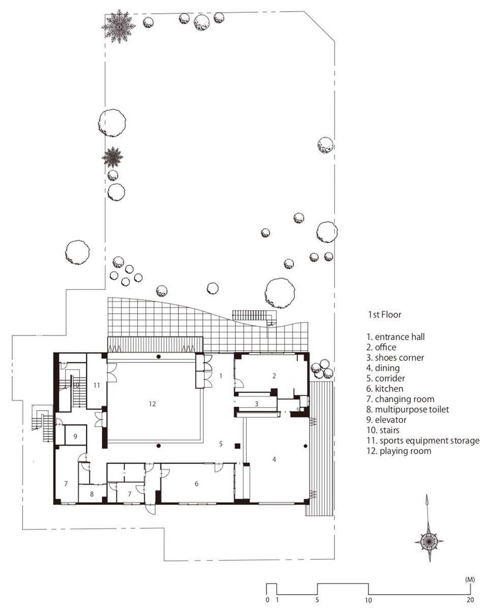
日本RY保育园平面图
日本RY保育园平面图
日本RY保育园剖面图
日本RY保育园剖面图
日本RY保育园立面图
客服
消息
收藏
下载
最近
















