查看完整案例

收藏

下载
项目名称:泰国Panyapiwat管理学院Eec校区
位置:泰国
建筑师: 建筑师49
照片:天空|地面自由度
Panyapiwat管理学院的目标是将该机构扩展为支持人力开发的中心,以满足东部特别开发区(EEC)工业部门的制造需求。该校园的目标是在99-rai地区容纳多达5000名学生,并为未来的发展扩张做好准备。由于没有明确的校园扩建计划或建议的用户数量,主要的挑战是创建一个灵活的设计,可以适应各种功能、用途和活动。“返璞归真|向自然学习|知识无处不在”的设计理念被应用于创造一个环境,通过简单地与自然和谐相处来鼓励体验式学习,并通过融入自然来帮助创造一个有利于知识和经验交流的环境。通过专注于在自然环境中为学生和教师创建协作空间,用户可以获得知识、交流想法和创造新的创新。这强调了“知识无处不在”的概念,而不仅仅是在教室里。还有支持最新学习技术的空间,以及可以轻松适应各种用途的各种区域。
自项目开始以来,从总体规划到建筑设计、M&E系统和景观建筑,被动设计的概念在建筑中得到了展示。所有这些都有助于研究和与自然的联系。注重可持续性和保护自然,仔细规划建筑用途和方向,减少热量,最大限度地减少对空调空间的需求。总体规划包括建筑之间的绿色空间,并鼓励使用可再生资源,如雨水保留和中水回用。绿色屋顶减少了建筑物内的热量以及周围地区的热岛效应。项目设计旨在提高用户对节能措施的认识,例如,通过分配停车位和推广使用自行车道。此外,天然原材料的利用需要不太复杂的制造和构造过程。化学品的使用,如外墙涂料,也仅限于促进项目的环保形象。强调使用本地植物的景观设计减少了维护,并且有机生长。这是受宫胁博士的自然森林种植概念的启发,在这个概念中,大树是从幼苗开始种植的,而不是完全长成后移植到项目上的。这种方法确保了树木在未来的可持续性和长寿性。
泰国Panyapiwat管理学院Eec校区外部实景图
泰国Panyapiwat管理学院Eec校区外部实景图
泰国Panyapiwat管理学院Eec校区外部实景图
泰国Panyapiwat管理学院Eec校区外部实景图
泰国Panyapiwat管理学院Eec校区外部实景图
泰国Panyapiwat管理学院Eec校区外部实景图
泰国Panyapiwat管理学院Eec校区外部实景图
泰国Panyapiwat管理学院Eec校区外部实景图
泰国Panyapiwat管理学院Eec校区外部实景图
泰国Panyapiwat管理学院Eec校区外部实景图
泰国Panyapiwat管理学院Eec校区内部实景图
泰国Panyapiwat管理学院Eec校区内部实景图
泰国Panyapiwat管理学院Eec校区内部实景图
泰国Panyapiwat管理学院Eec校区内部实景图
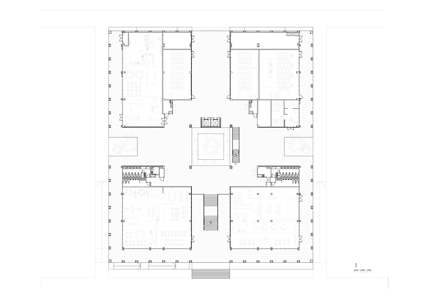
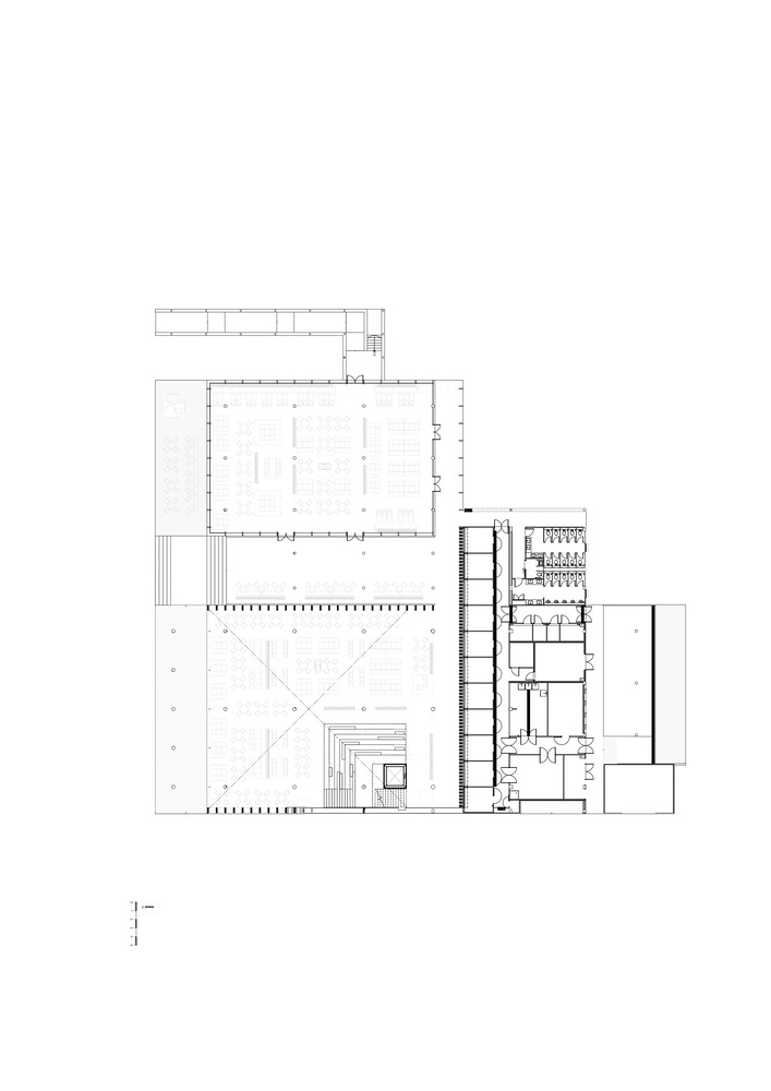
泰国Panyapiwat管理学院Eec校区平面图
泰国Panyapiwat管理学院Eec校区平面图
泰国Panyapiwat管理学院Eec校区平面图
泰国Panyapiwat管理学院Eec校区平面图
泰国Panyapiwat管理学院Eec校区平面图
泰国Panyapiwat管理学院Eec校区平面图
客服
消息
收藏
下载
最近























