查看完整案例

收藏

下载
项目名称:宁波英伦外籍人员子女学校
位置:宁波
设计公司:宁波市建筑设计研究院有限公司
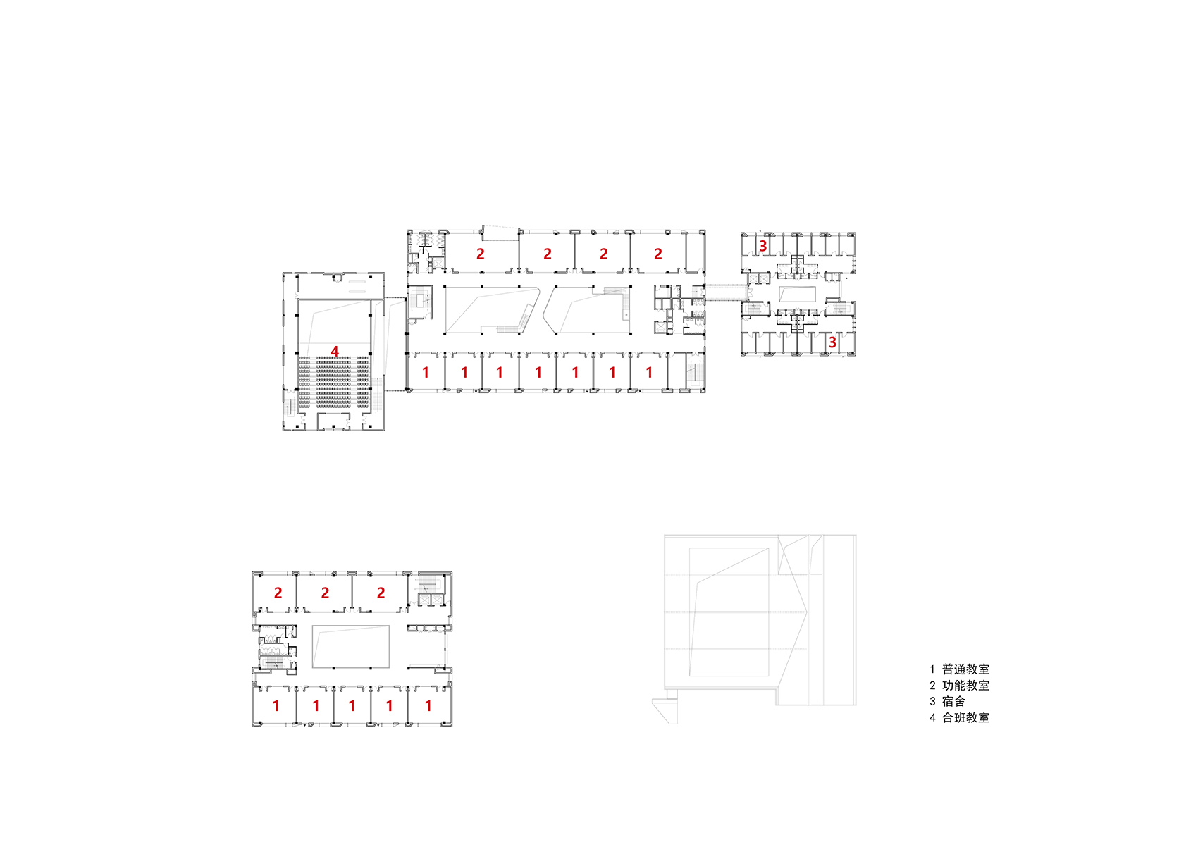
宁波英伦外籍人员子女学校,是一所专门为来甬工作的外籍及港澳台人士子女所设立的综合性国际学校。学校容纳了45个班共1000名学生及100名教工;涵盖了3岁至18岁孩子的四个教学阶段(学前幼儿园、小学、初中及高中)。校园占地面积为2.3万平方米,总建筑面积共3.29万平方米。位于剑兰路以西,光华路以北,宁波诺丁汉大学附属中学以南地块,因校园地块面积较小室外运动空间不足,通过两座钢结构桥梁与北侧的宁波诺丁汉大学附属中学连接,共享其运动场。传统校园空间设计中存在形式单一、空间封闭及氛围较差等一系列缺陷。我们希望营造一个国际化、氛围化、个性化、共享化的教育空间来将校园设计得以升级。充分考虑周边环境及场地形状,将教学楼布置在地块北侧临河。建筑分布在场地四周,中间围合出一个主广场,围合形式对空间进行了限定,围合空间具有凝聚、界定和私密性。考虑到学校运营将采用纯英式教育体系,建筑设计也相应采用开放性、个性化、多元化式空间营造,在校园空间中极力塑造应对国际化教育诉求的复合型空间。
1、2 号教学楼及公共教学楼组成的教学区主要分布在北侧及西侧,东侧为宿舍楼及综合配套(室内运动场、食堂及屋顶篮球场等)。各幢建筑单体均通过二层平台及连廊串联成整体。底层尽可能多的设置架空空间,满足学生活动、交通流线及校车停靠的需要。建筑师认为教育指导思想的变革带来教学方法的变革,由此必然对教学空间提出新的、符合变革的要求。现将校园设计的构成因素加以划分,可以大致划分为基本教学环境和人际交流环境。这二者基本组成了校园的室内、外环境。基本教学环境, 强调内部关系。教学楼采用中庭布局,不同尺度的楼梯台阶提供了行走和讨论空间,带来自然采光并降低建筑能耗。校园主要划分为东侧教学区及西侧生活配套区两大块。教学区北侧为1号教学楼,主要用于幼儿及小学教学;南侧的 2号教学楼,2 层以下为行政办公楼层,3 层及以上主要用于初中高中教学,在资源共享的同时,也使得教学和行政空间巧妙划分。一层的行政大厅与校园主入口呼应,营造无边界学习空间,师生们可以进行聊天、讨论、休息,营造了自由、开放的教学氛围。多功能厅设置大舞台,满足国际学校较多汇报演出的需要。
采用阶梯方式保证视线的畅通,同时抬升的底部为一层的幼儿园教室引入阳光。人际交流环境,强调户外活动及人际交往。把篮球场引入综合楼三层屋顶,既加强了与周边运动场地的联系又把运动元素引入平台,使得平台整体色彩多样,更添活力。60M 跑道布置在 1 号教学楼一层架空层,综合楼布置屋顶篮球场机室内活动场,尽可能的在局促的用地范围内提供更多的活动空间。我们采用现代英伦的建筑风格,体现英伦“国际”学校属性,并与周边建筑(宁诺附中)建立联系。建筑整体以现代英伦的立面风格展现学校国际化特色,造型兼顾现代与传统,外墙以红色石材面砖为主要材料,局部利用灰色铝板来点缀;细节处理上通过独特的内凹窗及双坡金属屋面等现代英伦元素来刻画建筑的体块,营造空间上实用又有英伦特色并与周边建筑完美协调的学校建筑。学校不仅是教育的承载空间,更是学生童年的记忆空间。宁波英伦外籍人员子女学校正是带着这样的初衷,营造了一个适用于国际化教育,不同于传统校园,并能为师生提供更多交流活动空间的人性场所。
宁波英伦外籍人员子女学校外部实景图
宁波英伦外籍人员子女学校外部实景图
宁波英伦外籍人员子女学校外部实景图
宁波英伦外籍人员子女学校外部实景图
宁波英伦外籍人员子女学校外部实景图
宁波英伦外籍人员子女学校外部实景图
宁波英伦外籍人员子女学校外部实景图
宁波英伦外籍人员子女学校外部实景图
宁波英伦外籍人员子女学校内部实景图
宁波英伦外籍人员子女学校内部实景图
宁波英伦外籍人员子女学校内部实景图
宁波英伦外籍人员子女学校内部实景图
宁波英伦外籍人员子女学校内部实景图
宁波英伦外籍人员子女学校内部实景图
宁波英伦外籍人员子女学校内部实景图
宁波英伦外籍人员子女学校内部实景图
宁波英伦外籍人员子女学校平面图
宁波英伦外籍人员子女学校平面图
宁波英伦外籍人员子女学校平面图
宁波英伦外籍人员子女学校平面图
宁波英伦外籍人员子女学校平面图
宁波英伦外籍人员子女学校平面图
客服
消息
收藏
下载
最近

























