查看完整案例

收藏

下载
项目名称:德国库夫里校园
位置:德国
设计公司:choban Voss Architekten
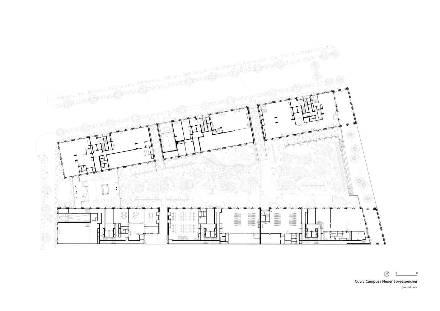
位于柏林-克罗伊茨贝格区Cuvrystrasse 50-51的场地面积约为9800平方米,从Schlesische Strasse延伸至Spree河岸。奥伯鲍姆桥和东区画廊只有几分钟的步行路程。在这里,根据赖因哈德·穆勒的城市设计和乔班·VOSS·阿奇特克滕的规划,创建了一个多功能的办公园区,其中有办公空间、美食和零售,以及一个公共开放的景观内院,可以俯瞰鲁道夫基兹的全景。该建筑的结构和façade的设计直接参照了该建筑在前城市港口区的位置。浅色的熟料立面是对Osthafen工业建筑的一种参考:它们借鉴了现有开发中仓库的物质性。该建筑群由两座七层建筑组成,呈圆锥形向水面开放。每个街区由三栋房子组成。最后三层是楼梯状的台阶式回廊,有长长的露台。朝着Schlesische街,一个稍微凹进去的玻璃连接建筑填补了两个体量之间的空隙,游客从这里进入明亮的、光线充足的大厅。通往两个街区的垂直通道是楼梯核心和两部电梯,而通往地下室的通道是地下停车场的两个独立入口,一个来自Schlesische Strasse,另一个来自Cuvrystrasse。延伸至码头墙的建筑可以通过拱廊从两侧进入。绿色的内院在白天向公众开放,宽阔的公共河岸提高了居住质量。
德国库夫里校园外部实景图
德国库夫里校园外部实景图
德国库夫里校园外部实景图
德国库夫里校园外部实景图
德国库夫里校园外部实景图
德国库夫里校园外部实景图
德国库夫里校园外部实景图
德国库夫里校园外部实景图
德国库夫里校园外部实景图
德国库夫里校园外部实景图
德国库夫里校园外部实景图
德国库夫里校园外部实景图
德国库夫里校园外部实景图
德国库夫里校园外部实景图
德国库夫里校园外部实景图
德国库夫里校园内部实景图
德国库夫里校园内部实景图
德国库夫里校园平面图
德国库夫里校园平面图
德国库夫里校园剖面图
德国库夫里校园剖面图
德国库夫里校园立面图
德国库夫里校园立面图
德国库夫里校园立面图
德国库夫里校园立面图
客服
消息
收藏
下载
最近




























