查看完整案例

收藏

下载
”用料讲究、做工精细、
淡中求美、闲适惬意“
广州,兴于珠江。华润置地的广州白鹅潭悦府,位于三十公里珠江的起点,又占据着三江交汇的绝佳位置。这种江景,既有空间纵深,也超越了时间,是老广心中的”无可替代“。
对生活的场所,广东人可不仅仅只有“居住”这一功能性层面的需求,而是在其中逐渐注入了对精神层面的高追求。就如同传承两千多年的粤菜,讲究 “用料讲究、做工精细” 同时,亦追求 “淡中求美、闲适惬意” 。DIA将这一理念融入到此次楼王户型室内设计的角角落落。
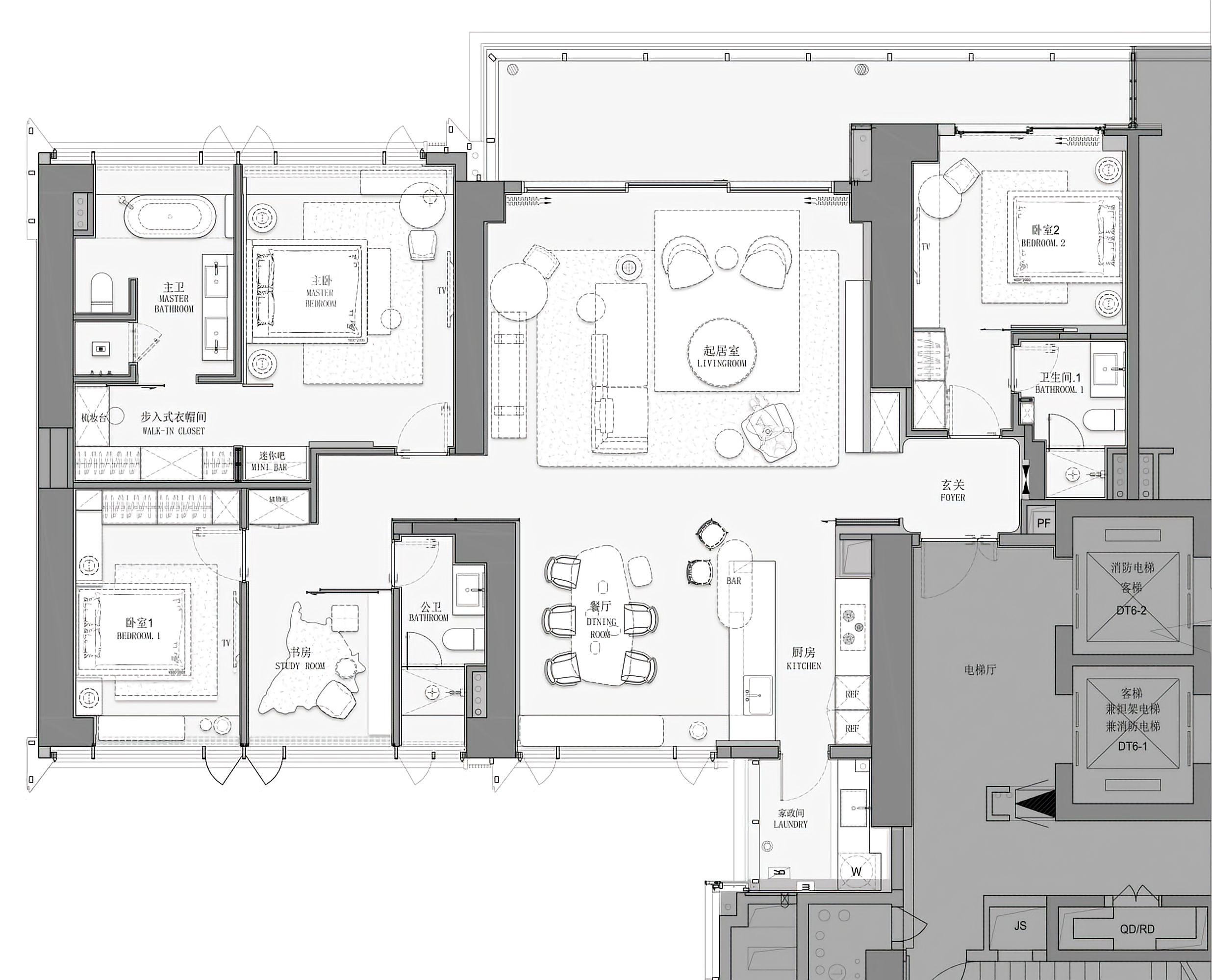
DIA此次负责的243户型,位于30层面向珠江的楼王户型。它拥有3.3米建筑层高、11.5米宽的超大阳台和2个面向珠江的无敌景观卧室套房,整个珠江前后航道最精华的部分尽收于此。
从户型平面中可以看到,整个户型面宽超大而进深较浅,使全屋自然采光充足、通风极佳。联通而方正的厨房、餐厅和7米宽大横厅非常适合注重家庭生活的老广人。3个卧室均为套房布局,完全是以酒店的行政套房的高度打造居家环境。另有一间书房可兼作多种功能使用,灵活多变。
▽户型平面
用材以天然的石材、木饰面和浅灰色墙布为主,点缀局部缝线皮革,清雅中带有自然温润的气息。
▽材质意向
玄关是以圆润的弧角皮革墙面围合而成。并且隐藏了能容纳儿童推车、行李箱等大件的收纳空间。隐蔽门后,是次卧的入口。
餐厅和敞开式厨房与起居空间构成一个方正的整体,形成家庭活动的公共空间。必要的时候,拉起格栅移门可以把厨房和餐厅与客厅隔离开。
▽格栅移动门示意
客厅在大沙发的背后,亦留有书写休闲的温馨角落,让客厅成为全家人聚集交流的区域。
天然石材的精美花纹从吧台延续到窗台,与电视剧背景墙相互呼应构成流动的水墨感包裹整个空间。
书房是留给主人独处的空间,听一曲老歌品一杯醇酒,留给自我一方空间。亦可根据需求适应多种功能。
卧室的墙面也是由皮革包裹。精致细腻的肌理熨帖抚慰着归家的人。温和的灯光下,孕育着每一晚的酣眠。主卧套房里不仅有常见的步入式衣帽间,更是根据酒店行政套房的规格为主人精心配置了迷你吧。
其余卧室也都以柔和的米灰色调简洁统一。临窗一盏灯,映衬珠江两岸万家灯火,寄托无限依恋。
拥有独立浴缸、双台盆、淋浴间的超大主卫,纯净的黑白灰配色。酒店行政套房的氛围,在家即可享受。
正要发出此文之际,喜闻白鹅潭悦府在《2023年克而瑞中国房地产企业产品力排行榜》中,名列”十大高端作品“和”十大人气作品“。作为参与项目的一员,实感与有荣焉。特此记之。
业主单位:华润置地华南大区广州公司
甲方团队:袁怡、宋涛、谷佳阳、程晓曦、周扬、江久怀、吴浩、金星、陈天、李哲、杜盛勇
项目位置:广东省广州市白鹅潭
主创设计:张健
设计团队:张炜玉、徐嘉颢、邢晗、李宽
软装设计:谈翼鹏、林理忠、刘天晴
完成时间:2023年10月
项目摄影:鲁哈哈
主创设计:张健
软装设计:谈翼鹏
设计师:张炜玉
ABOUT DIA
DIA丹健国际是由中德多位设计师合作成立的国际化设计团队,在深圳、上海、德国Herford均设有创作团队和顾问团队。DIA主要从事高端酒店、办公、住宅、会所、商业空间等公共空间的室内设计,是华润、华侨城、融创、招商、融信等一线地产商长期战略合作伙伴,拥有如上海苏河湾、北京东直门8号、融创北京壹号院、深圳华侨城新天鹅堡、深圳前海双子湾等一系列重量级作品。DIA自成立起一直坚持自我、坚守品质,并以其良好的信誉和稳健的作风赢得了业内一致赞誉。
客服
消息
收藏
下载
最近






















































