查看完整案例

收藏

下载
项目名称:格拉斯哥雷德建筑格拉斯哥艺术学院
位置:格拉斯哥
设计公司:斯蒂文·霍尔建筑师事务所
里德大楼与查尔斯·罗纳·麦金托什1909年的建筑形成了互补的对比格拉斯哥艺术学院——打造一种共生关系,其中每个结构都提升了另一个结构的整体品质。薄半透明的材质与麦金托什建筑的砖石形成鲜明对比——大量的光线表达了学校在城市肌理中的活动,体现了艺术的前瞻性。从里到外同时进行——满足项目的功能需求和心理需求——从外到内——与城市校园和对面的麦金托什大楼联系起来——设计体现了学校对城市肌理的渴望。麦金托什以创造性的方式对建筑部分的光线进行了令人惊叹的处理,这启发了人们从不同的角度对建筑体量进行规划的方法。工作室/车间是建筑的基本构件。空间的定位不仅反映了它们相互依赖的关系,也反映了它们对自然光的不同需求。工作室位于北立面,有大的朝北倾斜玻璃,最大限度地获得理想的高质量漫射北极光。
对自然光没有相同质量要求的空间,如餐厅和办公室,位于南侧,通过应用遮阳可以平衡对阳光的获取和居住者的需求以及空间的热性能。“光的驱动空隙”允许结构、空间调制和光的整合。“驱动空”光柱通过建筑的深度传递自然光,通过天空不断变化的强度和颜色提供与外部世界的直接连接。此外,他们提供了垂直流通的建设,消除了空调的需要。沿着南立面,在麦金托什主工作室的同一高度,一个Machair形式的景观长廊给了学校一个向城市开放的外部社会核心。带有一些石头的自然植被将水引入一个小的循环水池,这个水池将斑驳的阳光反射到室内的天花板上。贯穿新里德大楼的“连接回路”鼓励了对学校运作至关重要的部门之间的“创造性摩擦”。阶梯式坡道的开放线路连接了所有主要空间——大堂、展览空间、项目空间、演讲厅、研讨室、工作室、工作室和非正式聚会和展览的绿色露台。
格拉斯哥雷德建筑格拉斯哥艺术学院外部实景图
格拉斯哥雷德建筑格拉斯哥艺术学院外部实景图
格拉斯哥雷德建筑格拉斯哥艺术学院外部实景图
格拉斯哥雷德建筑格拉斯哥艺术学院外部实景图
格拉斯哥雷德建筑格拉斯哥艺术学院外部实景图
格拉斯哥雷德建筑格拉斯哥艺术学院外部实景图
格拉斯哥雷德建筑格拉斯哥艺术学院外部实景图
格拉斯哥雷德建筑格拉斯哥艺术学院内部实景图
格拉斯哥雷德建筑格拉斯哥艺术学院内部实景图
格拉斯哥雷德建筑格拉斯哥艺术学院内部实景图
格拉斯哥雷德建筑格拉斯哥艺术学院内部实景图
格拉斯哥雷德建筑格拉斯哥艺术学院内部实景图
格拉斯哥雷德建筑格拉斯哥艺术学院内部实景图
格拉斯哥雷德建筑格拉斯哥艺术学院内部实景图
格拉斯哥雷德建筑格拉斯哥艺术学院内部实景图
格拉斯哥雷德建筑格拉斯哥艺术学院内部实景图
格拉斯哥雷德建筑格拉斯哥艺术学院内部实景图
格拉斯哥雷德建筑格拉斯哥艺术学院内部实景图
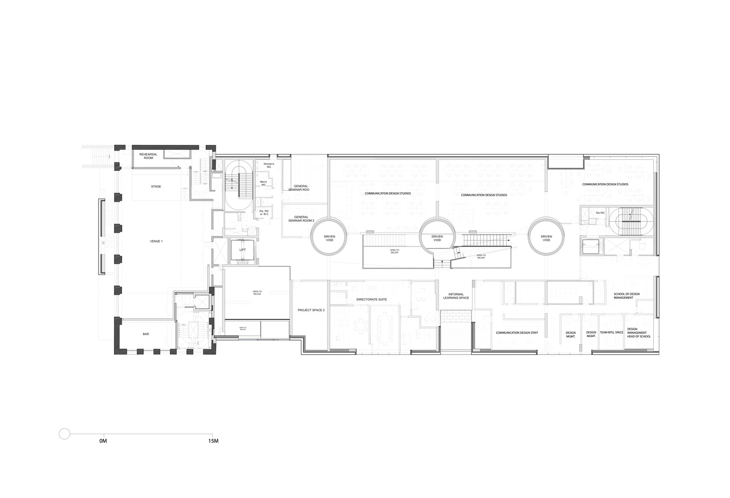
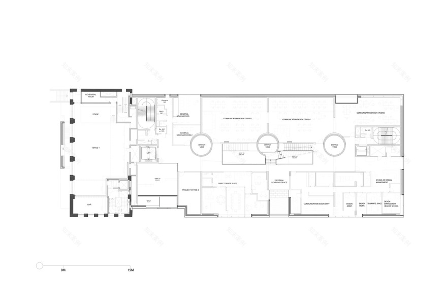
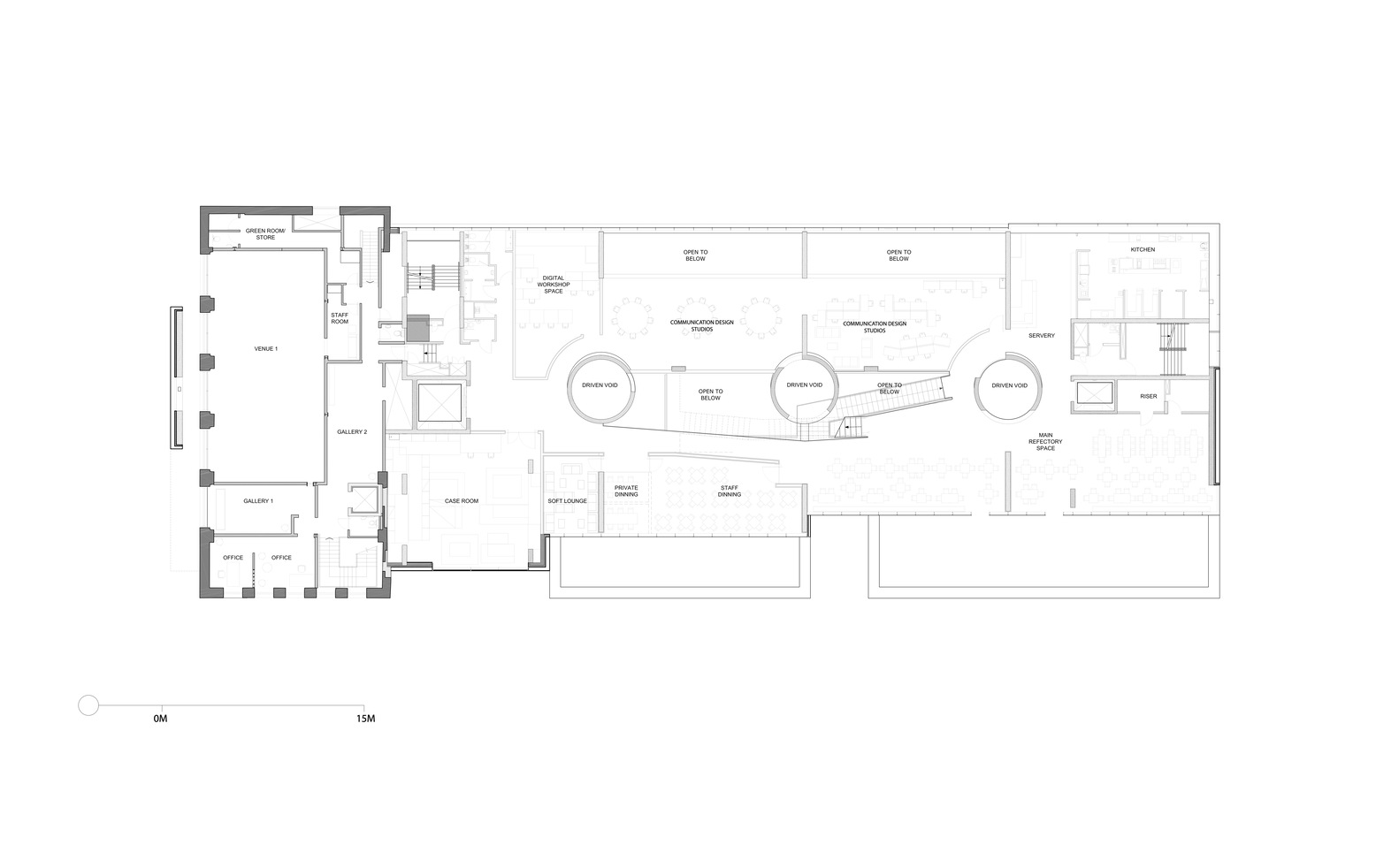
格拉斯哥雷德建筑格拉斯哥艺术学院平面图
格拉斯哥雷德建筑格拉斯哥艺术学院平面图
格拉斯哥雷德建筑格拉斯哥艺术学院平面图
格拉斯哥雷德建筑格拉斯哥艺术学院平面图
格拉斯哥雷德建筑格拉斯哥艺术学院平面图
格拉斯哥雷德建筑格拉斯哥艺术学院平面图
格拉斯哥雷德建筑格拉斯哥艺术学院平面图
格拉斯哥雷德建筑格拉斯哥艺术学院剖面图
格拉斯哥雷德建筑格拉斯哥艺术学院剖面图
格拉斯哥雷德建筑格拉斯哥艺术学院剖面图
格拉斯哥雷德建筑格拉斯哥艺术学院立面图g
格拉斯哥雷德建筑格拉斯哥艺术学院立面图
格拉斯哥雷德建筑格拉斯哥艺术学院立面图
格拉斯哥雷德建筑格拉斯哥艺术学院立面图
客服
消息
收藏
下载
最近



































