查看完整案例

收藏

下载
小隐于野:小隐隐于野,中隐隐于市,大隐隐于朝。
#01 项目背景
项目轴测展示©UUA
鲜明的设计主题,多样的客房体验,优秀的空间品质是当下度假酒店的必备条件。通过对华东地区高端度假酒店的研究,结合金华“打造宜居城市、提升城市吸引力”的城市发展目标,从双龙黄大仙景区独特的自然、人文资源出发,我们将酒店定位为以山林、亲水、野奢、康养为特色,以长三角地区游客为主要客群的高端度假酒店。
项目位于金华双龙风景名胜区黄大仙景区的南入口,北侧毗邻智者寺,可以远眺双龙风景区的金华山和尖峰山。场地内高差变化较大、现有植物丰富。酒店如何呼应极具特色的场地内、外环境,提供高品质的入住体验,兼顾优秀的设计完成度,成为本次酒店设计命题。
夜景鸟瞰©UUA
日景鸟瞰©UUA
#02
尊重城市文脉和地形的群落布局
总平面图©UUA
尊重城市文脉和地形的建筑布局:
项目场地具有人文-城市-自然三重界面。基地西侧面向黄大仙景区、万青塘水库、智者寺等人文景观,是一条人文界面。西侧智者街是城市主要道路,也是基地主入口方向,建筑在道路一侧退让出缓冲空间,保留自然风貌,与金华山的自然景观遥相呼应。
南侧毗邻新城区,是一条城市界面。为了屏蔽来自城市的视线干扰和噪音影响,将酒店公共功能布置在南侧,建筑体量向北退让,利用原有山体和景观植物形成缓冲区。
东侧与北侧分别仰望尖峰山和金华山,是一条自然界面。将客房朝向东侧可使景观资源得到最大化利用。
场地外围©UUA
清晰的功能分区:酒店可以划分为停车区、酒店大堂区、餐饮区、宴会厅及会议区、酒店集合客房区、康养区、泳池别墅区、山林别墅区、以及特色打卡点。
酒店功能分区©UUA
最大化保留、利用自然地形:场地内南、北各有一座小山,呈现中间低、向南北分别抬升的地势。酒店布局顺应地形,用一系列庭院组织酒店功能,形成清晰的主、次轴线关系。
酒店功能分区©UUA
酒店主体被山体环抱,形成内向视线关系,东侧视野开阔可以远望尖峰山景区。错落有致的院落组团不仅消解了场地高差,而且形成了收放自如的空间体验和桃花源般抑扬顿挫的情绪张力。
设计前后对比©UUA
设计前后对比©UUA
保留有价值的植物和构筑物:
现有山体经过修复将成为自然的山林与茶园,自然景观渗透到酒店内部。山林、茶园与改造后的水塔、防空洞一同组成酒店的特色体验区。
保留原有的水杉、雪松、香樟、法桐和玉兰,作为酒店的景观植物。场地内原有的太湖石也得到保留,成为前区庭院的一部分,营造“开门见山”的传统江南园林意境。
特色体验区效果图©UUA
前区庭院的太湖石©UUA
#03
多样的酒店功能与客房配置
兼顾内、外经营的酒店功能:出于实际经营的考虑,酒店的功能以度假、康养为主,兼顾高、低端商务服务功能。酒店的公共服务功能可以灵活对外经营,半山餐厅、茶园茶室、水塔改造后的灯光秀、宴会厅、婚礼草坪和礼堂组成酒店的特色体验区,便于酒店的复合型经营。
半山餐厅©UUA
独栋野墅©UUA
茶山茶园和水塔©UUA
会议、宴会厅©UUA
婚礼礼堂©UUA
多样化、极差化的客房配置:
多样的地形带来差异化的空间感受和景观视线,客房的设计从体验感出发分为三类:集中客房、泳池别墅和山林别墅。集中客房布置在场地东侧和中心水庭院两侧,面向尖峰山和庭院;泳池别墅位于北侧台地,每栋泳池别墅都有私家庭院和专属泳池;山林别墅布置在北侧山林中,可在曲径通幽处远眺金华山和尖峰山。三类客房都有良好的景观视野,70%以上客房可以享受到山景。
集中客房©UUA
集中客房看向尖峰山©UUA
泳池别墅©UUA
山林别墅©UUA
山林别墅看向金华山©UUA
#04
亲和自然的景观设计
景观的营造也遵循了亲和自然的原则,分为庭院景观与山林景观。建筑体量围合成的庭院是室内功能的延续,提供交流、游憩、休闲的空间。建筑外围的山林犹如山水画中的留白,将建筑掩映其中,若隐若现,在山林中布置半山餐厅和山林别墅,形成了极具自然野趣的体验空间。
前区庭院©UUA
中心水庭院©UUA
中心水庭院©UUA
康养庭院©UUA
康养庭院©UUA
婚礼草坪庭院©UUA
泳池别墅庭院©UUA
#05
模数化与标准化的设计控制
建筑采用规则的柱网和统一的建筑模数,建筑立面可由模数化、单元化的幕墙组合而成。成熟的生产工艺与标准化的幕墙单元有利于后期的设计深化和完成度控制。
建筑立面的精细化设计(以宴会厅为例)©UUA
建筑立面的标准化设计(以宴会厅为例)©UUA
#06
建筑节能设计
建筑通过一系列技术措施,实现节能目标。
建筑节能设计©UUA
#07 设计图纸
建筑模型©UUA
建筑组合平面图©UUA
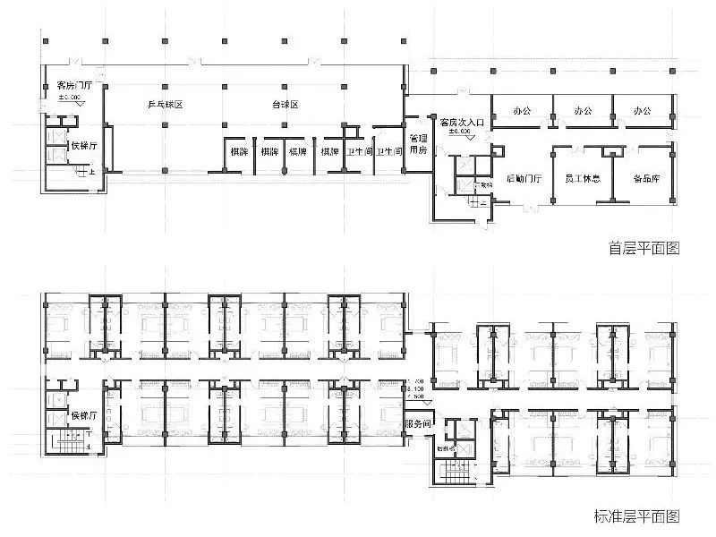
客房 1#楼平面图©UUA
客房 2#楼平面图©UUA
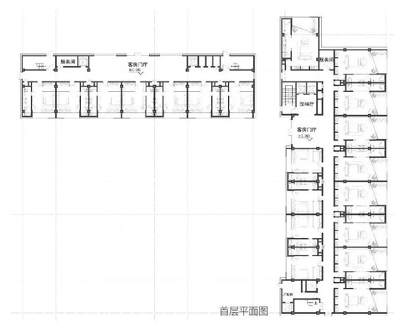
客房 3#楼平面图©UUA
客房 4#、5#楼平面图©UUA
#08
期待与展望
设计通过对东方精神的追求、山水意境的描绘、院落布局的营造,为城市带来一座园中有丘有水,园外看山看水的山水人文度假酒店。
建筑方案效果视频©UUA
项目信息
项目地址:浙江,中国
设计时间:09/2023-10/2023
项目规模:43,200 sqm
总体策划与组织:中国生态城市研究院沈磊总师团队
建筑方案:UUA 建筑师事务所
主持合伙人:李泳征,李其郅
设计团队:夏渤洋,贺文博,张艺豪,邓亮,马兴华,方泓博,吕延锋,王浩鹏(实习生)、肖新怡
客服
消息
收藏
下载
最近










































