查看完整案例

收藏

下载
项目名称:现代汽车集团全球合作中心和大学庆州校区
位置:韩国
设计公司:Hyunjun Mihn + mp_art architects
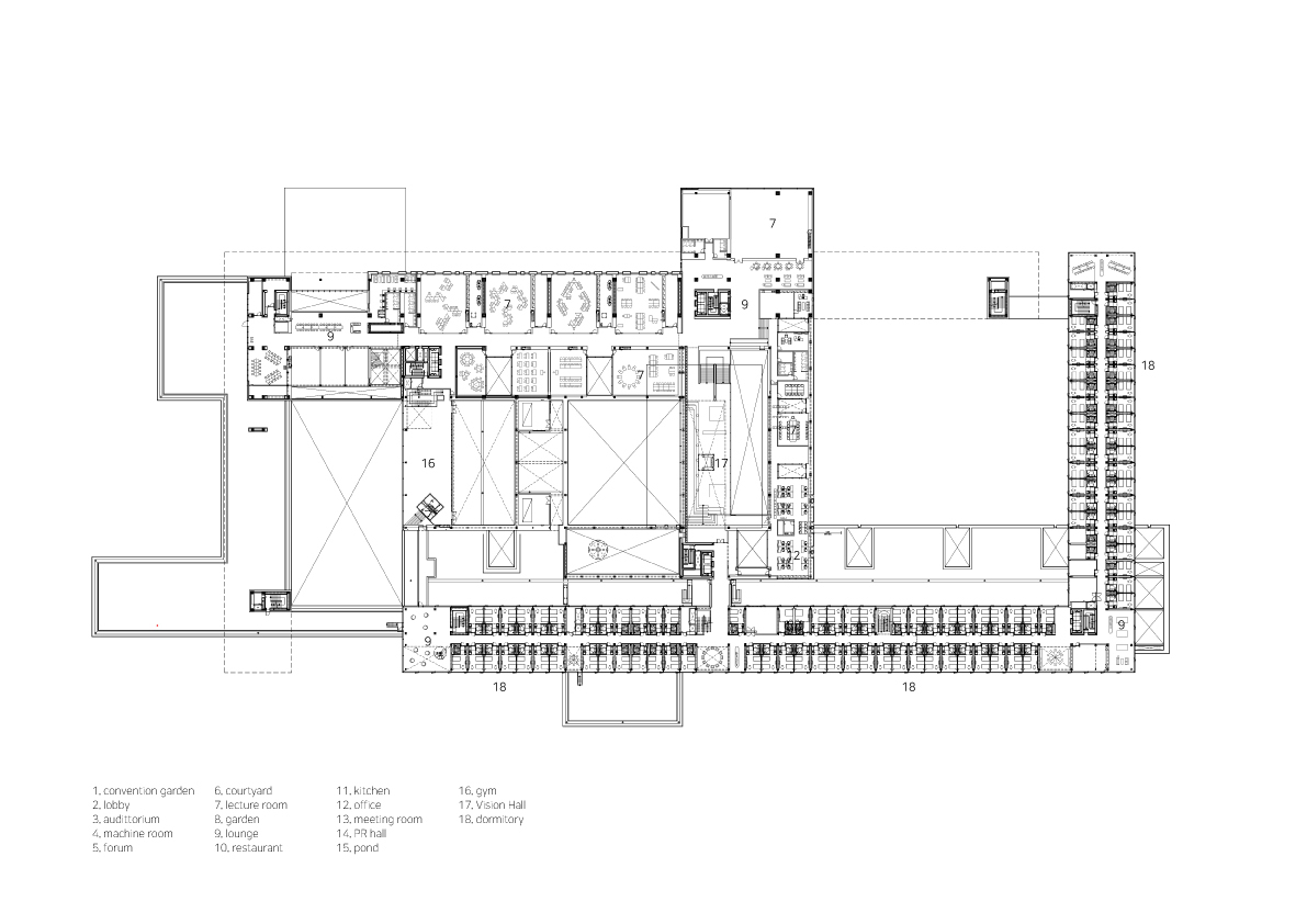
场地位于庆州阳南面河西里和水岭里,海拔30m。东面和南面是大海和海岸线的壮丽景色,北面和西面与太白山脉顶端的低山重叠。该设施是现代汽车蔚山工厂工会工人大学庆州校区和商业伙伴全球合作中心的所在地。我带着一个问题开始了这个项目:“企业培训中心和度假酒店有什么区别?虽然度假村或酒店是用来休息和放松的,但这个项目需要动态的张力和宁静的氛围。出于这个原因,某些类型的传统和功能性建筑,如修道院,也可以作为模型。在这个场地上,两座独立的培训中心建筑以ㄱ、ㄴ字形排列,形成ㅁ字形,在围合的空间内共享公共空间。当与场地的条件相结合时,一个为单一目标和目的服务的简单体量会变得多样化。大学庆州校区和全球合作中心被放置在两个不同的层次上。结合每个角落的地形和景观,布局变得更加多样化。巨型桁架用于结构。为了最能体现出身于建筑公司的现代集团的开拓精神,我设计了一个50m的无柱式领航空间,类似于一座桥梁。向北的飞行员可以看到庆州的山脉,向南的飞行员可以看到蔚山的海岸线。
内部空间以与外部相似的方式完成,使其更具城市特色,而内部的亮度则根据从早到晚的自然光量而变化。中小型培训室被规划为通识教育空间,大型或阶梯式培训室被规划为特定地点的培训室。它有一个由桁架结构和窗帘定义的教室,一个像山上圆形剧场一样的开放式礼堂,此外,庆州馆和合作馆是典型的教育和展览空间,我建议庆州馆作为档案空间,合伙馆作为与商业伙伴进行活动的空间。两个培训中心相交的西北角被设计成支撑两个培训中心的结构,这象征着公司的开始。东南角被设计成一个悬臂结构,向大海延伸,塑造了无限未来的愿景。我打算画一个双重反应,让学员们为公司的潜力感到自豪,并在风景中放松。庆州大学校园被用作大邱地区的 COVID-19 日常生活保护中心,而全球合作中心是国家关注的培训中心,旨在培训个人改善企业集团与其商业伙伴之间的关系。
现代汽车集团全球合作中心和大学庆州校区外部实景图
现代汽车集团全球合作中心和大学庆州校区外部实景图
现代汽车集团全球合作中心和大学庆州校区外部实景图
现代汽车集团全球合作中心和大学庆州校区外部实景图
现代汽车集团全球合作中心和大学庆州校区外部实景图
现代汽车集团全球合作中心和大学庆州校区外部实景图
现代汽车集团全球合作中心和大学庆州校区外部实景图
现代汽车集团全球合作中心和大学庆州校区外部实景图
现代汽车集团全球合作中心和大学庆州校区外部实景图
现代汽车集团全球合作中心和大学庆州校区外部实景图10.jp
现代汽车集团全球合作中心和大学庆州校区内部实景图
现代汽车集团全球合作中心和大学庆州校区内部实景图
现代汽车集团全球合作中心和大学庆州校区内部实景图
现代汽车集团全球合作中心和大学庆州校区内部实景图
现代汽车集团全球合作中心和大学庆州校区内部实景图
现代汽车集团全球合作中心和大学庆州校区内部实景图
现代汽车集团全球合作中心和大学庆州校区内部实景图
现代汽车集团全球合作中心和大学庆州校区内部实景图
现代汽车集团全球合作中心和大学庆州校区内部实景图
现代汽车集团全球合作中心和大学庆州校区内部实景图
现代汽车集团全球合作中心和大学庆州校区内部实景图
现代汽车集团全球合作中心和大学庆州校区平面图
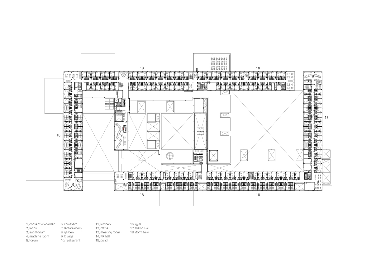
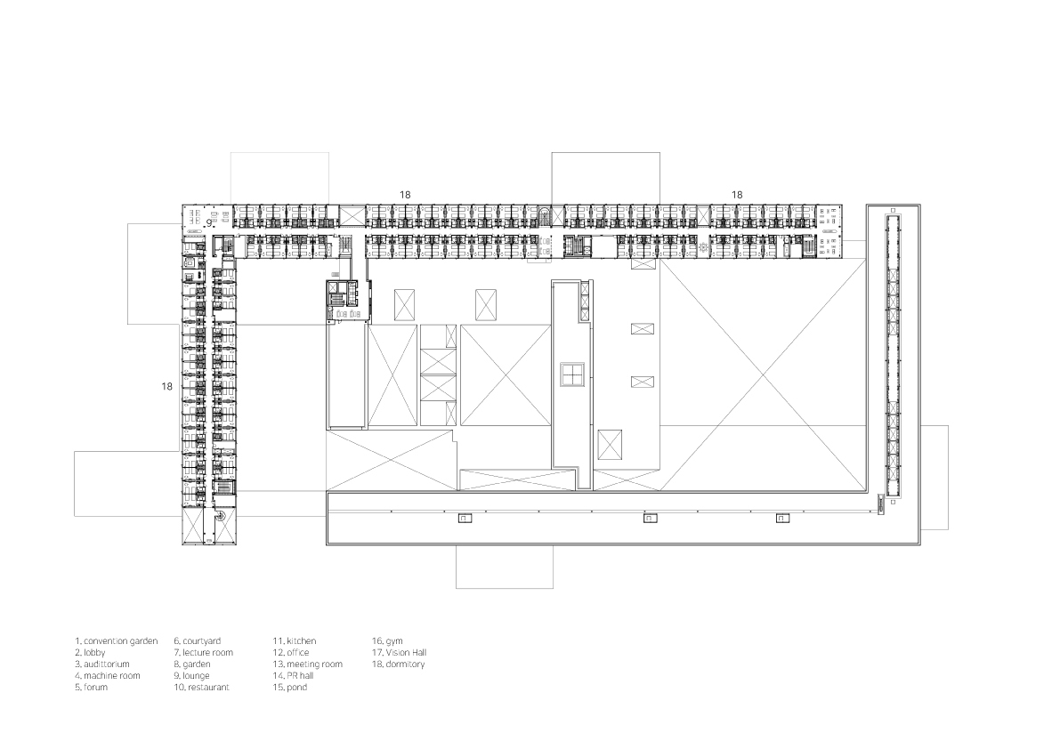
现代汽车集团全球合作中心和大学庆州校区平面图
现代汽车集团全球合作中心和大学庆州校区平面图
现代汽车集团全球合作中心和大学庆州校区平面图
现代汽车集团全球合作中心和大学庆州校区平面图
现代汽车集团全球合作中心和大学庆州校区平面图
现代汽车集团全球合作中心和大学庆州校区剖面图
现代汽车集团全球合作中心和大学庆州校区剖面图
现代汽车集团全球合作中心和大学庆州校区立面图
现代汽车集团全球合作中心和大学庆州校区立面图
客服
消息
收藏
下载
最近


































