查看完整案例

收藏

下载
项目名称:立陶宛Vaikystes Sodas幼儿园
位置:立陶宛
设计公司:Architectural Bureau G.Natkevicius & Partners
幼儿园“Vaikystes Sodas”是将一个综合体复兴的废弃军营小镇改造成多功能住宅区的一部分,该住宅区由7栋住宅楼、2栋商业楼、一所学校和一所幼儿园组成。在 2018 年创建的当代建筑竞赛“Zvilgsnis I save”中,它被选为立陶宛最佳建筑对象,并在 2021 年立陶宛房地产开发协会组织的竞赛中,该军营综合体被选为最佳房地产项目。建筑师团队逐渐将军事要塞变成了住宅区,让历史建筑以现代的方式振动,讲述过去的故事,为后代创造新的故事。幼儿园“Vaikystes Sodas”以教育理念为基础,环境很重要,它就像第三位教育者,所以幼儿园和周边建筑的建筑,都保留了整体风格的完整性和现代感美学,回应了这种需求,因为环境的背景结合了古老和现代的历史和未来。该建筑的主要建筑理念是由位于遗产区的 19 世纪地块建筑决定的,其特点是严格的几何规划、功能、立面的主导平面和适度的装饰,因此幼儿园建筑没有在风格上与旧军营没有什么不同。幼儿园的选址设计在保持原军营结构的同时,在原军营仓库的原址上建造了一座全新的幼儿园建筑。为了不篡改历史,幼儿园以对比的方式设计——明确表示它是这些时代的建筑。
因此,这座非凡的建筑以令人印象深刻的混凝土立面迎接它,它的自然美景暴露在外,其粗犷的工业质感被玻璃软化,与其轻盈和脆弱形成鲜明对比。由窗户构成的明亮空间为孩子们创造了观察自然循环变化的机会。窗户用垂直的混凝土板条遮蔽,具有双重功能:防晒,同时给孩子们一种隐私和安全感——它就像前面建筑物的眼睛一样。这样的元素不仅打破了雕塑建筑的规模,缩小了建筑的规模,而且使立面变得活跃和软化。这座建筑是内敛的、封闭的,没有很多细节。这座建筑以其干净、原始的形式给人留下了深刻的印象。通过禁欲主义的特点,建筑物的几个地方被突出,引起了阴谋——建筑物像一个橡胶玩具,向上升起的天窗勾勒出大象的轮廓。这扇窗户也象征着敏捷和自由——从外面看,它表达了对天空的一瞥,从里面看,它变成了小孩子们的圆形剧场、观景台和通往天空的楼梯。这座建筑以其外部和内部的差异而令人印象深刻,同时也因其理念的统一而令人印象深刻。苦行的外观与温暖的室内空间形成鲜明对比,色彩斑斓,俏皮混乱,充满了色彩缤纷的细节,小家具和墙上的儿童画。旧区的新身份结合了城市的绿色理念,因此没有拔掉树木,种植了新的树木。
立陶宛Vaikystes Sodas幼儿园外部实景图
立陶宛Vaikystes Sodas幼儿园外部实景图
立陶宛Vaikystes Sodas幼儿园外部实景图
立陶宛Vaikystes Sodas幼儿园外部实景图
立陶宛Vaikystes Sodas幼儿园外部实景图
立陶宛Vaikystes Sodas幼儿园外部实景图
立陶宛Vaikystes Sodas幼儿园外部实景图
立陶宛Vaikystes Sodas幼儿园外部实景图
立陶宛Vaikystes Sodas幼儿园外部实景图
立陶宛Vaikystes Sodas幼儿园外部实景图
立陶宛Vaikystes Sodas幼儿园外部实景图
立陶宛Vaikystes Sodas幼儿园外部实景图
立陶宛Vaikystes Sodas幼儿园外部实景图
立陶宛Vaikystes Sodas幼儿园外部实景图
立陶宛Vaikystes Sodas幼儿园外部实景图
立陶宛Vaikystes Sodas幼儿园外部实景图
立陶宛Vaikystes Sodas幼儿园外部实景图
立陶宛Vaikystes Sodas幼儿园外部实景图
立陶宛Vaikystes Sodas幼儿园内部实景图
立陶宛Vaikystes Sodas幼儿园内部实景图
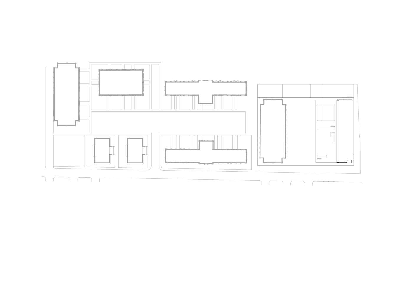
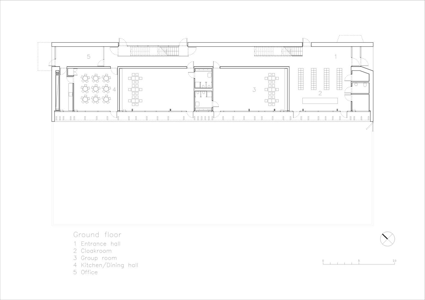
立陶宛Vaikystes Sodas幼儿园平面图
立陶宛Vaikystes Sodas幼儿园平面图
立陶宛Vaikystes Sodas幼儿园平面图
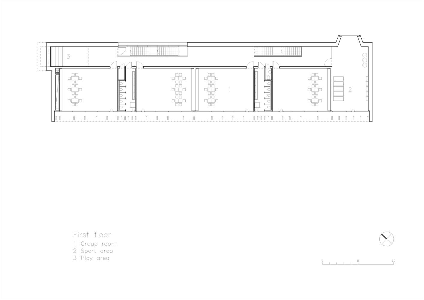
立陶宛Vaikystes Sodas幼儿园剖面图
立陶宛Vaikystes Sodas幼儿园剖面图
客服
消息
收藏
下载
最近




























