查看完整案例

收藏

下载
Brenac & Gonzalez & Associés近日完成了位于圣旺运动员之村(Athletes’ Village)的三座公寓建筑。奥运会和残奥会村是为巴黎北郊开发一个全新、堪称典范的都市区的绝佳契机。
▼城市概览,Urban landscape © Stefan Tuchila
Brenac & Gonzalez & Associés just completed three housing buildings in the Athletes’ Village in Saint-Ouen. The Olympic and Paralympic Village is an opportunity to develop a new, exemplary metropolitan district for the Northen Parisian suburbs.
▼建筑概览,Overview of the building © Stefan Tuchila
▼城市立面,Urban elevation © Stefan Tuchila
该项目的挑战在于如何提升法国人的威望和与之相关的价值观,请注在巴黎举办的奥运会和残奥会。这一高追求的使命加强了法国首都在应对气候变化斗争中的动力,这一点在2021年缔约方大会的辩论中得到了证明,并在最终协议中确立。
▼建筑特写,Close-up of the building © Stefan Tuchila
▼地块1建筑,Building for plot 1 © Stefan Tuchila
The challenge is to enhance French prestige and the values associated with it, to celebrate hosting the Olympic and Paralympic Games in Paris.This ambitious mission reinforces the French capital’s driving force in the struggle against climate change as proven during the COP 2021 debates, and thus concluded in the final agreement.
▼建筑特写,Close-up of the building ©Sergio Grazia
▼立面构成,Composition of the facade ©Sergio Grazia
▼立面特写,Close-up of the facade © Stefan Tuchila
奥运会见证了时间的流逝,定期呈现着我们共同生活世界的缩影。共同居住的概念是一个机会,让我们反思什么是迫切需要改变的,以及耐久性和环保建筑技术的战略发展。
▼立面局部,Part of the facade © Stefan Tuchila
▼独特的韵律,Particular rhythm © Stefan Tuchila
Olympics attests to the passage of time, periodically revealing a snapshot of the world we all cohabitate. This notion of cohabitation is an opportunity to reflect on the urgent need for change and strategic development of durable and environmentally friendly building technics.
▼光影关系,Interplay of the shadow and light ©Sergio Grazia
▼立面特写,Close-up of the facade ©Sergio Grazia
▼围栏特写,Close-up of the rails ©Sergio Grazia
▼傍晚立面,Elevation at dusk ©Sergio Grazia
▼别致的围栏,Subtle rails © Stefan Tuchila
▼建筑室内,Interior of the building © Stefan Tuchila
Brenac-Gonzalez & Associés对这一世界性节日的贡献是展示法国专业技术和建筑战略意识转变的绝佳机会。该项目集中在通过提升公共与私人空间质量,从而为都市家庭探索全新建造技术并研究创新性的类型。
▼地块1与地块5,Plot 1 and plot 5 © Stefan Tuchila
▼场地5建筑特写,Close-up of the building for plot 5 © Stefan Tuchila
▼建筑特写,Close-up of the building © Stefan Tuchila
Brenac-Gonzalez & Associés’s contribution to this universal festival is the perfect occasion to showcase French know-how and the conscious shift in building strategies. It all comes down to developing new construction techniques and researching innovative typologies for metropolitan domesticity by improving common and private spaces.
▼建筑特写,Close-up of the building © Stefan Tuchila
▼建筑群概览,Department complex © Stefan Tuchila
▼局部特写,Close-up of the building © Stefan Tuchila
与传统奥运村相反,我们的目标是在“大巴黎”的活力中创造“持久”的价值,营造舒适的家庭环境。设计过程中要考虑到如何快速、低成本地将运动员公寓改造城住宅。
Opposed to historic Olympic villages, we aimed a ‘’long term’’ legacy to develop a comfortable family environment inside of the ‘’Grand Paris’’ dynamic. A relevant chapter of the design process was attached to rapidly and cost effectively transform the athletes’ apartments into residential ones.
▼平衡的体量,Balanced volume ©Sergio Grazia
▼立面特写,Close-up of the facade ©Sergio Grazia
▼立面特写,Close-up of the facade ©Sergio Grazia
▼阳台一侧,Facade of the balcony side © Stefan Tuchila
该项目包含3座建筑:地块1位于Quai de Seine和the Rue Agnès Varda的拐角处,地块5位于Maille Finot大街,地块8位于Rue Agnès Varda大街。
The project involves 3 strategic buildings: plot 1 situated on the corner of the Quai de Seine and the Rue Agnès Varda, plot 5 located along the Maille Finot, and plot 8 standing on the Rue Agnès Varda.
▼独特的图案,Particular pattern © Stefan Tuchila
▼阳台特写,Close-up of the balcony © Stefan Tuchila
▼阳台特写,Close-up of the balcony © Stefan Tuchila
地块1的策略点在于设计了一个独特的外形,就像一艘船的船头,以其宽敞的白色木廊主宰着风景优美的塞纳河。下层宽阔的观景露台也为过往行人和游客提供了这一独特的景观。
The strategic importance of plot 1 resides in designing a unique silhouette resembling a ship’s prow, dominating the scenic Seine river with its generous white loggias. This exceptional view is also offered to passers-by and visitors by the vast belvedere terrace on the lower level.
▼场地8建筑,Builidng for the plot 8 © Stefan Tuchila
▼建筑特写,Close-up of the building © Stefan Tuchila
地块5和地块8在中央公共花园的两侧相互平衡,同时与整个城市发展的交替网格相融合。
The plots 5 and 8 balance each other on both sides of the central public parc, while at the same time, integrating the alternating grid that structures the entire urban development.
▼独特的悬挑,Particular cantilever © Stefan Tuchila
▼阳台设计,Balcony design © Stefan Tuchila
这个中央花园由高大的树木和微妙的树叶组成,居民可以在树荫下漫步或休息,远离喧嚣的城市,享受片刻的宁静和安详。
This central garden, comprised of tall trees with subtle foliage, enables inhabitants to stroll about or relax in the shade of trees, sheltered from the turbulent city for a moment of peace and calm.
▼阳台特写,Close-up of the balcony ©Sergio Grazia
▼阳台特写,Close-up of the balcony ©Stefan Tuchila
▼围栏肌理,Textures of the rails © Stefan Tuchila
我们开发了一种严谨节俭的建筑风格,摒弃了浮夸的装饰,鼓励采用更微妙的叙事方式,使其更符合个人的理解力。我们的灵感来自于邻近的 Cite du cinema,这让我们能够从图形的角度来探索一些细节,如栏杆、窗户、太阳能保护装置等。
We developed a rigorous frugal architecture, deprived of ostentatious decorations, encouraging a more subtle narrative, sensible to individual apprehension. Our inspiration came from the neighboring Cite du cinema, allowing us to explore certain details such as railings, windows, solar protections from a graphic standpoint.
▼简约而精致的立面,Simple and delicate facade © Stefan Tuchila
▼立面光影,Shadow and light of the facade © Stefan Tuchila
交替铺贴的釉面或哑光陶土砖,在外墙形成巨大的图案。这种变化的图案还让人联想到格子呢、Meunier巧克力工厂或Jules Ferry学校的砖块装饰。这种纹理会随着时间和天气的变化而产生不同的视觉效果,并以生动而微妙的方式反射光线。
Alternating glazed or matte finish terracotta tiles create large motifs on the façade. This vibrating pattern also recalls tartan grids, brick ornamentations of Meunier chocolate factories or of Jules Ferry schools. The texture is perceived differently, depending on the time and weather, reflecting light in vibrant and subtle ways.
▼电梯间,Lift area © Stefan Tuchila
▼走廊,Corridor © Stefan Tuchila
为了遵守严格的环保标准,该建筑还制定了具体的技术认证,这些认证适用于木质混凝土混合建筑和使用预制木板的陶土外墙。
Specific technical certifications were developed to respect the ambitious environmental standards, attached to mixed wood-concrete buildings and terracotta facades with prefabricated wood panels.
▼楼梯,Staircase © Stefan Tuchila
▼顶视图,Top view of the staircase © Stefan Tuchila
▼楼梯特写,Close-up of the staircase © Stefan Tuchila
该项目将生活品质与城市提升相结合,通过环境改善与人居舒适度的提升展现了属于21世纪的建筑品质。
This project blends quality of life and city improvement while illustrating a 21st century architecture fueled by environmental ambition and human comfort.
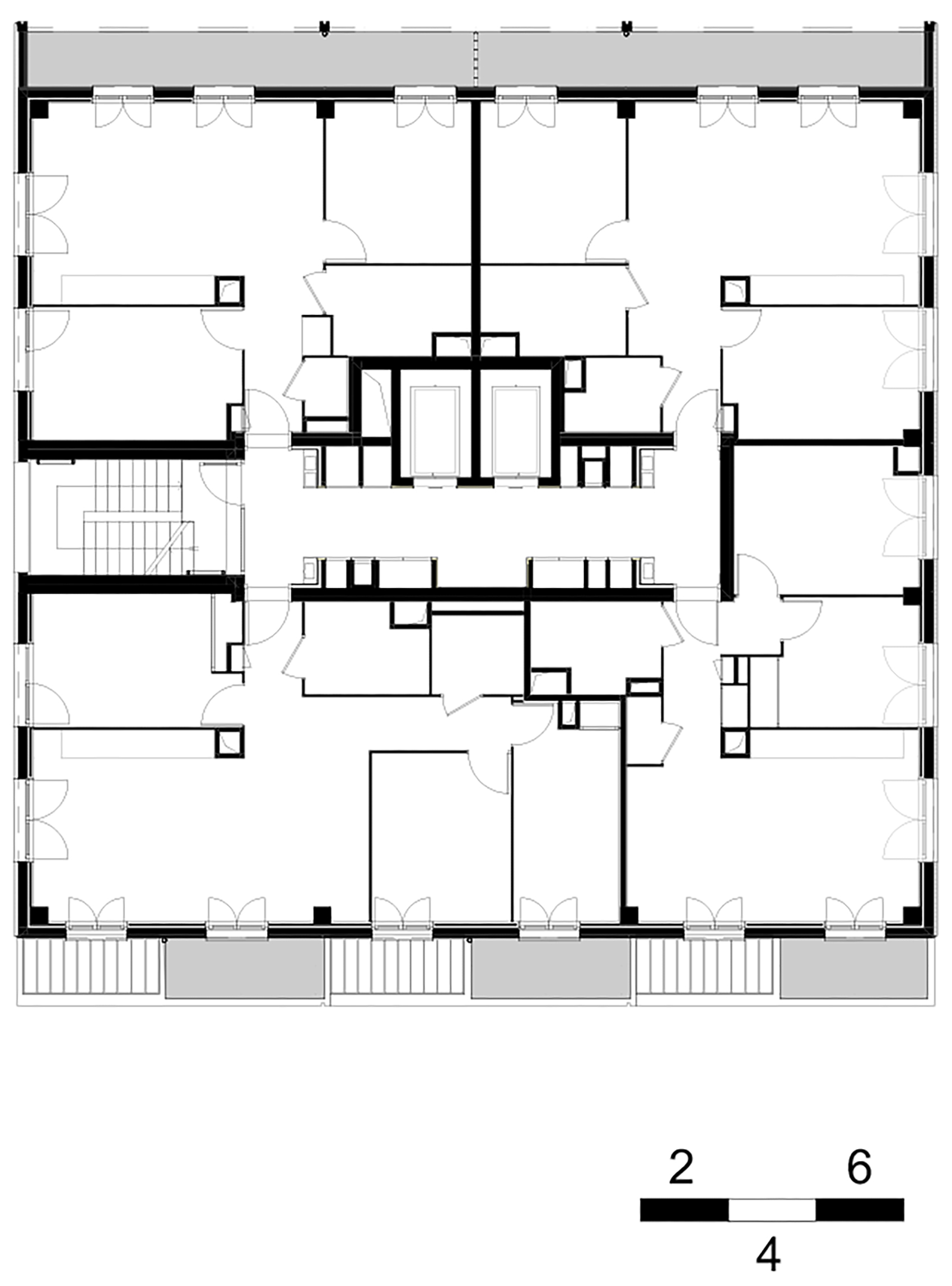
▼场地1平面,Plan of the plot 1 ©Brenac & Gonzalez & Associés
▼剖面图,Section ©Brenac & Gonzalez & Associés
▼立面图,Elevations ©Brenac & Gonzalez & Associés
▼轴测图,Axonometric ©Brenac & Gonzalez & Associés
▼细部,Details ©Brenac & Gonzalez & Associés
▼场地5平面,Plan of the plot 5 ©Brenac & Gonzalez & Associés
▼立面图,Elevations ©Brenac & Gonzalez & Associés
▼细部图,Details ©Brenac & Gonzalez & Associés
▼场地8平面图,Plan of the plot 8 ©Brenac & Gonzalez & Associés
▼立面图,Elevations ©Brenac & Gonzalez & Associés
▼轴测图,Axonometric ©Brenac & Gonzalez & Associés
▼细部,Details ©Brenac & Gonzalez & Associés
Program:767 athlete bedrooms / 148 housing units for the heritage phase
Addresse:Village des athlètes, Saint-Ouen
Client:ICADE
Architect:Brenac & Gonzalez & Associés
Landscape:TN PLUS
Surface:10 780 m²
Cost:24,77M €
Competition:2018
technical documents © Brenac & Gonzalez & Associés
photos © Sergio Grazia, © Stefan Tuchila
Data sheet per plot
Building plot 1 (D1 sector)
Program:426 athlete bedrooms / 83 housing units for the heritage phase
Address:Rue Agnès Varda, Saint-Ouen
Surface:6090 m²
Cost:13,25M €
Structure:Concrete + timber-framed facade
Facades:White gloss glazed terracotta tiles + coating
Certifications:NF habitat HQE, E3C1
Building plot 5 ( D1 sector)
Program:141athlete bedrooms / 26 housing units for the heritage phase
Address:Mail Finot, Saint-Ouen
Surface:1890 m²
Cost:5M €
Structure:Timber posts/beams + timber-framed facade
Facades:Raw/enameled colourless terracotta tiles + coating
Certifications:NF habitat HQE, E3C2
Building plot 8 (secteur D2)
Program:200 athlete bedrooms / 39 housing units for the heritage phase
Address:Rue Agnès Varda, Saint-Ouen
Surface:2800 m²
Cost:6,52M €
Structure:Concrete + timber-framed facade
Facades:Gloss white / matt white glazed terracotta tiles + coating
Certifications:NF habitat HQE, E3C1
客服
消息
收藏
下载
最近











































































