查看完整案例

收藏

下载
项目名称:德国全纳学校小学部
位置:德国
设计公司:Sehw Architektur
“粉笔独角戏(Chalk & Talk)”形式的教学已经过时,如今,学习是群体性的,它不仅仅发生在教室,而是发生在任有可能的地方。新建筑的平面布局为新的、不断变化的教学理念提供了极大的灵活性。两个绿色教室和内庭院可以用于户外课程,宽阔的走廊和楼梯也成为学习和交流的场所。一二年级教室和特定学科教室均位于一层,三至六年级教室位于二层。除了绿色教室,户外设施还包括宽阔的操场,并且配有各种游乐设施。因为在某些时候,即便是最优秀的课堂,孩子们也需要从中休息片刻。为了与校园总体规划协调一致,Sehw建筑事务所再次受邀作为本项目的总规划团队,负责全部设计过程和运营阶段。作为总规划团队,Sehw建筑事务所很高兴能够根据最先进的教学理念在德伯恩创建学习与教学空间。教育建筑是对未来的投资,对建筑师来说,这是一项特别有意义的规划任务。最终,该项目成为典型案例,展示了多方努力如何为社会创造附加价值。
德国全纳学校小学部外部实景图
德国全纳学校小学部外部实景图
德国全纳学校小学部外部实景图
德国全纳学校小学部外部实景图
德国全纳学校小学部外部实景图
德国全纳学校小学部外部实景图
德国全纳学校小学部外部实景图
德国全纳学校小学部外部实景图
德国全纳学校小学部内部实景图
德国全纳学校小学部内部实景图
德国全纳学校小学部内部实景图
德国全纳学校小学部内部实景图
德国全纳学校小学部内部实景图
德国全纳学校小学部内部实景图
德国全纳学校小学部内部实景图
德国全纳学校小学部内部实景图
德国全纳学校小学部内部实景图
德国全纳学校小学部内部实景图
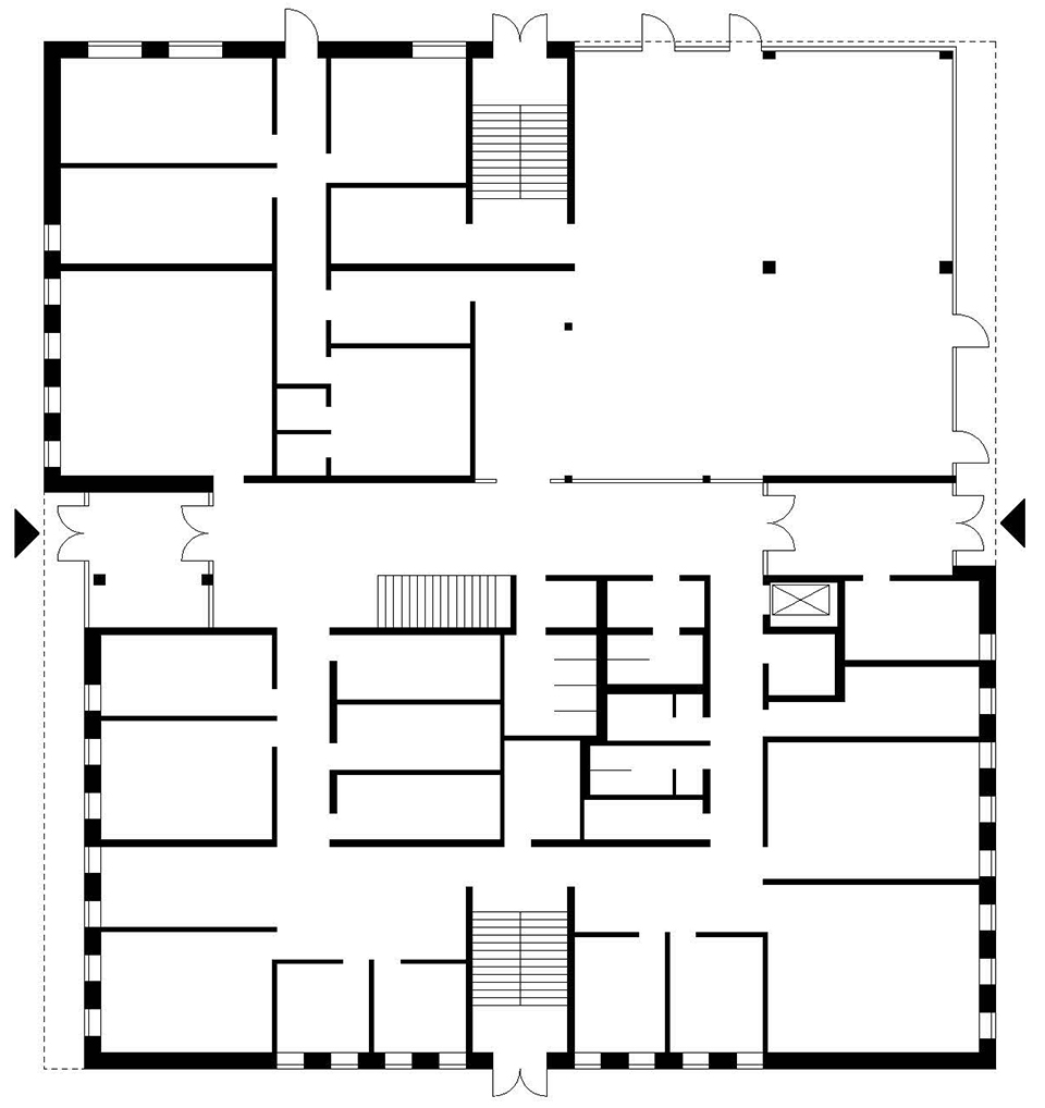
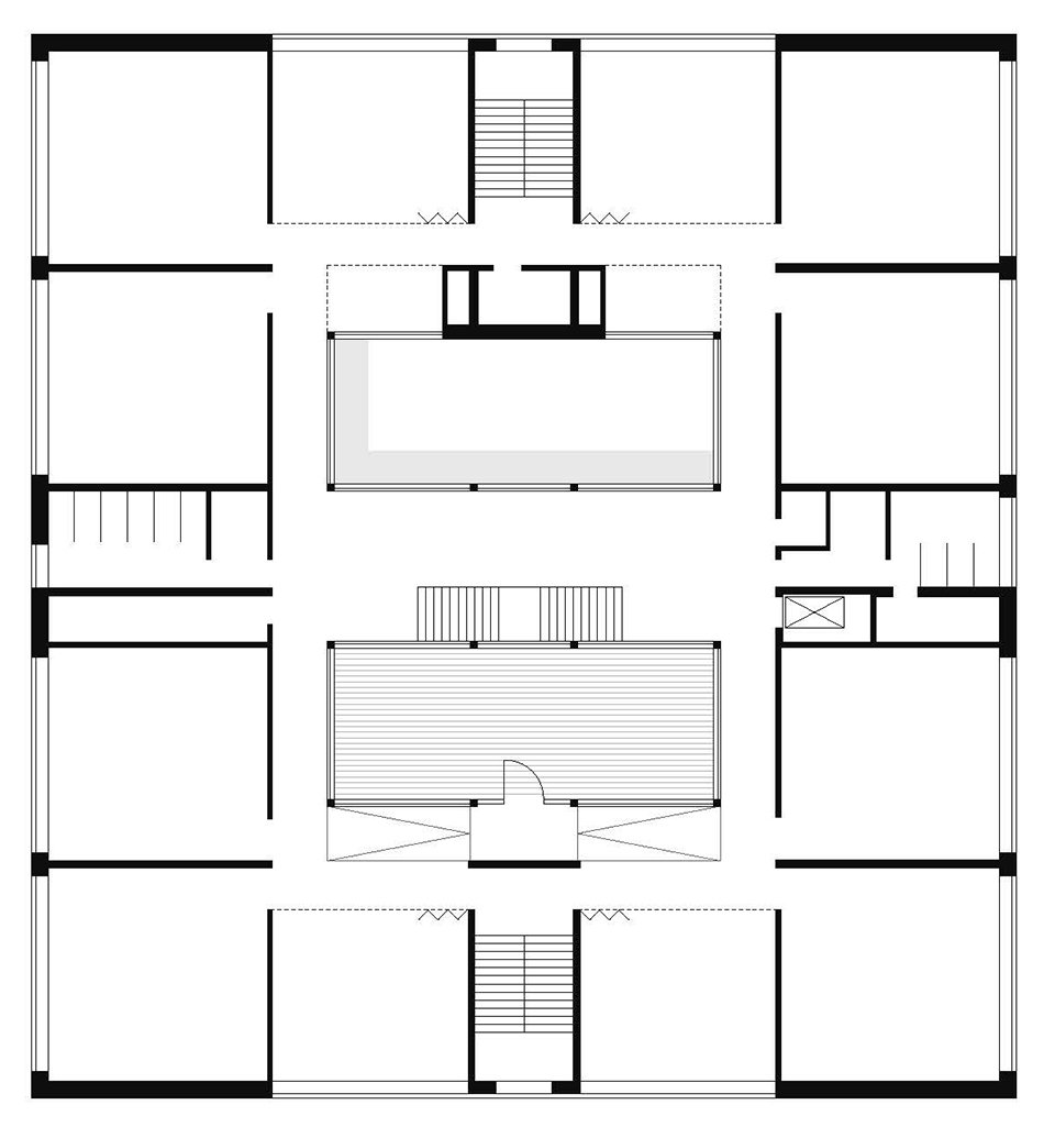
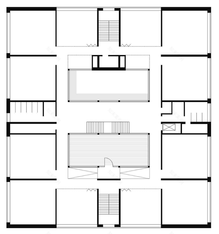
德国全纳学校小学部平面图
德国全纳学校小学部平面图
德国全纳学校小学部平面图
德国全纳学校小学部剖面图
客服
消息
收藏
下载
最近

























