查看完整案例

收藏

下载
项目名称:成都工匠·崇州乡村振兴学院
位置:成都
设计公司:黑蚁文创 + 筑室皆宜文创
摄影师:ICYWORKS
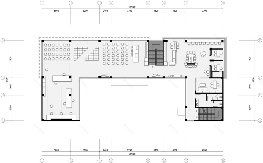
此项目地位于成都崇州市白头镇大雨村,建筑前身为大雨村村委会。崇州当地丰富的匠人匠艺亟待传承与传播。职业培训、乡村振兴已然成为新的社会责任。作为产学研一体化的教学基地,这里将成为崇州职业培训的顶梁柱。这个空间将承载手艺、创意、内容、课程、直播、零售、休闲、体验、艺术跨界组合为一体的乡村公共生活聚落。如何用设计重构空间,用设计唤醒乡村,成为这次设计的课题。秉承设计要“取之于地,用之于地”的理念,在先后拜访了数位当地匠人后,将传统工艺融入在空间中,当地产出的竹编、藤编、木雕、红砖等元素成为亮点元素,同时匠人们还亲自参与了空间内的多项手工制作。整个学院为一座C形建筑,分为上下两层。一楼主要以“匠人”、“匠艺”、“匠品”三个板块内容为主,匠人,弘扬在地手艺及民俗文化的使者;匠艺,美感与文化兼具的手工艺术品展示;匠品,在地优秀品牌的产品输出。二楼以教学空间、办公空间为主。从一楼进入的第一个空间,运用了崇州当地独有的竹编艺术作为支撑,将在地的竹子与中国传统穿斗形式结合,形成特有的造型吊顶。
将视角移至一楼东侧,此空间为“匠人展区”,长条画幅和屏幕展示着各位匠人的事迹及作品介绍。竹林及长桌台面的溪流则寓意雨水源源不断地灌溉着川西林盘,这片土地孕育出数位了不起的匠人。(注:水流为自循环系统,不会浪费水资源。)一楼西侧则为“匠艺、匠品”展示售卖区,彩色亚克力与大理石的融合给空间赋予了活力感。圆形矩阵内陈列着当地特色农产品。二楼空间东侧为教学区域,以匠艺教学、职业培训、大型会议为主。二楼西侧为办公、共享休闲区域。天晴时在窗边眺望一望无垠的稻田,享受放松的田野时刻。一楼西侧则为“匠艺、匠品”展示售卖区,彩色亚克力与大理石的融合给空间赋予了活力感。圆形矩阵内陈列着当地特色农产品。二楼空间东侧为教学区域,以匠艺教学、职业培训、大型会议为主。二楼西侧为办公、共享休闲区域。天晴时在窗边眺望一望无垠的稻田,享受放松的田野时刻。在本案的设计之初到竣工,我们一直在思考,乡村设计的意义是什么,设计乡村振兴学院的意义是什么。当地手工艺得以传承、游子能够归家创立事业、原住民能再就业、村民的生活水平提高,都是我们希望通过每一次设计能推进达到的目的。在我们看来,乡村振兴及匠艺复兴的重要性,不仅是一栋栋翻新的房子,更是一项长久建设的社会使命和责任。
成都工匠·崇州乡村振兴学院内部实景图
成都工匠·崇州乡村振兴学院内部实景图
成都工匠·崇州乡村振兴学院内部实景图
成都工匠·崇州乡村振兴学院内部实景图
成都工匠·崇州乡村振兴学院内部实景图
成都工匠·崇州乡村振兴学院内部实景图
成都工匠·崇州乡村振兴学院内部实景图
成都工匠·崇州乡村振兴学院内部实景图
成都工匠·崇州乡村振兴学院内部实景图
成都工匠·崇州乡村振兴学院内部实景图
成都工匠·崇州乡村振兴学院内部实景图
成都工匠·崇州乡村振兴学院内部实景图
成都工匠·崇州乡村振兴学院内部实景图
成都工匠·崇州乡村振兴学院内部实景图
成都工匠·崇州乡村振兴学院内部实景图
成都工匠·崇州乡村振兴学院平面图
成都工匠·崇州乡村振兴学院平面图
客服
消息
收藏
下载
最近




















