查看完整案例

收藏

下载
项目名称: 阿尔巴尼亚Lidhja e Prizrenit 幼儿园
位置: 阿尔巴尼亚
设计公司: Studioarch4
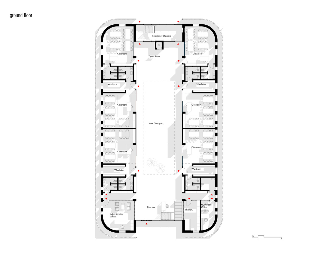
“Lidhja e Prizrenit”幼儿园位于帕斯库坎,Kamë,地拉那河附近。2019年11月地震后,现有结构已无法修复,因此需要一座新的建筑来容纳该地区越来越多的儿童。这家新幼儿园为250名2至6岁的儿童提供服务。这个项目的主要目标是创造当代的学习空间,这些空间很容易适应不同的活动,并符合使用它们的特定年龄组。该项目的特色是内部庭院和立面。由于体育活动对儿童的健康发展起着至关重要的作用,室内庭院的设计为全年开放空间的使用创造了机会,尤其是在寒冷和雨天。这是通过在内院上方设计一个玻璃覆盖的中庭实现的。此外,它允许自然光进入建筑的中心,并为主要用于学习和表演的空间功能提供了灵活性。立面由穿孔金属板组成。这些面板提供了必要的私密性,提供了柔和的光线,并在视觉上将幼儿园与周围的建筑区分开来,为该地区提供了一个地标。建筑的平台提供了一个开放的空间,很容易控制游戏和活动。外院为孩子们玩耍和学习提供了充足的空间和绿化。
阿尔巴尼亚Lidhja e Prizrenit幼儿园外部实景图
阿尔巴尼亚Lidhja e Prizrenit幼儿园外部实景图
阿尔巴尼亚Lidhja e Prizrenit幼儿园外部实景图
阿尔巴尼亚Lidhja e Prizrenit幼儿园外部实景图
阿尔巴尼亚Lidhja e Prizrenit幼儿园外部实景图
阿尔巴尼亚Lidhja e Prizrenit幼儿园外部实景图
阿尔巴尼亚Lidhja e Prizrenit幼儿园内部实景图
阿尔巴尼亚Lidhja e Prizrenit幼儿园内部实景图
阿尔巴尼亚Lidhja e Prizrenit幼儿园内部实景图
阿尔巴尼亚Lidhja e Prizrenit幼儿园内部实景图
阿尔巴尼亚Lidhja e Prizrenit幼儿园内部实景图
阿尔巴尼亚Lidhja e Prizrenit幼儿园内部实景图
阿尔巴尼亚Lidhja e Prizrenit幼儿园内部实景图
阿尔巴尼亚Lidhja e Prizrenit幼儿园内部实景图
阿尔巴尼亚Lidhja e Prizrenit幼儿园内部实景图
阿尔巴尼亚Lidhja e Prizrenit幼儿园平面图
阿尔巴尼亚Lidhja e Prizrenit幼儿园平面图
阿尔巴尼亚Lidhja e Prizrenit幼儿园平面图
阿尔巴尼亚Lidhja e Prizrenit幼儿园平面图
阿尔巴尼亚Lidhja e Prizrenit幼儿园立面图
阿尔巴尼亚Lidhja e Prizrenit幼儿园立面图
阿尔巴尼亚Lidhja e Prizrenit幼儿园立面图
阿尔巴尼亚Lidhja e Prizrenit幼儿园立面图
客服
消息
收藏
下载
最近


























