查看完整案例

收藏

下载
项目名称:瑞士La Sablliane学校
位置:瑞士
建筑师:横向建筑师
“你我的屋顶”项目建议通过建立一个三重体育馆和一个15个班级的教学楼来澄清现有的学校综合体。他们的相继建立将使为所有人定义一个中央庭院成为可能。屋顶的独特形状为现有综合体和邻近别墅的异质组成带来了连贯性。带顶棚的庭院定义了通往建筑物的独特通道,并且是该项目软移动性延伸的一部分:在带顶棚的庭院区域、内部画廊层和 3 个健身房之间进行了一场透明的游戏。这个体积,一半可见,一半在“沙子”下,适合这个地区的规模。Lè Tapa-Sabllia,公社居民的昵称,产生了房间的名字:sablliane。的确,自然沙质地形的特征,通过埋藏体量的“沙盒”效应凸显出来。带有穿孔折叠板的外部材料使长立面运动起来。其柔和的“绿白”颜色指的是周围景观结构的元素:伟大的 Cariçaie、Menthue、La Baume 岩石的丘陵景观以及农业景观。屋顶的木结构靠在裸露的混凝土墙上。健身房以柔和、轻盈的表面欢迎自然光。白漆穿孔中密度纤维板的假吸音天花板和“沙箱”级别的木制吸音板有助于运动练习的音质。运动地板的沙色聚氨酯涂层优化了自然光的吸收。
瑞士La Sablliane学校外部实景图
瑞士La Sablliane学校外部实景图
瑞士La Sablliane学校外部实景图
瑞士La Sablliane学校外部实景图
瑞士La Sablliane学校外部实景图
瑞士La Sablliane学校外部实景图
瑞士La Sablliane学校内部实景图
瑞士La Sablliane学校内部实景图
瑞士La Sablliane学校内部实景图
瑞士La Sablliane学校内部实景图
瑞士La Sablliane学校内部实景图
瑞士La Sablliane学校内部实景图
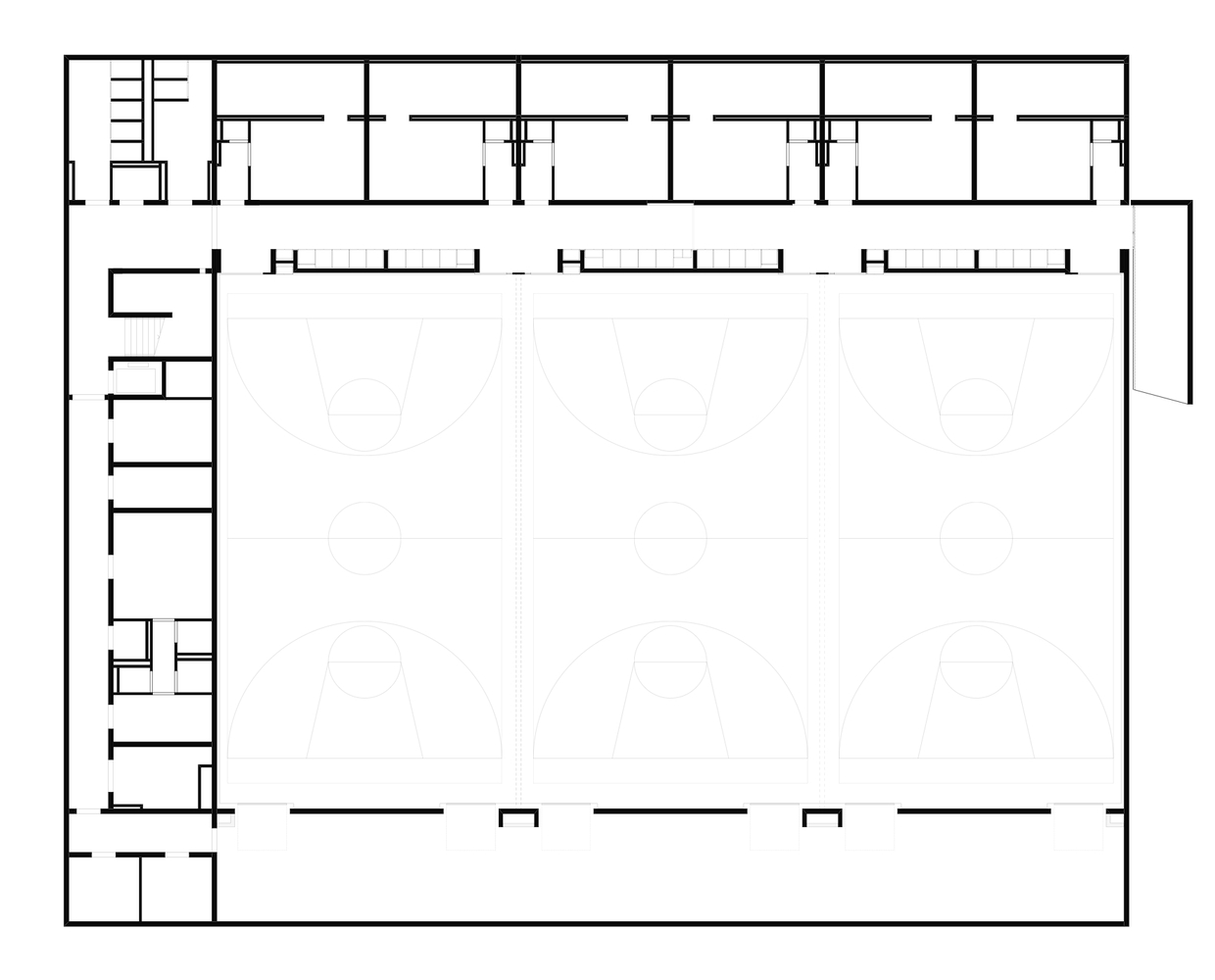
瑞士La Sablliane学校平面图
瑞士La Sablliane学校平面图
瑞士La Sablliane学校平面图
瑞士La Sablliane学校剖面图
瑞士La Sablliane学校剖面图
瑞士La Sablliane学校剖面图
瑞士La Sablliane学校立面图
瑞士La Sablliane学校立面图
客服
消息
收藏
下载
最近























