查看完整案例

收藏

下载
项目名称:澳大利亚海格特小学
位置:澳大利亚
设计公司:Iredale Pedersen Hook
新的海格特小学为学生提供了融入街区的创造性环境,不仅改变了人们看待环境的方式,也改善了人与环境的关系。从街道远景到亲密课堂,建筑提供了不同规模的校园体验。设计开发光、颜色和图案作为教育的工具,将课堂扩展至整个建筑环境。新校园作为城市响应多元文化、容纳多元人群的缩影,成为当地一处深受喜爱的空间。校园旧址已纳入国家遗产名录。基于以上背景,Iph事务所对整个场地展开细致研究,以保证最大限度地避开关键位置,减少对建筑遗产、休闲区和景观的影响。设计创造出一种鲜明的城市姿态,位于街角的学校重新定义了人们进入校园的方式。这座“角塔”位于城市和宗教建筑、工业塔楼以及树木的交汇点,设计以塔楼和面向城市的大窗户回应了这一交汇的地理位置,使课堂活动成为街头体验的一部分,同时也将街道空间引入校园。林肯街融入城市远景,为临近的建筑遗产提供了喘息空间。
设计通过双通道楼梯激活建筑轮廓,在城市和遗产间构成了新的高架景观。学校的材料和形式以遗产建筑为参考,却不局限于模仿。设计通过一个阶梯式的天然石灰石楼梯、四块红砖聚合体、一段白色墙体和一个镀锌钢屋顶,构成了折叠与倾斜体量的连续对话。背光聚碳酸酯的“古怪”介入与相邻小型住宅的背光彩色玻璃窗相呼应,在白天和黑夜间形成了一道流传的风景。项目遵循当地规范,对教室进行标准化设计。空间通过精确地缩进响应了街道和场地环境,也提供了通往教室与更高层的入口塔。缩进和通高的部分在上下层间创造出多重对话,使低年级学生可以望见下一阶段的学习地点。
教室内,面向城市的北侧角落体现着时间的流动,三个明亮的色块标记着早上、中午和下午的冬至投影。室外教学空间中的圆形天窗引入了朝北的日光,墙壁和地板上的圆形入口图案和紫色线标志着学期的开始和结束。颜色的设计还对应着六个Whadjuk季节,作为一种教学工具致敬了原住民的历史,六种Whadjuk季节能够对应解释全年的季节变化现象。社区和学校对新校园的反响十分热烈,家长们热切地期待孩子使用这些空间,老师们也已找到了拥抱校园环境的不同方式。设计为预算低于标准模式的小学项目找到了解决方案,在降低预算的条件下成功地实现了体验的多样性、个性化和复杂性。
澳大利亚海格特小学外部实景图
澳大利亚海格特小学外部实景图
澳大利亚海格特小学外部实景图
澳大利亚海格特小学外部实景图
澳大利亚海格特小学外部实景图
澳大利亚海格特小学外部实景图
澳大利亚海格特小学外部实景图
澳大利亚海格特小学外部实景图
澳大利亚海格特小学外部实景图
澳大利亚海格特小学外部实景图
澳大利亚海格特小学外部实景图
澳大利亚海格特小学外部实景图
澳大利亚海格特小学外部实景图
澳大利亚海格特小学外部实景图
澳大利亚海格特小学外部实景图
澳大利亚海格特小学外部实景图
澳大利亚海格特小学外部实景图
澳大利亚海格特小学外部实景图
澳大利亚海格特小学内部实景图
澳大利亚海格特小学内部实景图
澳大利亚海格特小学内部实景图
澳大利亚海格特小学内部实景图
澳大利亚海格特小学内部实景图
澳大利亚海格特小学内部实景图
澳大利亚海格特小学内部实景图
澳大利亚海格特小学内部实景图
澳大利亚海格特小学内部实景图
澳大利亚海格特小学内部实景图
澳大利亚海格特小学内部实景图
澳大利亚海格特小学立面图
澳大利亚海格特小学立面图
澳大利亚海格特小学立面图
澳大利亚海格特小学立面图
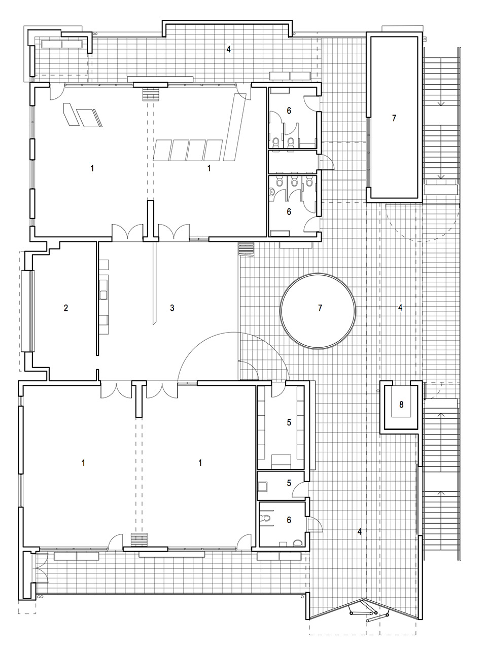
澳大利亚海格特小学平面图
澳大利亚海格特小学平面图
澳大利亚海格特小学平面图
澳大利亚海格特小学剖面图
澳大利亚海格特小学剖面图
客服
消息
收藏
下载
最近









































