查看完整案例

收藏

下载
项目名称:日立市花山认证儿童中心
位置:日本
设计公司:三上建筑师
摄影师:堀内浩二
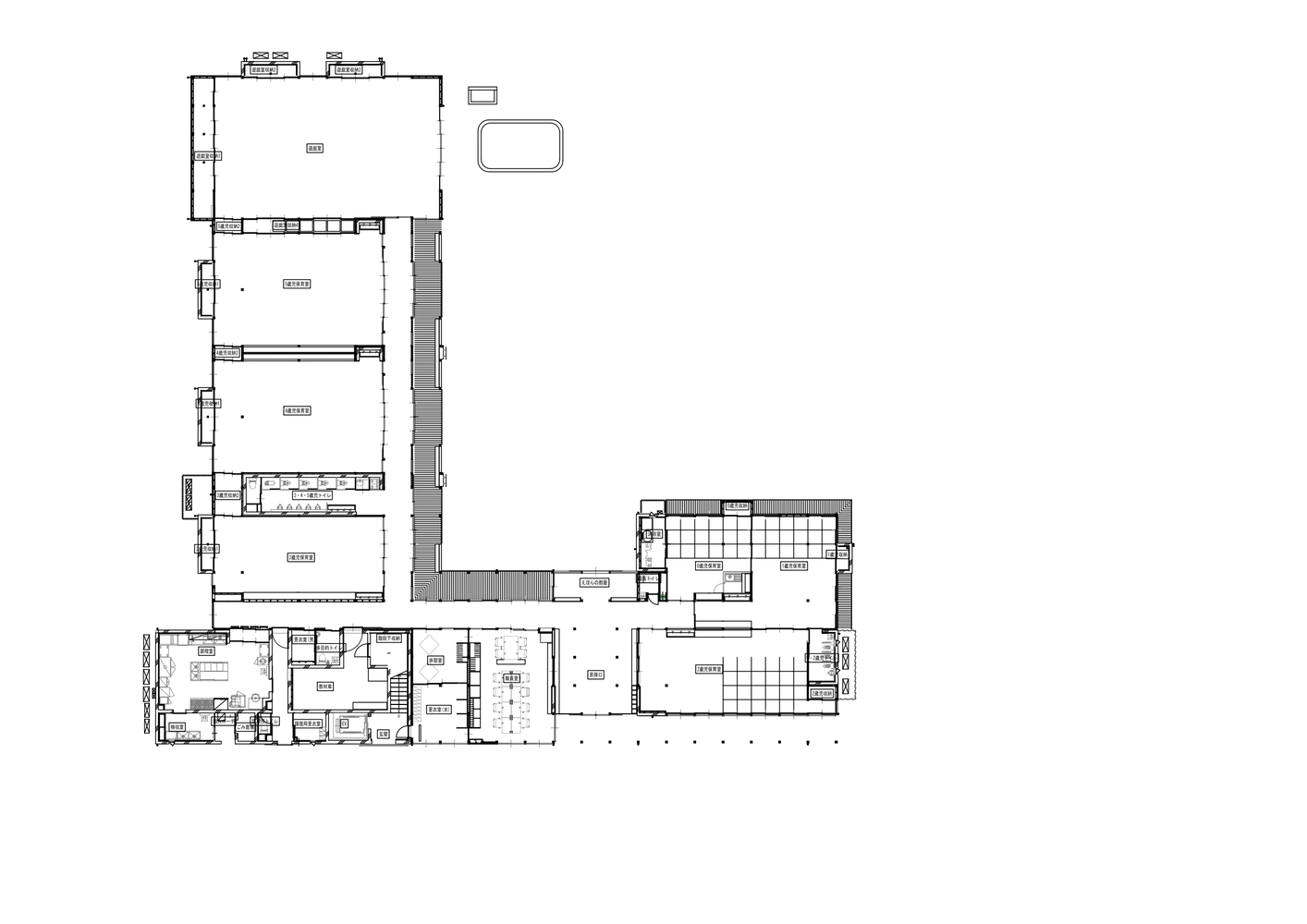
该场地位于面向远处大海的缓坡山丘的中间。周围是很久以前建造的住宅。我们试图在里山建一座房子,让孩子们被群山拥抱。新的儿童中心将布置成 L 形,环绕操场(现有幼儿园的一部分)的东南部。主要办公室、入口和0至2岁儿童的教室位于西侧,3至5岁儿童的游戏室和教室位于北侧。每个保育室都有自己的屋顶,使它看起来像一个里山村。西侧年幼的房子是方形屋顶,大孩子的房子是北向南的山脊屋顶,并建造了一个附属物来连接两者。托儿所前面的房间有走廊和开放式阳台,每间宽1.8 m,在外面提供了充足的屋檐空间。和过去的农家一样,孩子们上幼儿园的时候,也会从阳台上进出,在操场上玩耍。虽然它是一个木结构,但抗震元件的分布和排列类似于钢筋混凝土结构。正因为如此,在面向操场的附楼部分中,支柱和墙壁被排除在外,以营造里山私人住宅的外观。
日立市花山认证儿童中心外部实景图
日立市花山认证儿童中心外部实景图
日立市花山认证儿童中心外部实景图
日立市花山认证儿童中心外部实景图
日立市花山认证儿童中心外部实景图
日立市花山认证儿童中心外部实景图
日立市花山认证儿童中心外部实景图
日立市花山认证儿童中心外部实景图
日立市花山认证儿童中心外部实景图
日立市花山认证儿童中心内部实景图
日立市花山认证儿童中心内部实景图
日立市花山认证儿童中心内部实景图
日立市花山认证儿童中心内部实景图
日立市花山认证儿童中心内部实景图
日立市花山认证儿童中心内部实景图
日立市花山认证儿童中心内部实景图
日立市花山认证儿童中心内部实景图
日立市花山认证儿童中心内部实景图
日立市花山认证儿童中心内部实景图
日立市花山认证儿童中心内部实景图
日立市花山认证儿童中心内部实景图
日立市花山认证儿童中心内部实景图
日立市花山认证儿童中心平面图
日立市花山认证儿童中心平面图
日立市花山认证儿童中心平面图
日立市花山认证儿童中心剖面图
客服
消息
收藏
下载
最近





























