查看完整案例

收藏

下载
项目名称:五邑大学学生服务中心
位置:广东
设计公司:华南理工大学建筑设计研究院有限公司
五邑大学学生服务中心位于广东省江门市五邑大学校园内,建筑面积3300平方米,楼高3层约15米,但可建设用地较为局促仅约2000平方米(扣除滨水区规划退缩范围后)。该项目是包括服务大厅、学生办事窗口、多功能课室、辅导室、展厅以及配套办公等功能的校园综合体,设计突破传统概念中服务中心使用空间单一和隔绝的刻板印象,采用立体园林式的非正式学习空间模式,实现室内外空间在通用与灵活、分散与集中、开放与封闭中的动态均衡;从而在校园和城市之间,为师生创造了可以开展行政服务、辅导、学习、交流、聚会、轻餐饮、临时展览和专题讲座等多元化社会交往和文化交流活动的丰富而复合的场所。项目北临天沙河,东南邻东湖公园,与一个小山丘隔湖相望。整个用地背山面水,周边绿树成林,其俨然位于一个天然的大园林之中。设计以“融入”为主题,从中国山水园林中获得灵感,让建筑体量在整体的框架围合中进行高低错落、凹凸进退等变化,在大园林之中营造小园林,形成复合的空间层次,与周边的自然环境融为一体。传承和转译岭南传统建筑对于地域气候的适应性措施。
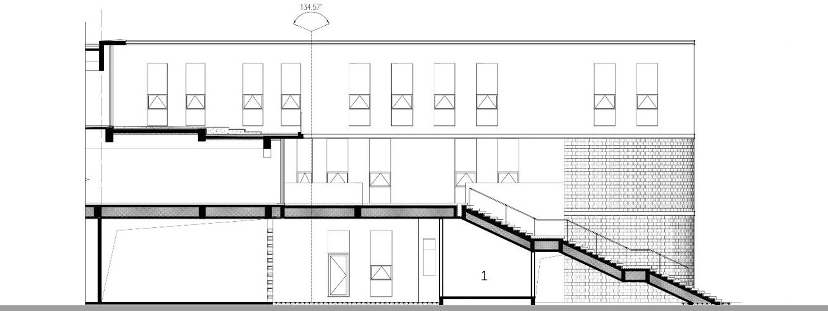
首层局部架空、立体园林的穿插、半室外空间的介入等设计手法让建筑造型更为灵动,在城市和校园之间建立起让阳光和风得以穿越渗透的通道,有效营造舒适的小气候。建筑外轮廓生成是基于用地形状的推导。其位于校园与水系之间的三角形交界地带,可建设范围相对于建设规模而言有着较大的局限,常见的规则形状平面并不适用于此地块。对此,方案设计顺应三角形的用地边界形状,巧妙的塑造建筑外轮廓,并通过转角的倒圆角处理,让建筑外观更为圆融顺畅。在三角形的整体体量之下,运用减法的处理,在各层体块中打通流线和视线的通廊,引入不同方向的自然景观,让建筑空间和造型在整体中富于变化。设计把学生服务中心作为独特而整体的形体放置于校园、东湖公园及天沙河三者之间,犹如一个雕塑融合于自然之中,营造了一个鲜明的城市节点空间。减法是应对不规则用地边界的常见建筑处理方式,这种因地制宜的设计策略在本项目中也是对用地周边环境的有效整合。作为大园林中的小园林,学生服务中心穿插着一系列立体化的“凹”园林——不同标高的空中庭院、绿化平台和观景廊道等等——它们是通过减法形成的建筑灰空间,也成为建筑内外空间互渗互借的所在。
属于非正式学习区域的“凹”园林与室内公共空间及交通空间有机结合,是功能空间的有效补充,它们所营造的与自然亲密接触的互动空间,使学生服务中心随着自然景观的季节更迭而获得丰富的环境体验。主入口在建筑形体的半包裹中,通过大台阶把广场延伸至二层,并成为一个休息观景的场所。二层面向东湖公园的区域设置了长向连续的凹阳台,建筑界面上运用大面积通透的玻璃幕墙,让凹阳台成为一个长向的框景窗把优美的室外景观引入内部,模糊了室内外的界限。三层的局部设置屋顶花园,并且配合建筑造型形成弧形的观景游廊,形成尽收眼底的270度美景。立面设计立足在富有活力的造型之下回归简洁和质朴的本真。立面材料选择了清水混凝土实墙与仿红砖质感的陶土砖通花幕墙,配合通透的玻璃幕墙。色调上与校园主色调砖红色一致,使建筑与校园风貌更好的协调。仿红砖质感的陶砖通花幕墙则通过全新的搭砌规律及构造技术,重新演绎了红砖厚重却细腻的气质和充满变化的细部效果。立面在统一之中创造明暗显隐的虚实变化,实现历史与现代的视觉观感交融,体现求同存异、在传承中创新的设计内涵。
五邑大学学生服务中心外部实景图
五邑大学学生服务中心外部实景图
五邑大学学生服务中心外部实景图
五邑大学学生服务中心外部实景图
五邑大学学生服务中心外部实景图
五邑大学学生服务中心外部实景图
五邑大学学生服务中心外部实景图
五邑大学学生服务中心外部实景图
五邑大学学生服务中心外部实景图
五邑大学学生服务中心外部实景图
五邑大学学生服务中心外部实景图
五邑大学学生服务中心外部实景图
五邑大学学生服务中心外部实景图
五邑大学学生服务中心外部实景图
五邑大学学生服务中心外部实景图
五邑大学学生服务中心外部实景图
五邑大学学生服务中心外部实景图
五邑大学学生服务中心外部实景图
五邑大学学生服务中心外部实景图
五邑大学学生服务中心外部实景图
五邑大学学生服务中心外部实景图
五邑大学学生服务中心外部实景图
五邑大学学生服务中心外部实景图
五邑大学学生服务中心平面图
五邑大学学生服务中心平面图
五邑大学学生服务中心平面图
五邑大学学生服务中心剖面图
客服
消息
收藏
下载
最近






























