查看完整案例

收藏

下载
项目名称:奥地利库夫施泰因小镇上的高中学校
位置:奥地利
设计公司:WIESFLECKER ARCHITECTURE
摄影师:David Schreyer
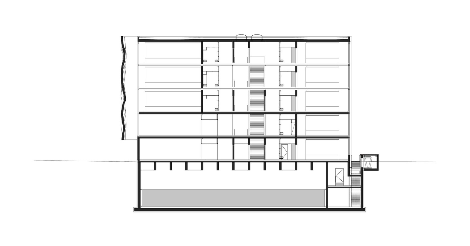
这是一座位于库夫施泰因小镇席勒大街上的高中学校建筑,其历史悠久。它由来自斯图加特的建筑师 Willy Graf 规划设计,并于1907年落成后开始使用。在1980年前后,它经历了扩建和翻新,风格却始终与原建筑保持一致。在2009年,距上次改造已有近30年之时,该建筑再一次迎来了必要的扩建工程。此次设计是竞赛制,由建筑师 Johannes Wiesflecker 夺魁,他凭借在过往项目中赋予原建筑城市主义色彩,以及特殊的内部规划而被公认。该项目中,已有建筑是一座具有当地20世纪初传统风格的历史遗迹,而建筑师新增设了一个独立的圆锥形结构建筑,大约可容纳原所有学生的一半。这样一来,此次扩建部分与原建筑在外形上就能被明显地区分开来。新建大楼的主入口区域十分宽阔,沿着原有的U形大楼内侧而设,环绕出一个半包围式的内庭,也留出空间用于新设的地下室健身房,这使得该建筑的空间更具层次感。西南向的外立面悬挂着一面剪力墙,与原建筑玻璃幕墙之间约距2.5米。这面极具艺术感的墙成为了新增建筑中最具辨识度的部分。由艺术家 Karl-Heinz Klopf 参与打造的这面“褶皱墙”,虽由3D混凝土结构铸成,却似一张压皱纸般轻盈地盖在大楼的整个西南向外立面,从底楼直到屋顶。
奥地利库夫施泰因小镇上的高中学校外部实景图
奥地利库夫施泰因小镇上的高中学校外部实景图
奥地利库夫施泰因小镇上的高中学校外部实景图
奥地利库夫施泰因小镇上的高中学校外部实景图
奥地利库夫施泰因小镇上的高中学校外部实景图
奥地利库夫施泰因小镇上的高中学校内部实景图
奥地利库夫施泰因小镇上的高中学校内部实景图
奥地利库夫施泰因小镇上的高中学校内部实景图
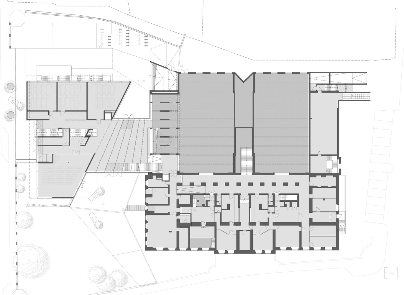
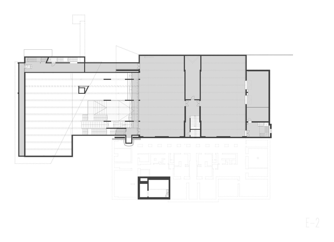
奥地利库夫施泰因小镇上的高中学校平面图
奥地利库夫施泰因小镇上的高中学校平面图
奥地利库夫施泰因小镇上的高中学校平面图
奥地利库夫施泰因小镇上的高中学校平面图
奥地利库夫施泰因小镇上的高中学校剖面图
奥地利库夫施泰因小镇上的高中学校剖面图
奥地利库夫施泰因小镇上的高中学校剖面图
客服
消息
收藏
下载
最近


















