查看完整案例

收藏

下载
项目名称:深圳南方科技大学会堂
位置:广东 深圳
设计公司:AUBE欧博设计
由AUBE欧博设计团队打造的南方科技大学会堂位于南方科技大学校园内西南地块,是集会议中心、 多功能小剧场、报告厅、未来教育中心等功能于一体的独栋公共建筑。AUBE欧博设计于2015年中标并获得设计委托,经过5年的建设,已于2020年底建成并投入使用。南方科技大学(简称南科大)位于深圳市南山区西丽大学城片区内,是深圳在中国高等教育改革发展的宏观背景下创建的一所高起点、高定位的公办创新型大学。南科大校园强调突出自然景观,弱化人工痕迹。整体规划并不刻意塑造行政化的轴线罗列的校园功能,而是让建筑依山就势,利用地形现状,以水景为线索,通过若干景观带串联各个书院组团,营造自然流动的校园空间。校园内建筑均为现代风格,各具特色又和谐统一,强调公共空间的营造,适应深圳的气候特点,利用灰空间为师生提供更多活动交流场所。南科大会堂的设计也秉承了现有理念,谨慎对待基地内现有的山形与景观资源。项目基地所属位置既是校园内多条景观通廊的视觉尽端,也是校园的城市展示面。
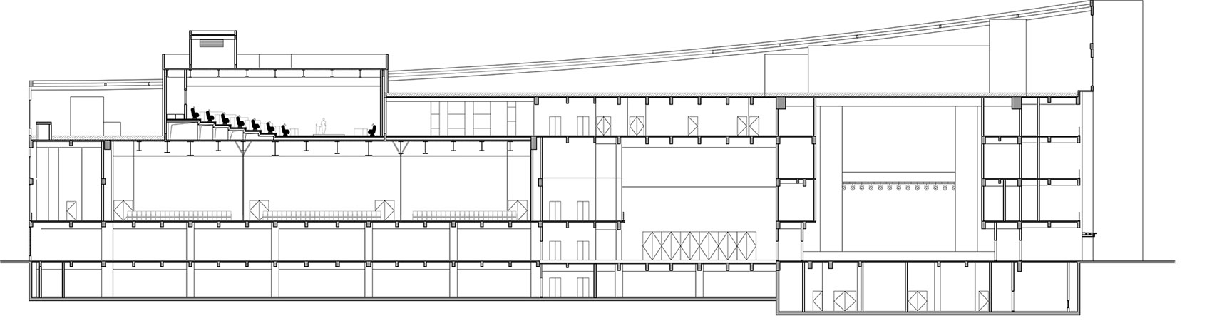
基地呈不规则三角形,其内有一灌木覆盖的堆土山体,如何处理建筑与山体的关系,是设计的关键点。南科大会堂紧邻城市界面,分为会堂及酒店(二期建设)两大主要功能。建筑体量顺应山体等高线布置,由西侧至东依次为会议、剧场、未来教育中心。车行利用建筑北侧外围道路进入基地。会堂人行主入口位于建筑东北侧,并利用竖向交通组织串联各个不同性质不同标高的功能。建筑结合内部功能的空间需求,呈两端向中部降低的流线型,以最大化保留基地内部山体为主要原则,减少土方量。基地现状山体相对高度约25米,设计局部调整山体范围,山体高度基本维持不变。南科大会堂主要功能包含800人大会议厅、620人多功能小剧场、200人圆形报告厅以及其他中小会议室 及办公空间,总建筑面积约1.78万平方米。建筑内部空间充分考虑会议中心与剧场两大核心功能使用的独立 性与公共空间的共享。会议中心与剧场共享入口门厅,门厅净高约10米。门厅中设置1部普通客用电梯与1部 VIP 电梯, 满足会议中心与剧场的人员运输与无障碍要求。主要人流由门厅的台阶引导至二层,并向两侧分流。
建 筑内部主要公共空间环绕会议中心前厅以及剧场前厅设置,并与室外花园自然衔接,创造多种公共交往、 休息的区域,也兼顾人员疏散的需求。建筑造型整体形态完整流畅,与二期酒店统一形成西高东低环绕现状山体的流线型。不同的建筑表情,兼顾校区界面的利落与山体景观的交错融合。建筑主要以浅色为基调,采用铝板材料营造建筑的现代感。北侧以通透的玻璃为主要材质,弧形的屋面与立面的垂直竖向线条结合,立面元素简洁而轻盈通透,与校园所倡导的自由开放的建筑风格相呼应。酒店部分将利用阳台,将视线景观引导至校园和山体一侧,同时兼顾遮阳的需求。在景观设计方面,设计团队通过对山体的详细分析,将活动功能设置在面向建筑的一侧,另一侧则主要是生态林。山脚下的广场为建筑与山体之间留出适宜的距离,避免局促感,同时作为会堂与酒店的花园使用。广场旁顺着山体的走势设置了绿色休憩台阶,而具有私密感的休憩木平台则设置在了山腰位置。同时,草坪安放在了山顶处,可登高望远、享受阳光。建成后的深圳南方科技大学会堂迎来了联合国教科文组织高等教育创新中心(中国深圳)的进驻, 为创新中心提供永久办公场所。校园文化基础设施全面完善将为校园生活带来更多的活力和人文气息。
深圳南方科技大学会堂外部实景图
深圳南方科技大学会堂外部实景图
深圳南方科技大学会堂外部实景图
深圳南方科技大学会堂外部实景图
深圳南方科技大学会堂外部实景图
深圳南方科技大学会堂外部实景图
深圳南方科技大学会堂内部实景图
深圳南方科技大学会堂内部实景图
深圳南方科技大学会堂内部实景图
深圳南方科技大学会堂平面图
深圳南方科技大学会堂平面图
深圳南方科技大学会堂平面图
深圳南方科技大学会堂剖面图
深圳南方科技大学会堂立面图
客服
消息
收藏
下载
最近

















