查看完整案例

收藏

下载
项目名称:丹麦校园综合体建筑
位置:丹麦
设计公司:ADEPT, CREO ARKITEKTER A/S
摄影师:Adam Mørk
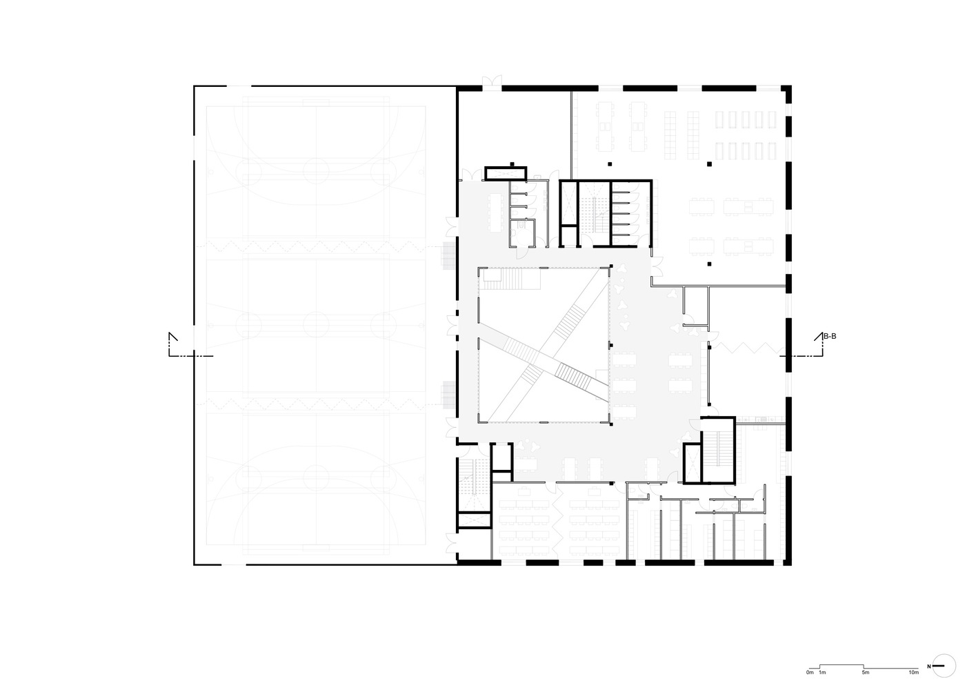
树皮公园将四个教育和创新项目整合在一个屋顶下——将学生、研究人员和工作人员与共享的体育设施和城市特征联系起来。这是一个挑战心灵和身体的建筑,并在建筑与周围环境之间建立起紧密的联系。将体育设施作为“屋顶”,横跨四间房屋,我们创造了一种物质和精神上的分享体验,同时也创造了知识与运动之间的新混合体。这是四个独立的体量但又在几个方面相互联系:城市的空间漂浮在入口处的建筑物上,交叉的楼梯连接三层高的中庭和顶层公共区域。顶层的体育设施在四座厚重的房屋上方盘旋,并赋予建筑以一种真正具有启发性的身份。当夜幕降临时,一个关于教育、研究和运动的活跃环境的故事拉开了序幕。一个大天窗将日光照射在公共广场上,那里有一个集社会和行政功能的会议中心,在建筑的中心位置。站在广场上看,建筑中交叉的楼梯是一个额外的空间层。 这栋楼里的每栋房屋都有自己的正面形象,混凝土材质与楼梯的明度对比。
丹麦校园综合体建筑外部实景图
丹麦校园综合体建筑外部实景图
丹麦校园综合体建筑外部实景图
丹麦校园综合体建筑外部实景图
丹麦校园综合体建筑外部实景图
丹麦校园综合体建筑外部实景图
丹麦校园综合体建筑外部实景图
丹麦校园综合体建筑外部实景图
丹麦校园综合体建筑外部实景图
丹麦校园综合体建筑外部实景图
丹麦校园综合体建筑外部实景图
丹麦校园综合体建筑内部实景图
丹麦校园综合体建筑内部实景图
丹麦校园综合体建筑内部实景图
丹麦校园综合体建筑内部实景图
丹麦校园综合体建筑内部实景图
丹麦校园综合体建筑内部实景图
丹麦校园综合体建筑平面图
丹麦校园综合体建筑平面图
丹麦校园综合体建筑平面图
丹麦校园综合体建筑平面图
丹麦校园综合体建筑平面图
丹麦校园综合体建筑平面图
丹麦校园综合体建筑剖面图
丹麦校园综合体建筑立面图
丹麦校园综合体建筑立面图
丹麦校园综合体建筑立面图
丹麦校园综合体建筑立面图
客服
消息
收藏
下载
最近































