查看完整案例

收藏

下载
项目名称:摩洛哥阿尤恩技术学校
位置:摩纳哥
设计公司:Driss Kettani, Mohamed Amine Siana, Saad El Kabbaj
摄影师:Doublespace Photography
阿尤恩技术学校项目是在摩洛哥地方设置大学城计划的一部分。项目涵盖了教学空间(教室、工作室和阶梯教室)、图书馆、行政办公室、教师办公室和服务配套(维修空间、员工住宿等)。场地距市中心很远,因此需要通过轴线组织形成了“城市性”,进而产生对周围场地多样性的清晰而全面的解读。建筑群分布稀疏,通透的空间有利于通风和纳入光照。而外部流线与广场等公共空间强化了城市性的概念。设计的建筑语言是是实在的,几何化的。外面采用了醒目的赭石色,而室内采用了明快的浅色。由于场地所在热带地区,这里采用了各种遮阳措施:遮阳板、双层表皮、和有顶长廊等。尽量简化的材料元素强调了抽象的感念和连贯性,同时满足可持续性和便于维护的需要。
摩洛哥阿尤恩技术学校外部实景图
摩洛哥阿尤恩技术学校外部实景图
摩洛哥阿尤恩技术学校外部实景图
摩洛哥阿尤恩技术学校外部实景图
摩洛哥阿尤恩技术学校外部实景图
摩洛哥阿尤恩技术学校外部实景图
摩洛哥阿尤恩技术学校外部实景图
摩洛哥阿尤恩技术学校外部实景图
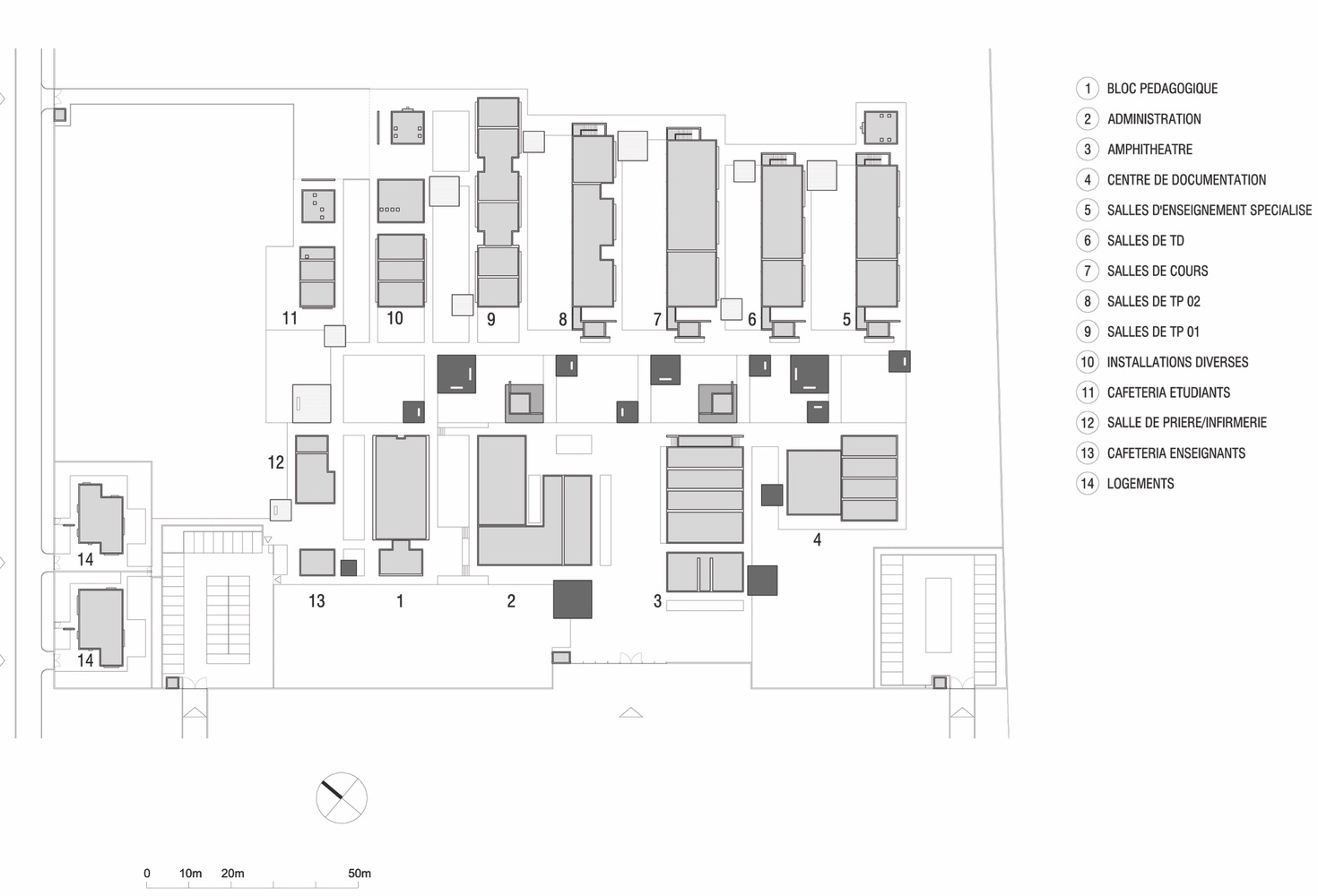
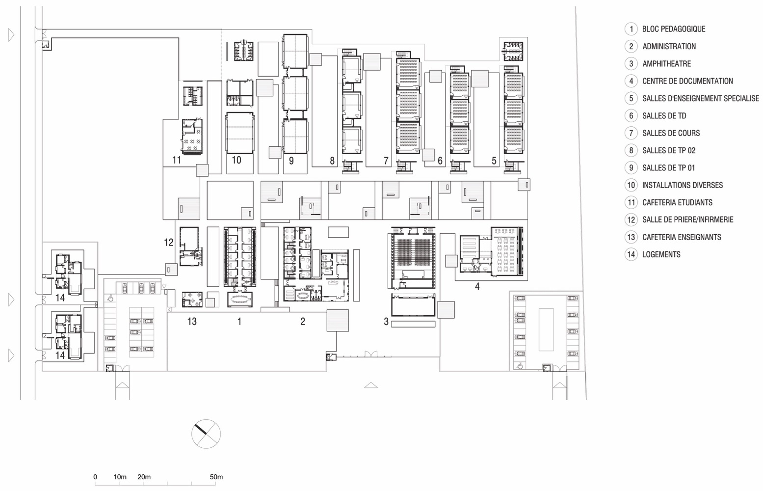
摩洛哥阿尤恩技术学校平面图
摩洛哥阿尤恩技术学校平面图
摩洛哥阿尤恩技术学校立面图
客服
消息
收藏
下载
最近














