查看完整案例

收藏

下载
项目名称:比勒陀利亚大学的哈菲尔德校区Akanyang建筑
位置:南非
设计公司:Two Five Five Architects
摄影师:Natasha Dawjee Laurent
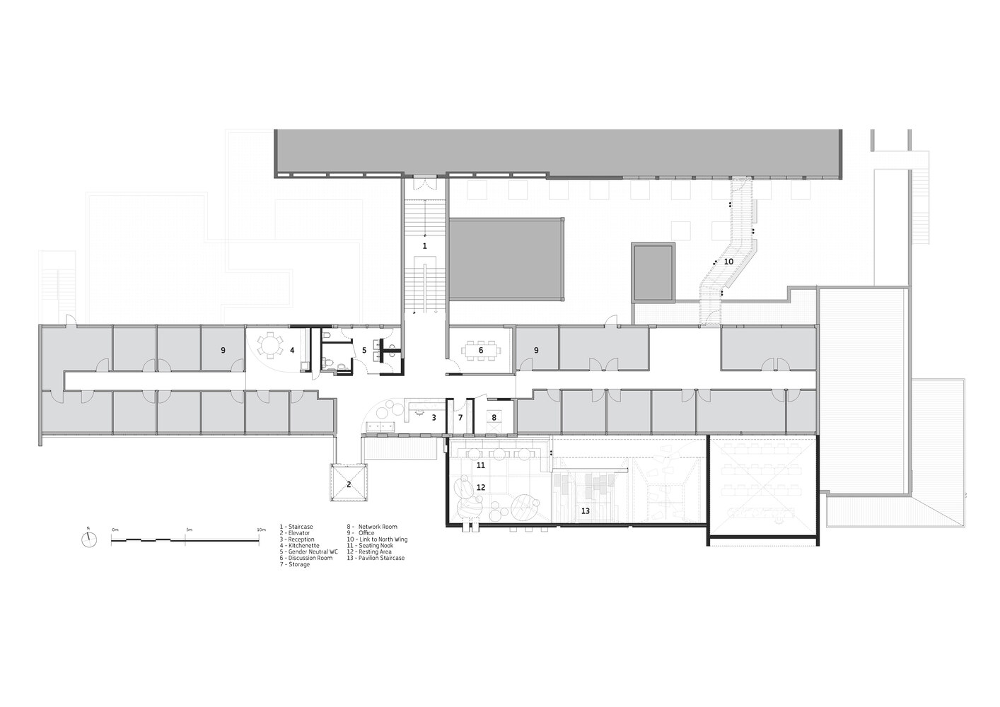
从本质上讲, Akanyang是一个社会学习环境,学生可以聚集在这里以新的方式互动学习。Akanyang位于比勒陀利亚大学的哈菲尔德(Hatfield)校区,为学生提供了一个安全的空间。该建筑强调了大学的现代教育方法。Akanyang通过为学生提供教育和休闲场所,解决了大学对于社交互动学习环境不断增长的需求。这个设施是现有Huis & Haard建筑的南部延伸。Akanyang藏匿在该校区的人行走廊里,使它可以与路过的学生进行互动并引导学生们进入该空间。Akanyang的外立面由三个建筑组件组成。混凝土箱,屋顶空间和灯塔(升降井)。悬挂在人行道上的混凝土结构不仅可以作为社会评论的标牌,还可以当作一个长椅。灯塔被用作入口和标识。屋顶空间顺着建筑物的侧面向下延伸,使人们能够瞥见建筑的内部并产生好奇。这个设施的最终使用者和运营者是NAS(自然与农业科学学院)和CSA&G(性,艾滋与性别中心),他们的愿景是“了解力量,探索多样性,研究差异并想象包容性。”这些价值对于应用在Akanyang上的设计理念至关重要。重点放在了该设施的包容性上,以确保从公共通道到洗手间的所有事物都具有包容性且不分性别。建筑计划需要学生们能够在舒适的社交环境中聚会、学习、休息、见面、讨论、工作甚至购物。
因此,我们希望学生能够探索空间所带来的多样性,并且能够自由的调整这些空间以适应他们的需求。从例如VITRA工具凳之类的家具到空间规划的所有过程,都使学生能够根据自己的需要塑造空间。画廊的座椅可以通过从组合中分离来达到更多的私密性,也可以排列成为演讲的场地。可移动的墙板使学生可以创造出自由的讨论空间或者小隔间,也可以折叠起来创造出更大的活动空间。CSA&G的中心部分是学生咨询,这个计划不仅需要为大众提供能够使用社会学习设施的场地,还需要确保访问CSA&G的学生的隐私。因此,减少了放置在行人走廊上的窗户数量。同时屋顶空间向上连接现有的建筑,从而使北向的阳光能够通过天窗。CSA&G的中心部分是学生咨询,这个计划不仅需要为大众提供能够使用社会学习设施的场地,还需要确保访问CSA&G的学生的隐私。因此,减少了放置在行人走廊上的窗户数量。同时屋顶空间向上连接现有的建筑,从而使北向的阳光能够通过天窗。项目的其他要求包括CSA&G办公室的升级和翻新,电梯的增加,杂货店/外卖店的零售空间增加,以及现有洗手间设施的升级从而确保他们都有包容性。这个建筑的设计意图是能够让他的使用者学习,社交并且对空间有拥有感。因此取名为Akanyang,这是一个茨纳瓦人的名字,意思为思考。
比勒陀利亚大学的哈菲尔德校区Akanyang建筑外部实景图
比勒陀利亚大学的哈菲尔德校区Akanyang建筑外部实景图
比勒陀利亚大学的哈菲尔德校区Akanyang建筑外部实景图
比勒陀利亚大学的哈菲尔德校区Akanyang建筑外部实景图
比勒陀利亚大学的哈菲尔德校区Akanyang建筑外部实景图
比勒陀利亚大学的哈菲尔德校区Akanyang建筑外部实景图
比勒陀利亚大学的哈菲尔德校区Akanyang建筑内部景图
比勒陀利亚大学的哈菲尔德校区Akanyang建筑内部实景图
比勒陀利亚大学的哈菲尔德校区Akanyang建筑内部实景图
比勒陀利亚大学的哈菲尔德校区Akanyang建筑内部实景图
比勒陀利亚大学的哈菲尔德校区Akanyang建筑内部实景图
比勒陀利亚大学的哈菲尔德校区Akanyang建筑内部实景图
比勒陀利亚大学的哈菲尔德校区Akanyang建筑内部实景图
比勒陀利亚大学的哈菲尔德校区Akanyang建筑内部实景图
比勒陀利亚大学的哈菲尔德校区Akanyang建筑平面图
比勒陀利亚大学的哈菲尔德校区Akanyang建筑平面图
比勒陀利亚大学的哈菲尔德校区Akanyang建筑平面图
比勒陀利亚大学的哈菲尔德校区Akanyang建筑平面图
比勒陀利亚大学的哈菲尔德校区Akanyang建筑剖面图
比勒陀利亚大学的哈菲尔德校区Akanyang建筑剖面图
比勒陀利亚大学的哈菲尔德校区Akanyang建筑剖面图
比勒陀利亚大学的哈菲尔德校区Akanyang建筑剖面图
比勒陀利亚大学的哈菲尔德校区Akanyang建筑立面图
客服
消息
收藏
下载
最近


























