查看完整案例

收藏

下载
项目名称:比利时圣卢卡斯艺术学院
位置:比利时
设计公司:肯佩特希尔工作室
摄影师:柏林·乌尔里希·施瓦茨(ULRICH SCHWARZ)
以安特卫普的圣卢卡斯艺术学院为例,工作室Kempe Thill面临着非常低的建筑预算作为起点。另外,客户要求一个复杂的太空计划,该计划必须部分整合到现有建筑物中。为了管理需求的减少,各种级别的优化和一般的极简主义已成为主要的设计准则。这所新房子是与该研究所的各种用户合作开发的,为当代艺术教育创造了条件。目的是将新大楼用作重新组织教育过程以及学院本身的手段,为迎接21世纪的挑战做好准备。 设计的起点是从1950年代后期开始对现有的护士学校进行改造。经过近60年的使用,这座令人愉悦的建筑仍然保持良好的状态,但仅提供了小而又不灵活的教室,这对于当代艺术教育和艺术生产来说是不充分的条件。由于预算不允许完全拆除现有房屋,因此Atelier Kempe Thill决定采用部分重复使用,部分改造和部分拆除的组合策略,以便为研究所的新扩建腾出空间。保留了沿街和侧楼的主体建筑,同时拆除了花园一侧的两个较小的礼堂。
改造主要集中在现有护理学校的底层。为了使学校更具公共性,几乎所有非承重墙和部分承重墙都已拆除,以实现更加突出和灵活的空间。通过引入新的大窗户,通向街道的立面得以开放,从而在街道与学校之间形成了强烈的视觉互动。公共艺术图书馆和展览厅等功能已沿着街道立面放置,以最大程度地与公众和城市互动。在中央侧翼实现了一个学生餐厅,它是社区的枢纽,与绿色庭院和入口大厅形成了视觉上的联系。此外,在现有学校的屋顶上放置了一个重要的照相馆。要创建工作室,必须将现有的屋顶部分拆除,以确保更高和更灵活的空间,并且必须添加新的辅助结构。在现有学校的花园一侧,以工作室房屋的形式进行的大量新扩建,为该学院提供了更灵活,更富启发性的工作室空间。新的,比较大的,成交量必须敏感地落实到20年代初的现有城市肌理个世纪的建筑块。因此,该建筑物的一部分要沉入地下以避免其变得太高,而新建筑物的最后一层会有很大的缩进,以减少新房子的视觉冲击。
带有开放式玻璃幕墙的工作室试图显得比较轻巧,并且正在寻找其阳极氧化的金属立面,以便与纪念性的Sint Laurentius教堂和附近的其他砖混建筑进行对话。紧凑的空间约为34m x 34m,由四个高度为3,75m的地板组成。具有良好日光条件的地下室,车间,印刷室和珠宝生产场所。一楼和二楼用作艺术家的工作室空间,并由大约12m高的空隙连接。8m x 13m,由中央大天窗照明。在二楼,可以找到研究所提供的绘画教育课程的空间。由此产生的项目可以看作是对艺术学校的未来讨论的有趣贡献。凭借开放的高原,学校在各个层面上都支持更多的协作工作方法,为未来提供了极大的灵活性,并激发了意想不到的艺术表达。建筑物的公共特征由开放式图书馆和永久性展览空间提供支持,两者直接与公共空间互动。
比利时圣卢卡斯艺术学院外部实景图
比利时圣卢卡斯艺术学院外部实景图
比利时圣卢卡斯艺术学院内部实景图
比利时圣卢卡斯艺术学院内部实景图
比利时圣卢卡斯艺术学院内部实景图
比利时圣卢卡斯艺术学院内部实景图
比利时圣卢卡斯艺术学院内部实景图
比利时圣卢卡斯艺术学院内部实景图
比利时圣卢卡斯艺术学院内部实景图
比利时圣卢卡斯艺术学院内部实景图
比利时圣卢卡斯艺术学院内部实景图
比利时圣卢卡斯艺术学院内部实景图
比利时圣卢卡斯艺术学院内部实景图
比利时圣卢卡斯艺术学院内部实景图
比利时圣卢卡斯艺术学院内部实景图
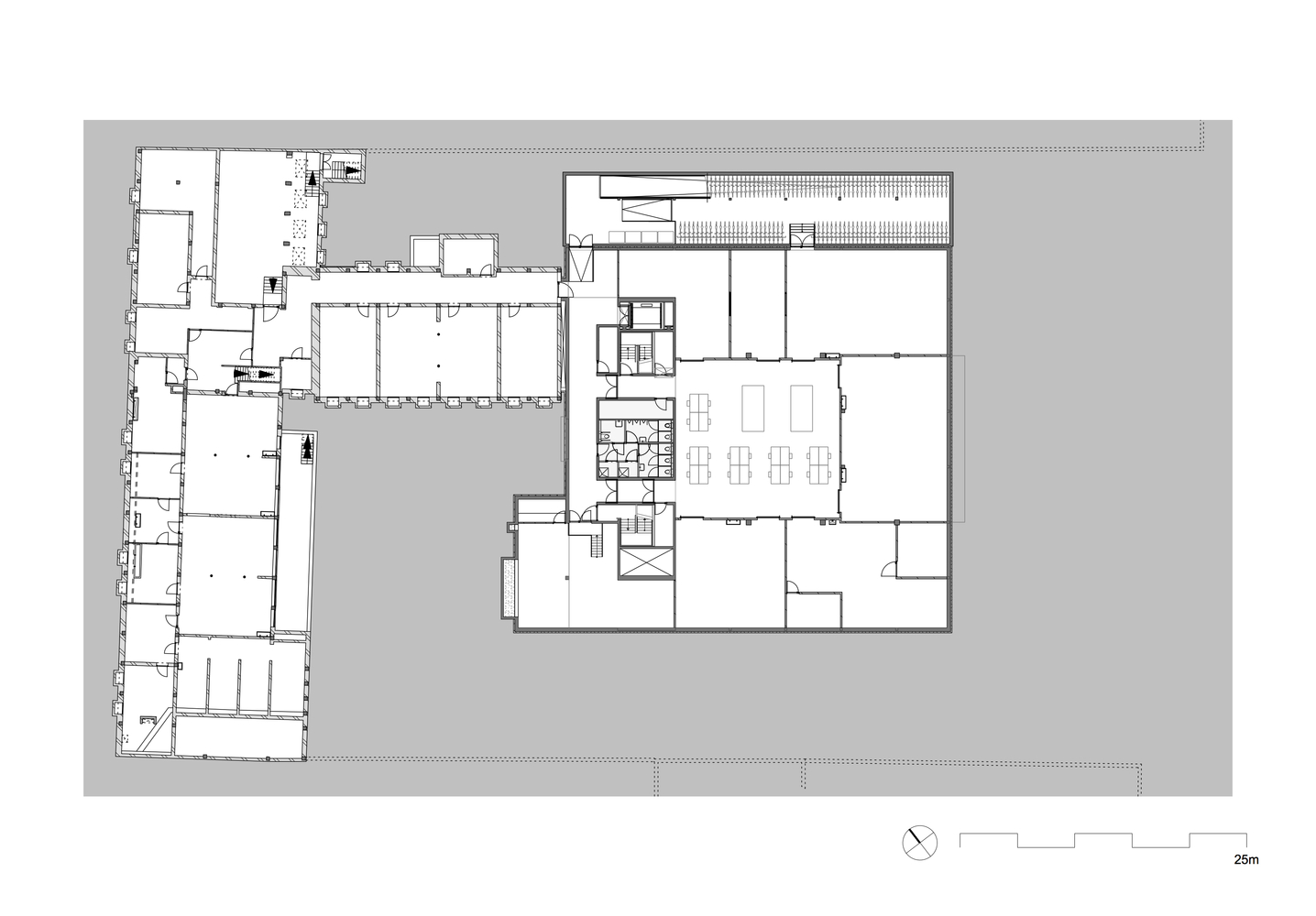
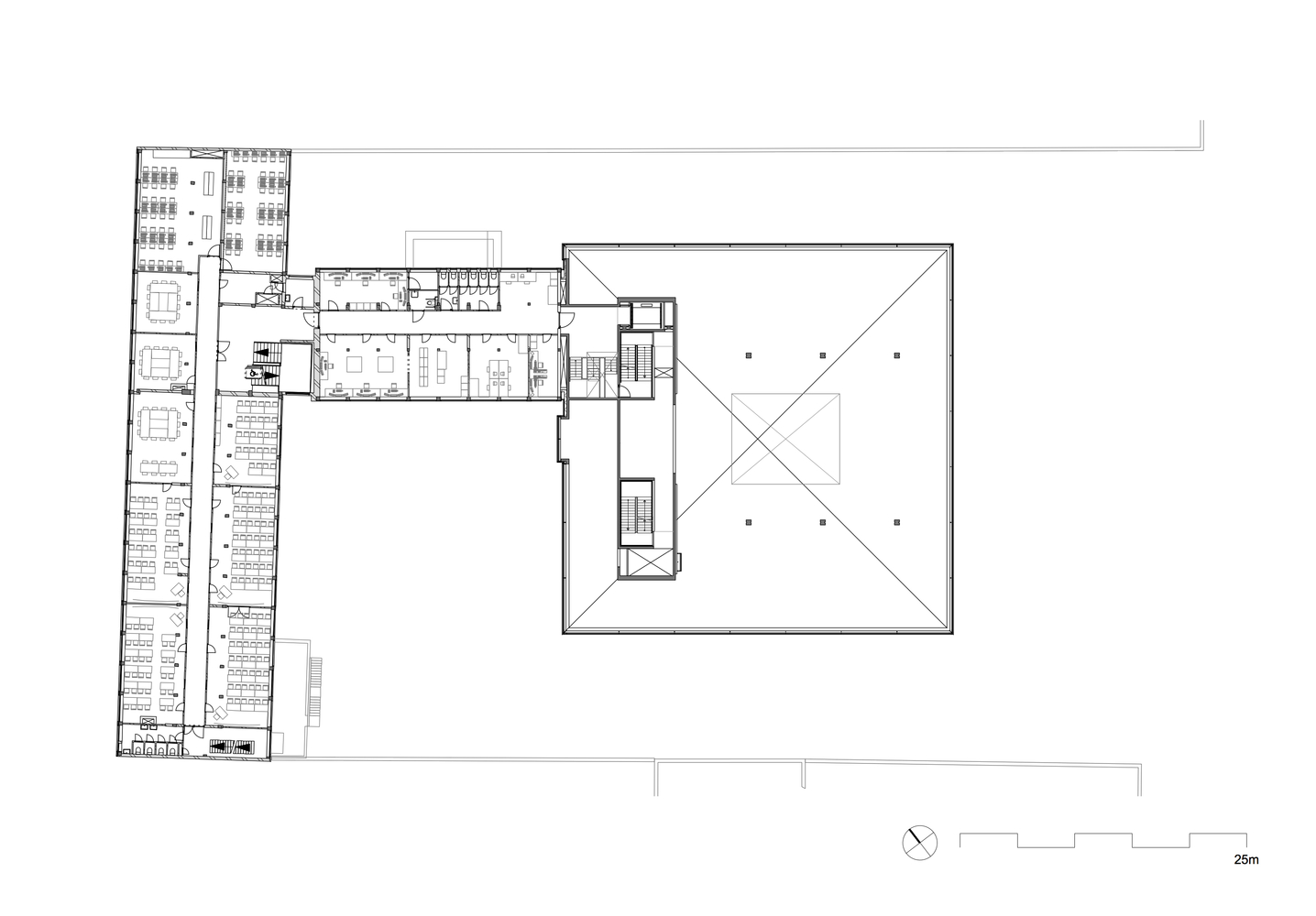
比利时圣卢卡斯艺术学院平面图
比利时圣卢卡斯艺术学院平面图
比利时圣卢卡斯艺术学院平面图
比利时圣卢卡斯艺术学院平面图
比利时圣卢卡斯艺术学院平面图
比利时圣卢卡斯艺术学院平面图
比利时圣卢卡斯艺术学院剖面图
比利时圣卢卡斯艺术学院剖面图
比利时圣卢卡斯艺术学院剖面图
比利时圣卢卡斯艺术学院剖面图
比利时圣卢卡斯艺术学院立面图
比利时圣卢卡斯艺术学院立面图
比利时圣卢卡斯艺术学院立面图
比利时圣卢卡斯艺术学院立面图
客服
消息
收藏
下载
最近
































