查看完整案例

收藏

下载
项目名称:深圳市福田区新洲小学
位置:广东 深圳
设计公司:东意建筑
拆旧建新的新洲小学是深圳新校园行动计划的“8+1”建筑联展项目之一。新校舍规模为36班,建筑面积由原来的14800M2增至38000M2,容积率达到2.7。高密度城区的环境关系、高浓度校园的儿童活动空间,以及密集建成区中的环境品质等问题成为设计思考的重点:尊重建成环境,关注成熟社区邻里关系、社区共享和场所记忆;回归真实的“人”,关注核心使用者“小学生”,通过空间设计思考教育模式与儿童健康成长;面对噪音、风热等物理环境挑战,从建筑形态到立面细节设计寻求解决策略等。由此提出的“叠园”概念,旨在创造亲近自然的高密度校园,探索在高密度城市建成区内的高容量学校新模式。建于上世纪90年代初的原有校园,拥有由中间连廊隔开的两个绿意盎然的庭院,近三十年的场所记忆值得尊重。新建校园延续旧校园的空间特征,宽大的活动联廊划分出东西两个开合有致的庭院。基于城市设计立场,校园建筑在东西两侧贴线街道,南侧紧贴街道以南住宅的噪声退让线,完善城市空间形态与关系。
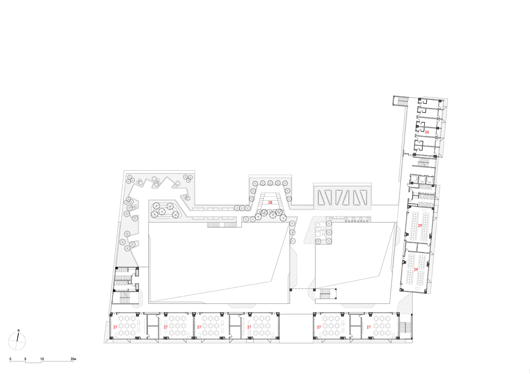
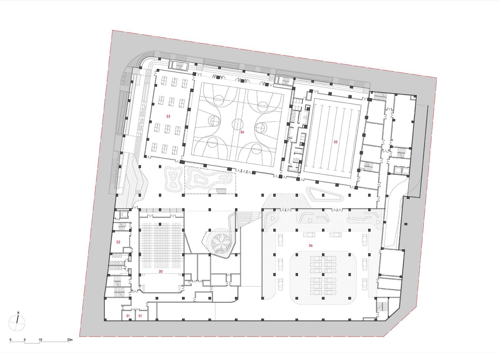
设计之初设想为无围墙校园,可在课后和休息日向社区适度开放;面向社区幼儿园空间放大,设置可分享的游戏设施;供社区共享的文体功能布置在首层和负一层,包括体育馆、游泳馆、音乐舞蹈教室、图书馆以及运动场等;南侧主入口采用架空处理形成宽大的校园前区,容纳家长接送。在最终实施时,基于主管部门安全管理要求还是设置了校园围墙,但布局意图得以保留。和绿化相结合的通透围栏,将校园活动渗透到街道,为未来的开放校园预留了可能性。小学生在校自由时间有限,课间十分钟的总和仅40-50分钟。课间活动是儿童社会交往、环境学习、运动放松的重要途径。如何将“自由时间”转化为“自由空间”,应该成为校园空间设计的重要议题。同层活动空间的设计将影响课间活动的质量和内容。此外,小学涵盖了儿童成长变化显著的7至12岁阶段,不同年龄的活动特点差异性也需加以回应。
“曡园”的设计概念希望营造竖向叠加接触自然的平层活动空间,服务学生课间行为。二层有较大的架空层、连接运动场地,为低年级学生提供足够的戏耍空间;三层结合图书馆屋面、宽大连廊组织活动场地;四层在兴趣教室之间形成多个活动庭园,适应高年级活动及兴趣学习的多样化选择;南翼六层专业教室平层对应北翼的屋顶农场,有植物园地、户外教室、立体花架廊及农园小屋等丰富的课外学习场地。水平及竖向交通组织围绕两个庭院通过联廊形成平层环流式活动空间系统。各层廊道、平台及小庭院的“虚”,与功能体量的“实”形成对话,构成了尺度适宜、互动交融的庭院空间。高密度的城市环境及周边繁忙的城市干道,导致校园东侧及南侧环境噪音较大,周边环境风热条件欠佳。建筑的气候舒适性设计以及降噪措施是建筑布局和形态设计的主要着力点。
利用南翼与东翼交汇处为整个建筑群留出进风口;南侧主入口的架空层、长向南立面上对应各层活动平台打开的通风豁口,成为了立面上空间表达的“透明性”焦点。南翼和东翼课室直接面对周边道路,空调制冷工况下通过关闭外窗达到隔噪要求。过渡季开窗的情况下,降噪通风构件可实现自然通风与降噪相结合,减少空调制冷时长及能耗,提升课室健康环境品质。立面上设计了可以反射下部道路噪声的斜向悬挑板,也作为立体绿化和放置空调外机的部件。水平板与垂直降噪构件也成为南方建筑遮阳挡雨构件,并形成富于技术理性的立面形式。
深圳市福田区新洲小学外部实景图
深圳市福田区新洲小学外部实景图
深圳市福田区新洲小学外部实景图
深圳市福田区新洲小学外部实景图
深圳市福田区新洲小学外部实景图
深圳市福田区新洲小学外部实景图
深圳市福田区新洲小学外部实景图
深圳市福田区新洲小学外部实景图
深圳市福田区新洲小学外部实景图
深圳市福田区新洲小学外部实景图
深圳市福田区新洲小学外部实景图
深圳市福田区新洲小学外部实景图
深圳市福田区新洲小学外部实景图
深圳市福田区新洲小学外部实景图
深圳市福田区新洲小学外部实景图
深圳市福田区新洲小学外部实景图
深圳市福田区新洲小学外部实景图
深圳市福田区新洲小学外部实景图
深圳市福田区新洲小学外部实景图
深圳市福田区新洲小学外部实景图
深圳市福田区新洲小学外部实景图
深圳市福田区新洲小学外部实景图
深圳市福田区新洲小学外部实景图
深圳市福田区新洲小学外部实景图
深圳市福田区新洲小学外部实景图
深圳市福田区新洲小学外部实景图
深圳市福田区新洲小学平面图
深圳市福田区新洲小学平面图
深圳市福田区新洲小学平面图
深圳市福田区新洲小学平面图
深圳市福田区新洲小学平面图
深圳市福田区新洲小学破平面图
深圳市福田区新洲小学剖面图
深圳市福田区新洲小学剖面图
深圳市福田区新洲小学剖面图
客服
消息
收藏
下载
最近






































