查看完整案例

收藏

下载
项目名称:深圳中学(泥岗校区)
位置:广东 深圳
设计公司:哈尔滨工业大学建筑设计研究院
摄影师: Shuxiang Wei
深圳中学始创于1947年,迄今已有超过70年的历史。70年多年来,风雨沧桑,迭代精进,早已磨砺成深圳特区的一面旗帜。为了突出深圳中学的地位和特色,设计意在营造典雅的学院氛围、构建有序的礼仪空间。项目建设地点位于深圳市罗湖区泥岗西路1068号,原深圳信息职业技术学院校址。用地内的地形高差、场地内的现状河道、穿越校园的地铁线路以及保留的现状建筑,皆为设计带来不小的限制和考验。项目用地面积约10万㎡,总建筑面积约17万㎡。其中新建总建筑面积16.56万㎡,保留建筑面积0.45万㎡。建设内容包含学院教学楼、STEAM活动中心、宿舍及食堂、文体中心、游泳池、风雨廊、室外体育设施。是一所包含75班,可容纳学生3750人的的高级中学。泥岗校区在有限的场地上,无限放大自然环境,密切关注人与自然的接触,让师生在大自然中感悟知识与真实。设计努力将建筑功能托举至二层以上,首层形成连续不间断的灰空间,建筑与自然在此消失了界面、水乳交融。利用屋面的连续空间,形成三层的屋顶庭院,每组学院都被绿意盎然围绕之中。地面与地上两组庭院通过开放的阶梯连为一体,整个学校变成一个巨大的多维度、多层次的立体花园。设计以具有中国古朴的自然观、仪式感的建筑空间来表达中华文化博大精深的天人合一,空间礼序;以抽象的建筑符号和特征表达对镬耳墙、骑楼、天井等地域文化的传承;以厚重沉稳的红砖、石材来表达百年校园的文化底蕴;以深圳中学独有符号印记(凤凰木)来延续学府的精神传统。
深圳中学(泥岗校区)外部实景图
深圳中学(泥岗校区)外部实景图
深圳中学(泥岗校区)外部实景图
深圳中学(泥岗校区)外部实景图
深圳中学(泥岗校区)外部实景图
深圳中学(泥岗校区)外部实景图
深圳中学(泥岗校区)外部实景图
深圳中学(泥岗校区)外部实景图
深圳中学(泥岗校区)外部实景图
深圳中学(泥岗校区)外部实景图
深圳中学(泥岗校区)外部实景图
深圳中学(泥岗校区)外部实景图
深圳中学(泥岗校区)外部实景图
深圳中学(泥岗校区)内部实景图
深圳中学(泥岗校区)内部实景图
深圳中学(泥岗校区)内部实景图
深圳中学(泥岗校区)内部实景图
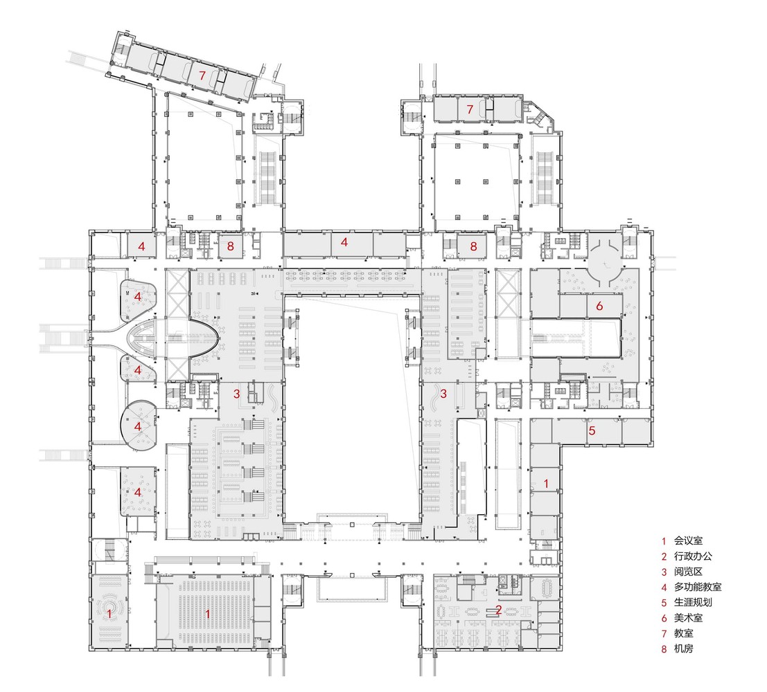
深圳中学(泥岗校区)平面图
深圳中学(泥岗校区)平面图
深圳中学(泥岗校区)平面图
深圳中学(泥岗校区)平面图
深圳中学(泥岗校区)平面图
深圳中学(泥岗校区)立面图
深圳中学(泥岗校区)立面图
客服
消息
收藏
下载
最近



























