查看完整案例

收藏

下载
项目名称:加拿大滑铁卢大学5号楼和7号楼工程
位置:加拿大
设计公司:Perkins&Will
摄影师:丽莎洛根摄影
当我们于2007年开始与滑铁卢顶级工程学院合作时,该学院正努力在其现有的过时设施中容纳前所未有的增长和创新的新计划。校园环形道路范围内缺少可用的秋千空间和可建造的场地,使这一问题更加复杂。我们采用总体规划的方法,与客户合作开发了一个新的工程区域,将未充分利用的外围站点转变为一个充满活力的学术社区,并为该大学提供了引人注目的新入口。工程5号楼和7号楼分十个阶段实施,为跨学科的工程研究和研究提供了两个高度灵活的容器,其侧面是一个戏剧性的中央中庭,为庆祝滑铁卢的独特文化提供了空间。E5和7凭借其大胆的几何形状和独特的玻璃幕墙,确立了该领先机构的建筑特色。E5和7的体系结构可作为启发和招募的工具,在这里学校的故事不断发展。该综合体是围绕行人运动和访客,教师和学生的连通性原则设计的。首先是将E5和7连接到主园区的戏剧性曲线桥,从而使项目和人员可以在区域轻轨上行驶。通过透明,多层俯瞰和动态功能楼梯,触发了运动和好奇心,并不断展示教师和学生的工作。工程5标志着滑铁卢工程计划转型的开始。该建筑是一个高度灵活的“日光工厂”,教学空间和设计工作室俯瞰着Sedra设计中心的学生工作室。在这个高架空间中,本科生在跨学科团队中从事多年项目。作为校园环路上工程学的新面孔,E5的设计特别突出了学生设计中心,使学生发挥创造力并动手学习滑铁卢的工程学新形象。
Engineering 7是将学生与更广泛的商业社区联系起来的几个空间的所在地。工程IDEA诊所根据实际问题将学生和教师联系起来,进行早期体验和动手学习。RoboHub是最先进的1000立方米机器人测试设备,具有先进的室内定位系统,可移动的环境功能以及全球独一无二的类人,空中,地面和磁悬浮机器人。康拉德工程企业家中心提供工程和商业领域的联合计划,作为跨学科研究的平台,融合了企业家的倡议。E7和E5的外墙清楚地表达了各种空间。公共场所设有高透明的低铁玻璃,突出了学生的活动。用于实验室和办公室的模块化,适应性强的空间覆盖在多孔玻璃表皮中,模拟了建筑物消声室的金字塔形体积。烧结的立面充当虚拟“遮罩”,可在各种空间条件下创建均匀的外观。立面对光的作用非常敏感,从白天的雕刻丰碑巧妙地转变为黄昏时的非物质面纱。工程5号和工程7号之间的中庭为举办活动和庆祝滑铁卢的工程文化创造了一个重要的空间。中庭充当新兴校园区域的公共领域连接器,向四个主要方向提供方向。作为校园内最大的封闭空间之一,中庭为本科生的顶峰项目提供了戏剧性的背景,是大学功能的标志性空间,并且是滑铁卢全球网络可以融合,启动和发展的建筑论坛庆祝。
加拿大滑铁卢大学5号楼和7号楼工程外部实景图
加拿大滑铁卢大学5号楼和7号楼工程外部实景图
加拿大滑铁卢大学5号楼和7号楼工程外部实景图
加拿大滑铁卢大学5号楼和7号楼工程外部实景图
加拿大滑铁卢大学5号楼和7号楼工程外部实景图
加拿大滑铁卢大学5号楼和7号楼工程内部实景图
加拿大滑铁卢大学5号楼和7号楼工程内部实景图
加拿大滑铁卢大学5号楼和7号楼工程内部实景图
加拿大滑铁卢大学5号楼和7号楼工程内部实景图
加拿大滑铁卢大学5号楼和7号楼工程内部实景图
加拿大滑铁卢大学5号楼和7号楼工程内部实景图
加拿大滑铁卢大学5号楼和7号楼工程内部实景图
加拿大滑铁卢大学5号楼和7号楼工程内部实景图
加拿大滑铁卢大学5号楼和7号楼工程剖面图
加拿大滑铁卢大学5号楼和7号楼工程剖面图
加拿大滑铁卢大学5号楼和7号楼工程立面图
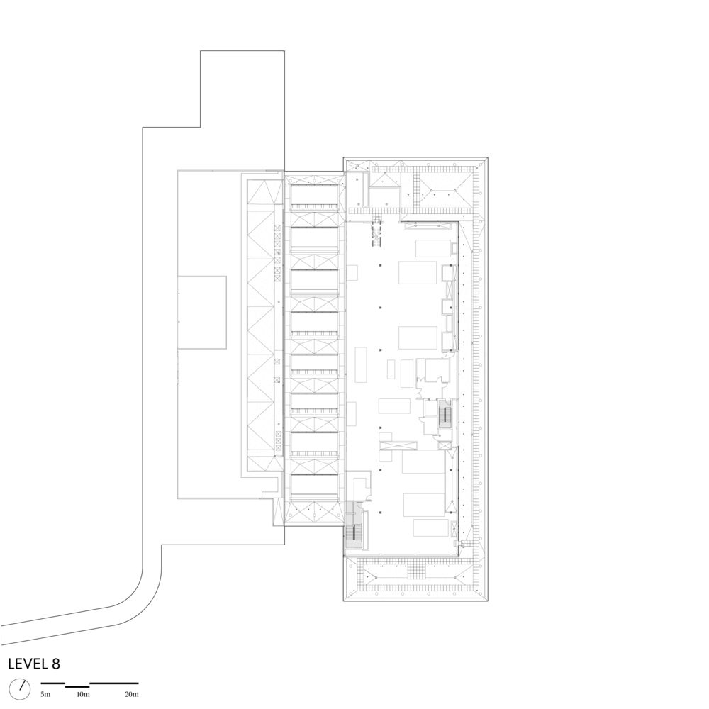
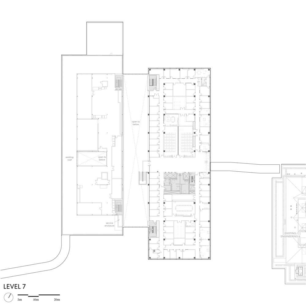
加拿大滑铁卢大学5号楼和7号楼工程平面图
加拿大滑铁卢大学5号楼和7号楼工程平面图
加拿大滑铁卢大学5号楼和7号楼工程平面图
加拿大滑铁卢大学5号楼和7号楼工程平面图
加拿大滑铁卢大学5号楼和7号楼工程平面图
加拿大滑铁卢大学5号楼和7号楼工程平面图
加拿大滑铁卢大学5号楼和7号楼工程平面图
加拿大滑铁卢大学5号楼和7号楼工程平面图
客服
消息
收藏
下载
最近



























