查看完整案例

收藏

下载
项目名称:法国LycéeNelson Mandela学校
位置:法国
设计公司:LeclercqAssociés
摄影师:Baloon-F Marchand,Takuji Shimmura,Cyrille Weiner
在卢瓦尔河之间的南特岛上,高跷上的高中学校让下面的地面呼吸,被水淹没和污染。这种简单的解决方案使重新获得更多的运动空间成为可能。南特大厅的模型因其易于聚在一起而赢得了我们的青睐,所有的程序都具有标志性和夜光性:教学,运动和寄宿学校。在内部街道的玻璃屋顶下,聚集了四栋建筑物,它们共享冷墙,并为高中生提供了这个新地方的景致:从冬季花园到CDI的露台,再到食堂的小酒馆露台都鲜活起来并随着卢瓦尔河较远地区的高低视角而扩展。甚至体育馆也可以从中殿看到其大型攀岩墙,从而参与了该动画。每个程序都针对这条街道和城市。结构的标准化,是大厅的象征,可以实现快速的建筑工地,并响应大量的时间限制。混合木水泥地面遇到地震的限制:木材的轻便和柔韧性,混凝土的质量和传递努力的能力。在其原始设计中,这种多孔木板地板的底面是吸声材料,也是模板底部。木质外墙已经在当地木材工业中得到了体现。
使用暴风雨的木材(该地区有大量的经处理的海洋松)符合所需的数量。木材的处理和深色有助于以Salorges的形象吸收木材的老化。 对环境的吸引力:BEPOS遵循的规范方法使我们在考虑紧凑型光伏建筑之前就考虑了紧凑且耗费最少的建筑。南特的海洋气候导致我们开发出一种中等惯性的建筑物,能够利用恒定温度及其适度的振幅。木材的使用已经确立了其自身的自然绝缘特性,包括部分(自然的)轻度(较深的基础)和声学,视觉和嗅觉舒适度(柔和的噪音,柔和的光线,温暖的和松的气味)的平均热惯性(偶发的职业)。反映了建筑物的几何形状和方向,有利于自然通风,特别是在未加热的内部街道的温带容积中。学校的边缘由山谷和池塘而不是栅栏组成。
法国LycéeNelson Mandela学校外部实景图
法国LycéeNelson Mandela学校外部实景图
法国LycéeNelson Mandela学校外部实景图
法国LycéeNelson Mandela学校外部实景图
法国LycéeNelson Mandela学校内部实景图
法国LycéeNelson Mandela学校内部实景图
法国LycéeNelson Mandela学校内部实景图
法国LycéeNelson Mandela学校内部实景图
法国LycéeNelson Mandela学校内部实景图
法国LycéeNelson Mandela学校内部实景图
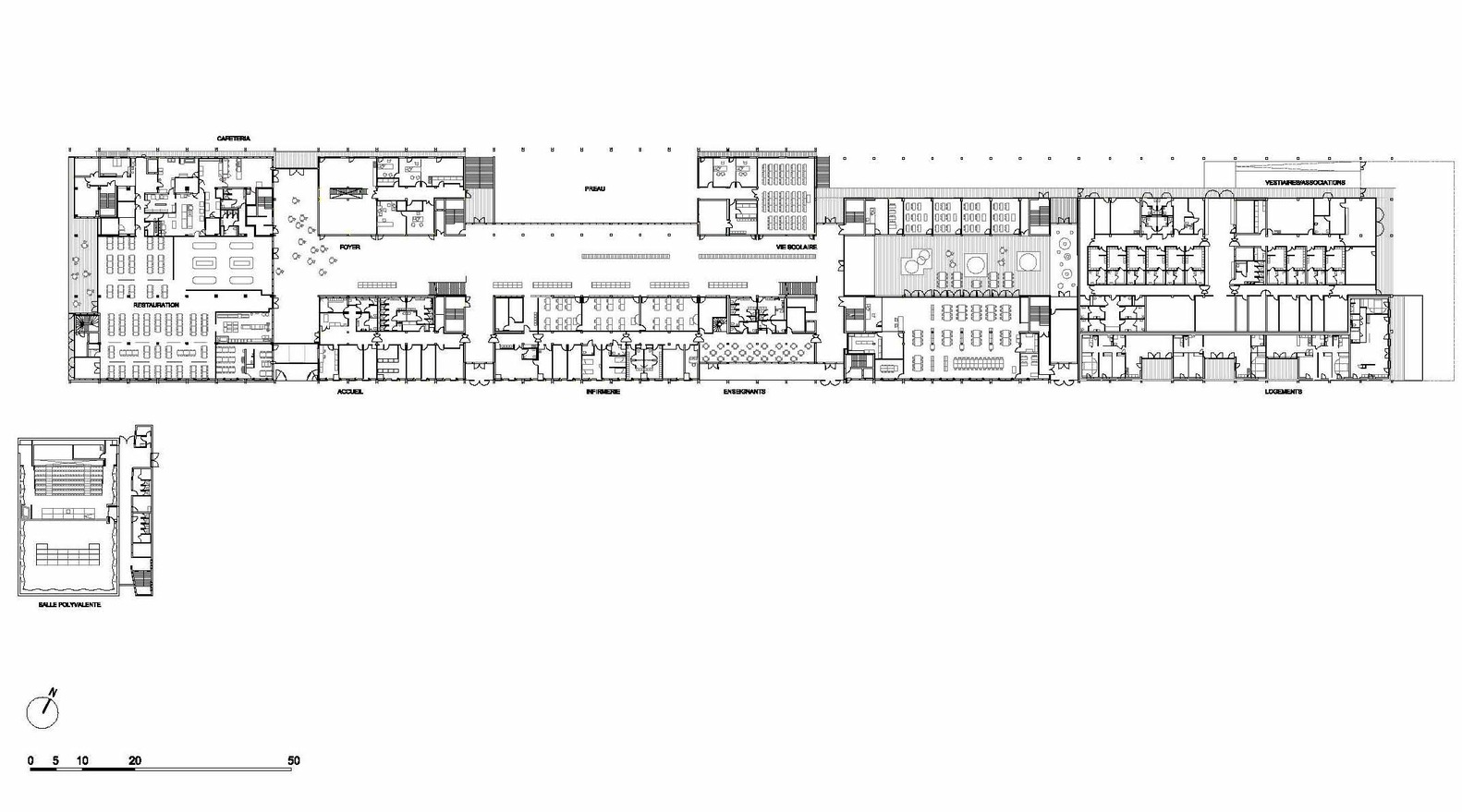
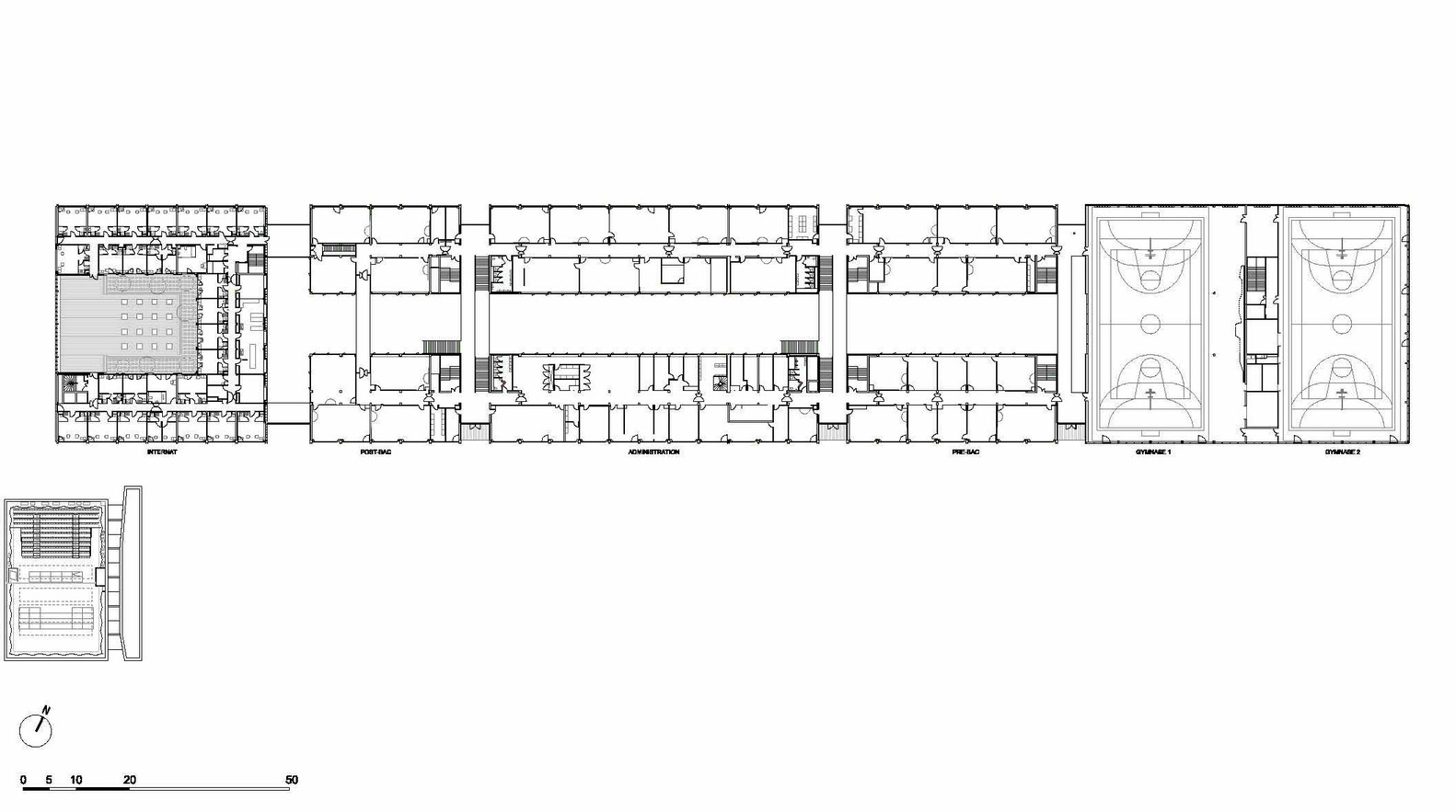
法国LycéeNelson Mandela学校平面图
法国LycéeNelson Mandela学校平面图
法国LycéeNelson Mandela学校平面图
客服
消息
收藏
下载
最近
















