查看完整案例

收藏

下载
项目名称:法国课后托管与学校餐厅
位置:法国
设计公司:LDA Architects
摄影师:菲利普·鲁特
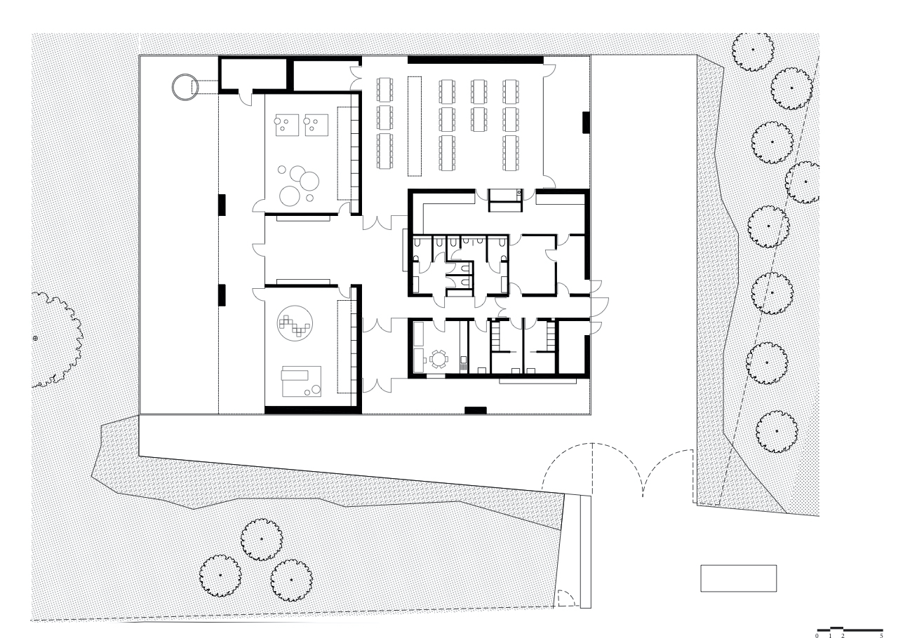
城市的圣马塞尔,靠近索恩河畔沙隆,组织了一个课后照顾的建设,在大型和宁静的景观区一所学校餐厅的竞争。社区希望为小学和幼儿园提供两个讲习班和一个学校餐厅。该地点被部分淹没,提供了由野草和林木区组成的广阔绿色景观,在令人愉悦而舒缓的自然环境中开辟了美丽的景色。因此,在这样的站点中适当的体系结构响应是什么?建筑和景观在一个项目中链接在一起,该项目允许外部空间与内部房间连接。课后护理工作坊面向北部和西部的大片荒野,而学校餐厅则向东方开放,以允许其进入公共休闲区。内部设计旨在为建筑物和社区提供灵活性。这种空间可逆性和模块化的设置最初是为课后护理活动和食堂/餐厅设计的,它还可以为其他活动,其他观众和其他时间提供其他可能的用途。因此,在这种情况下,外墙尽可能简单。至于材料的选择,则可以实现更大的灵活性,并可以轻松适应未来的需求。该结构使用绝缘的混凝土和混凝土双板墙,以确保整体图像清晰可见,甚至在家具(工作台,洗手池等)的所有面上都可见。落叶松木材用于所有木制品,通过大窗户在建筑物的外部和内部之间进行广泛的视觉交流。全局项目是为了使用而造就的体系结构宣言。出于教育目的,在大厅中放置了一张带有鬼影反射的彩色镜子。它是荷兰设计师Sabine Marcelis的艺术品。
法国课后托管与学校餐厅外部实景图
法国课后托管与学校餐厅外部实景图
法国课后托管与学校餐厅外部实景图
法国课后托管与学校餐厅外部实景图
法国课后托管与学校餐厅外部实景图
法国课后托管与学校餐厅外部实景图
法国课后托管与学校餐厅外部实景图
法国课后托管与学校餐厅外部实景图
法国课后托管与学校餐厅外部实景图
法国课后托管与学校餐厅内部实景图
法国课后托管与学校餐厅内部实景图
法国课后托管与学校餐厅内部实景图
法国课后托管与学校餐厅内部实景图
法国课后托管与学校餐厅内部实景图
法国课后托管与学校餐厅平面图
法国课后托管与学校餐厅平面图
法国课后托管与学校餐厅剖面图
法国课后托管与学校餐厅立面图
法国课后托管与学校餐厅立面图
客服
消息
收藏
下载
最近






















