查看完整案例

收藏

下载
项目名称:美国科罗拉多大学塔特图书馆扩建
位置:美国
设计公司:Pfeiffer
摄影师:史蒂夫·勒鲁姆
翻新和扩建遵循了2008科罗拉多学院远程发展计划(LRDP)和新校园开发的第一阶段中制定的规划原则和建议。该项目解决了对开放空间的关注,内部空间与外部空间之间的过渡,支持各种活动的空间灵活性以及鼓励社会和智力互动的规划空间的整合。该项目的范围包括:向西新建大型建筑,向东新建小型建筑,以及在现有建筑物顶部增加新的四楼,以及进行翻新以使大楼达到对现有设施的完全翻新。设计的关键在于要在2020年之前实现学院的碳中和目标,使翻新过的设施成为美国目前最大的专为净零能源而设计的图书馆(94,000平方英尺),我们的工作始于程序确认和概念设计,这有助于建立增强功能的愿景,该功能最初由Walter Netsch于1961年设计,并于1980年代进行了扩展。设计反映了图书馆不断变化的性质和学院的价值观,提供了正式和非正式的空间来将社区凝聚在一起。翻修和扩建完成后,图特南(1980年扩建,向南部扩展至帕尔默四方)被拆除。
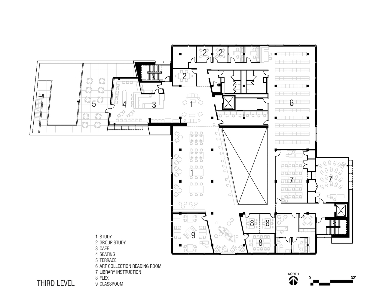
这有助于使四边形恢复其原始计划,从而增强其重要性和完整性。这项具有革命性意义的项目完全改变了建筑物与校园的关系,增加了新的入口,有遮盖的庭院和三个新的外部空间。仔细的聚集和精心布置的窗户为派克峰提供了广阔的视野,从而扭转了该建筑以前的内向焦点。外观以视觉方式参照了地理环境,外部装饰层用红色面板(指本地开采的红色砂岩)定义了添加物并将其连接到现有建筑物。L图书馆的服务和资源增加了学术课程和教学空间,包括实验教室,并在下午和晚上扩展为开放式和小组学习空间。创建了翻新和增加空间,座位数量增加一倍以及支持数字奖学金的新空间和服务,包括GIS实验室,技术沙盒,数据可视化套件和大型室内/室外活动空间。
除了图书馆研究援助之外,Colket学术卓越中心还包括定量推理中心,写作中心,第一年经验计划以及ESL和论文写作专家。该建筑物还设有一个咖啡馆和许多教学空间,可“弯曲”成开放式座位。大量的室内/室外空间,使大学图书馆的体验可超越建筑物的墙壁 ,为了支持该学院独特的总体规划时间表,在该时间表中,对一个主题进行了密集的研究,持续了三个半星期,必须立即获取材料,大部分一般收藏品仍保留在建筑物中,并放置在新的,可公开访问的紧凑型书架中,而特殊收藏品则存放在专门设计的金库中。增加的空间,交通,光线,各种座椅配置和技术创新使Tutt焕然一新,并使之焕然一新,使Tutt成为校园和科罗拉多学院社区的知识中心。
美国科罗拉多大学塔特图书馆扩建外部实景图
美国科罗拉多大学塔特图书馆扩建外部实景图
美国科罗拉多大学塔特图书馆扩建外部实景图
美国科罗拉多大学塔特图书馆扩建外部实景图
美国科罗拉多大学塔特图书馆扩建外部实景图
美国科罗拉多大学塔特图书馆扩建外部实景图
美国科罗拉多大学塔特图书馆扩建外部实景图
美国科罗拉多大学塔特图书馆扩建内部实景图
美国科罗拉多大学塔特图书馆扩建内部实景图
美国科罗拉多大学塔特图书馆扩建内部实景图
美国科罗拉多大学塔特图书馆扩建内部实景图
美国科罗拉多大学塔特图书馆扩建内部实景图
美国科罗拉多大学塔特图书馆扩建平面图
美国科罗拉多大学塔特图书馆扩建平面图
美国科罗拉多大学塔特图书馆扩建平面图
美国科罗拉多大学塔特图书馆扩建平面图
美国科罗拉多大学塔特图书馆扩建平面图
美国科罗拉多大学塔特图书馆扩建平面图
美国科罗拉多大学塔特图书馆扩建剖面图
美国科罗拉多大学塔特图书馆扩建剖面图
客服
消息
收藏
下载
最近























