查看完整案例

收藏

下载

翻译
Architects:Atelier LAVIT
Area:19m²
Year:2022
Photographs:Atelier LAVIT
Lead Architects:Marco Lavit
Project Design:Marco Lavit, Isabelle Berthet-Bondet
Program / Use / Building Function:cabin / pavilion
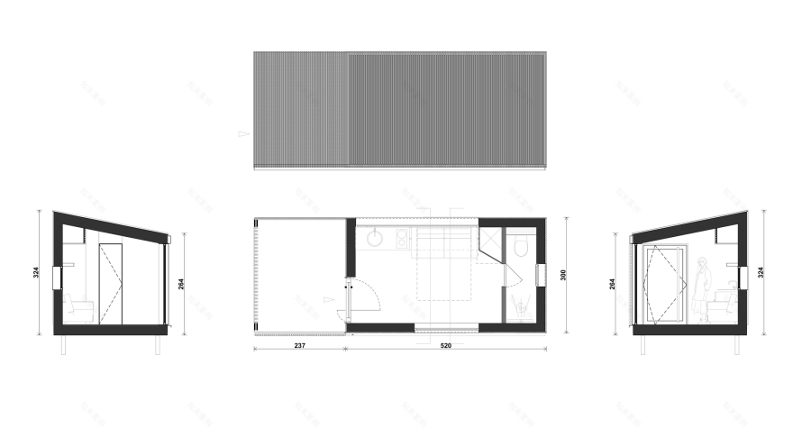
Cabin Area:12 m2
Pergola Area:7 m2
General Contractor :Kallistyle
City:Sari-Solenzara
Country:France
Text description provided by the architects. The project stands in one of the most spectacular landscapes of the eastern plain of Corsica, at the limit between the Mediterranean sea, behind it, and the wild mountains of the Corsican hinterland in front.
O'Casella is a prefab wood cabin modular system that comes from two distinct elements; the living module and the pergola. The external space, as per tradition in this geographical area, requires large areas of shade, to shelter from the heat.
The first volume allows to accommodate technical spaces such as services and the kitchen, and a living and sleeping area with a framed view on the surrounding nature.
The second volume, the pergola, is a ventilated and shaded element that allows you to create an outdoor space for contemplation, reading and resting. An outdoor shower allows full immersion in the surrounding nature.
The wood used for the external coverings and the structure is local larch (laricciu), excellent for its durability, as well as having a very interesting specific weight to maintain the lightness of the whole structure. Inside, the room has walls and a ceiling covered in mdf wood.
The distinctive sign of the facade is a steel beam hiding a rail system that marks the horizontality of the entire volume. The beam has a dual function; it acts as a gutter for rainwater and as a sliding system for the shutter panel of the facade.
This panel is conceived as a mashrabiya, traditionally used to catch wind and for passive cooling, to protect the pergola and cabin spaces from the sun and to darken the room at night.
In order to simplify the unforeseen in a remote site, the project was largely prefabricated in a wood workshop. The prefab cabin can be transported entirely assembled on a truck. Prefabrication reduced production costs and on-site costs during installation, impacting the landscape as little as possible.
Project gallery
客服
消息
收藏
下载
最近























