查看完整案例

收藏

下载
项目名称:澳大利亚科廷大学米德兰校区
位置:澳大利亚
建筑师:Lyons Architects、银托马斯·汉利(Thomas Hanley)
科廷大学的“中部校园”是一处3,000平方米的三层健康科学教育机构,用于多学科培训。该遗址坐落在文化丰富的“前”和“后”殖民历史悠久地区的海伦娜河和天鹅河交汇处,附近有传统的瓦德胡克国家重要的文物铁路作坊。Midland校园的设计理念源于当地丰富的土著和工业环境,并反映了较大的“母校” Bentley校园典型的巨大建筑形式和物质性。由于该建筑是大学“新”校园中的第一座建筑,因此它具有许多设计特征,反映出其作为较大大学校园中设施的“缩影”的作用。该建筑形式被认为是一个坚固的物体,被雕刻掉以揭示其中的公共空间和学生活动。阳台朝向该区域内的主要景观投射,为学生提供了外部学习空间,并为各级提供了新鲜空气和光线的理想通道,并鼓励学生进入公共领域。砖砌的“面纱”立面延伸到阳台和西北的主要入口区域。
它的“碰碰运气”砖图案使光线和空气可以过滤到外部学生空间,同时提供阴影。砖包的详细信息丰富-反映了相邻的Midland铁路车间的技艺-带有拱形,砖刚毛-soleil,有纹理的悬垂图案以及从基部到护墙的明确“梯度”,体现了自然的砖坯起潮过程。从编程上讲,地面空间是“公共”协作空间,具有更硬的装饰和更高的天花板。沿着北部边缘(与外部阶梯花园并排)上流的特色楼梯将访客带入带有大型模拟套件的相邻临床室以及可适配会议室的观察室,将其带入临床楼层。楼梯将关键的学习空间与外部阳台相连,并在整个过程中营造出学生体验空间的旅程。关键的内部空间在材料上保持“原始”状态,以将外部的混凝土,砖块和钢结构语言带入内部。中间浮动的天然木材“缺口”天花板提供了温暖和声学控制,而底层的青石地板和特色楼梯则延续了历史悠久的铁匠铺车道贯穿室内。在每个级别的学生学习空间中,都可以找到附近的卡拉曼达国家公园的柔和质感和温暖的花色,临床空间可以适应当地树木的凉爽味觉。
该项目通过与科廷原住民研究中心合作,通过将该建筑体现为具有增强的土著设计代表性的新的“社区”设施,力求将该场所提升为传统的聚会场所。“ Kya Wandju Wadnju”(欢迎词)在大型混凝土入口横梁上压花,同时在整个室内发现重要动植物组成的集成吊顶和墙面板,以及身体部位的集成Noongar语言提示,以增强对土著患者的同理心。景观提供了各种可供公众访问的“校园”空间,包括本地的纱线空间和传统的“康复”植物,用于传统医学与现代医学的知识共享。完整的公共艺术品(由Noongar艺术家Justin Martin和Milne&Stonehouse领导)通过收集蜂蜜讲述了土著创新的故事-视觉上以陶瓷印刷的大型(12m x 6m)绘画为代表,并在北方玻璃上内部体验立面,以及在悬臂式混凝土拱腹下悬挂的“蜂巢”。
澳大利亚科廷大学米德兰校区外部实景图
澳大利亚科廷大学米德兰校区外部实景图
澳大利亚科廷大学米德兰校区外部实景图
澳大利亚科廷大学米德兰校区外部实景图
澳大利亚科廷大学米德兰校区外部夜景实景图
澳大利亚科廷大学米德兰校区外部夜景实景图
澳大利亚科廷大学米德兰校区内部实景图
澳大利亚科廷大学米德兰校区内部实景图
澳大利亚科廷大学米德兰校区内部实景图
澳大利亚科廷大学米德兰校区内部实景图
澳大利亚科廷大学米德兰校区内部实景图
澳大利亚科廷大学米德兰校区内部实景图
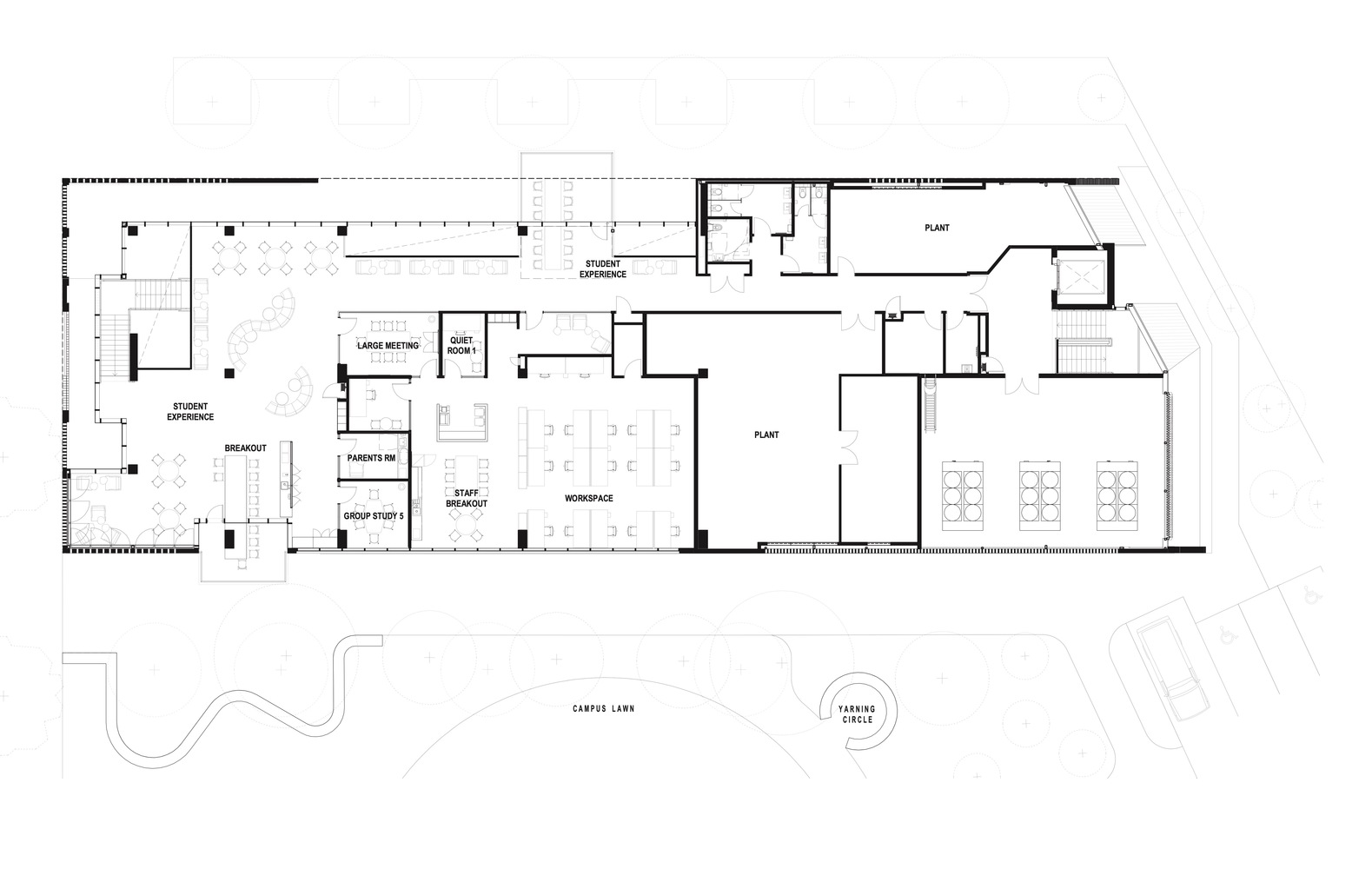
澳大利亚科廷大学米德兰校区平面图
澳大利亚科廷大学米德兰校区平面图
澳大利亚科廷大学米德兰校区平面图
澳大利亚科廷大学米德兰校区平面图
澳大利亚科廷大学米德兰校区立面图
澳大利亚科廷大学米德兰校区立面图
客服
消息
收藏
下载
最近





















