查看完整案例

收藏

下载
项目名称:法国LycéeLa Plaine中学
位置:法国
设计公司:Brenac&Gonzalez&Associés
这个新设施位于Montjoie ZAC(城市开发区),它的规模以及高中和学生宿舍的功能组合既代表城市挑战,也代表建筑挑战。对于该计划,建筑师从螺旋中汲取灵感,象征着运动,通过知识的进步以及通过文化和学习增强的社会地位。这个新机构的职能组织旨在向邻里和更广阔的城市开放。以桥梁的形式增加的体积打开了公共空间,前院,庭院,有盖操场和室内花园之间的新视野和视觉联系。立面被视为运动中的丝带缠结。从外部到内部潜移默化地传递。所用材料的变化增强了平面布置图的转换。在城镇一侧,纹理混凝土面板覆盖了隔断。在内部,灰色的木镶板用于捕获院子中的娱乐活动。
法国LycéeLa Plaine中学外部实景图
法国LycéeLa Plaine中学外部实景图
法国LycéeLa Plaine中学外部实景图
法国LycéeLa Plaine中学外部实景图
法国LycéeLa Plaine中学外部实景图
法国LycéeLa Plaine中学外部实景图
法国LycéeLa Plaine中学外部实景图
法国LycéeLa Plaine中学外部实景图
法国LycéeLa Plaine中学外部实景图
法国LycéeLa Plaine中学外部实景图
法国LycéeLa Plaine中学内部实景图
法国LycéeLa Plaine中学内部实景图
法国LycéeLa Plaine中学内部实景图
法国LycéeLa Plaine中学内部实景图
法国LycéeLa Plaine中学内部实景图
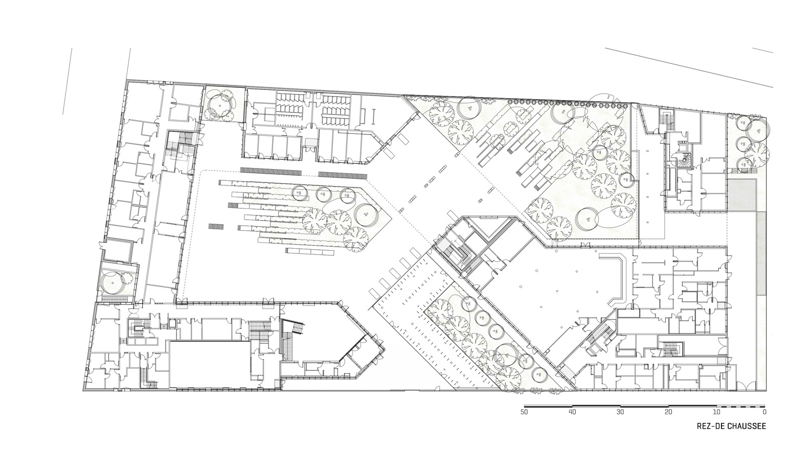
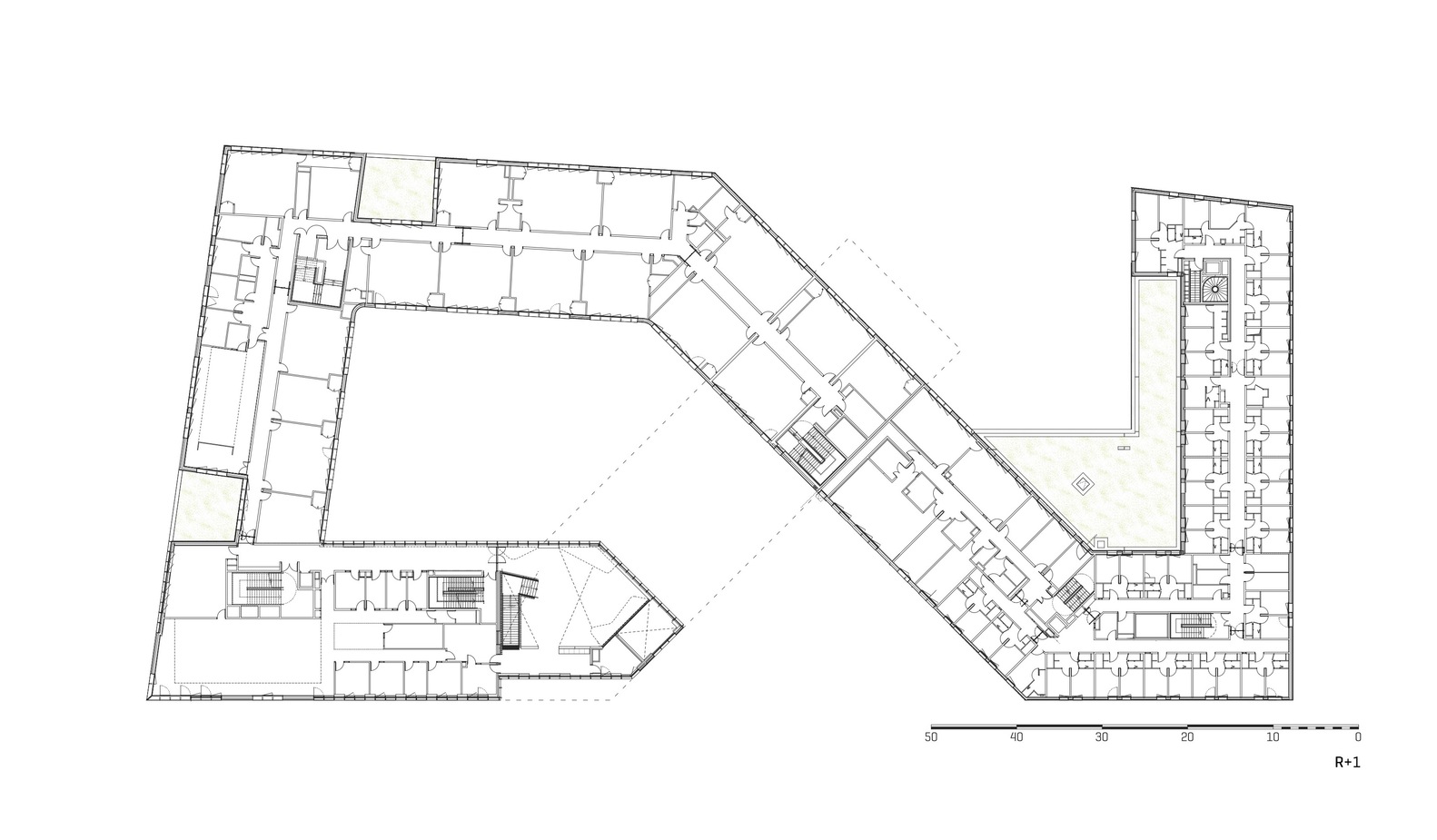
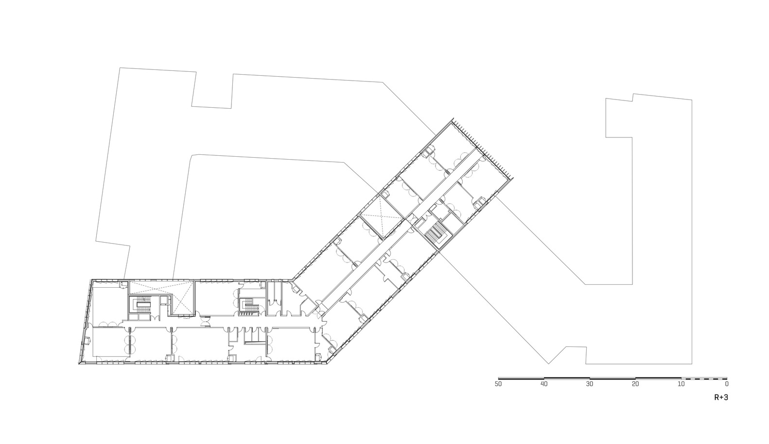
法国LycéeLa Plaine中学平面图
法国LycéeLa Plaine中学平面图
法国LycéeLa Plaine中学平面图
法国LycéeLa Plaine中学平面图
法国LycéeLa Plaine中学平面图
法国LycéeLa Plaine中学平面图
客服
消息
收藏
下载
最近
























