查看完整案例

收藏

下载
项目名称:奥地利药学院
位置:奥地利
设计公司:Berger + Parkkinen联合建筑师
萨尔茨堡的Paracelsus医科私立大学(PMU)成立于2004年。2017年,课程可能会扩展到包括药学研究。为了给新生提供空间,必须在2018年夏季学期及时提供一所新的研究所和实验室大楼。由于印刷厂搬迁到了大学附近的物业,这是一个理想的地点可用于新建筑物。于2016年1月委托Berger + Parkkinen Architects进行新建筑的规划。该物业延伸至深处,将Strubergasse与Wallnergasse连接起来,从而到达高架铁路路堤。该结构的体积代表了公用事业区域上建筑物的南北向体积的延续,并且在规模方面也适合上下文。因此,从Maxglaner-Hauptstraße的南部开始,经过Strubergasse到Wallnergasse,在三个开发区域中创建了一个连贯的建筑结构。这样,以新的D房为基石,巩固了新的城市主体,在Gaswerkgasse和Mülln之间建立了联系,在老城区和领地之间的铁路路堤之间建立了可识别的联系。建筑物的故意错开排列会导致不同的空间顺序和视野。创建了地点,小巷,庭院,活动地点和流连忘返。对这种上等形态的考虑旨在使整个区域具有统一的,个性化的城市特征。
实验室和研究所房间的概念将被设计为街道对面C研究所大楼C的延续,该建筑物于2013年完成,也是由Berger + Parkkinen计划的。因此,实验室和研究所房间类型的相似性并非偶然。与C房类似,整个实验室和通风技术的布置也计划在为此保留的阁楼地板上进行。一个特别的挑战是新建筑如何解释或适应C房和市政公用事业区的三座姐妹建筑,悬臂结构的起伏镜像拱腹的特色。答案不是采用形式而是采用概念。在公共事业领域,透明的基座建筑与封闭的上层建筑形成鲜明对比。景观和公共空间似乎渗透到房屋中。 在新的D房中延续了半公共基座层的想法,并采用了大型圆柱大厅的城市类型。圆形剧场占据了这个大厅的中央。它被玻璃墙包围,形成房屋的透明中心。巨大的拱门和柱子遍布整个地面,连接礼堂,研讨室,休息室和楼梯的各个区域。玻璃墙允许所有零件合并成一个开放式房间网络。
从类型上说,底层类似于一个三通道的“大教堂”,其中西行的柱子不立于立面之下,而是顺着旧的基本边界的倾斜线倾斜。因此,入口大厅呈圆锥形,带有一系列不同的拱门。还创建了前庭悬臂的圆锥形。这种小的倾斜打开了严格的支柱系统,从而与C楼的建筑形成了正式的联系。楼梯区域的双高拱门特别强调了这种动态,使拱顶从基座过渡到地板从外部可读。在石膏外墙的施工中遵循最高的生态原理,使用传统的抹灰技术,在矿棉保温层上使用多层厚石膏,具有高品质的水玻璃基涂料。手工制作产生的略微不规则的结构,再加上涂料的使用,使立面的体积和与该地区传统房屋立面的外观明显相似。 就像在C楼一样,两个主要楼梯也非常重要。特别地,大楼梯1被计划为三维通信空间。建筑物的清晰结构旨在实现高度的可持续性,因为只有静态必要的结构才能保持不变,而所有隔断墙和房间布局都经过灵活设计,以便能够为以后的使用变化提供空间。在实验室和建筑技术的规划中也遵循了这一原则。所有实验室均位于较高楼层。实验室根据功能性的大机翼深度确定建筑物的内部结构。演讲室和练习室以及科研人员办公室位于较高楼层。
奥地利药学院外部夜景实景图
奥地利药学院外部夜景实景图
奥地利药学院内部实景图
奥地利药学院内部实景图
奥地利药学院内部实景图
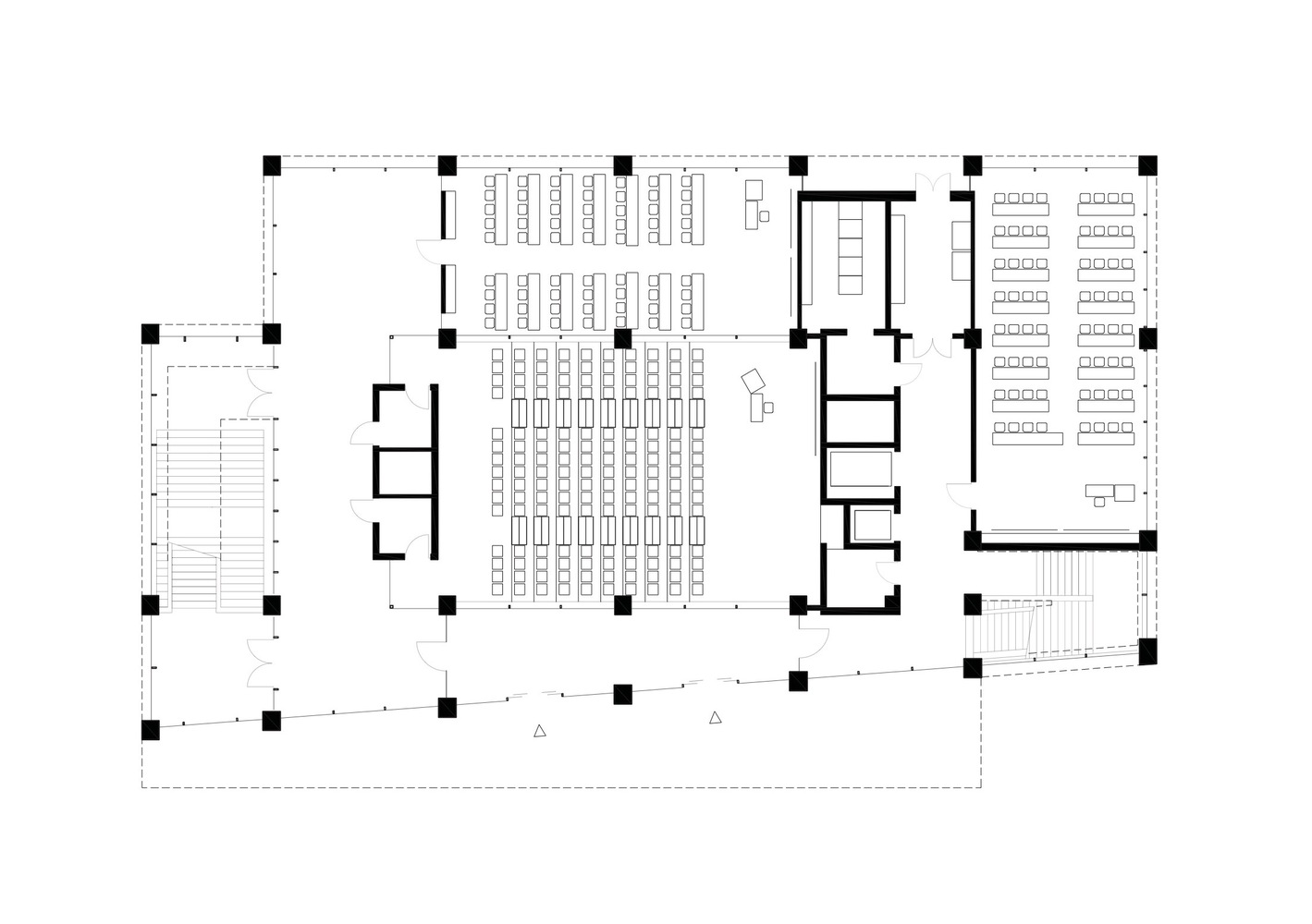
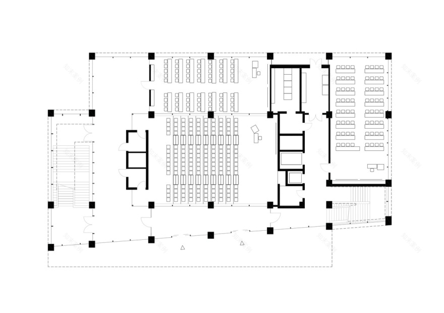
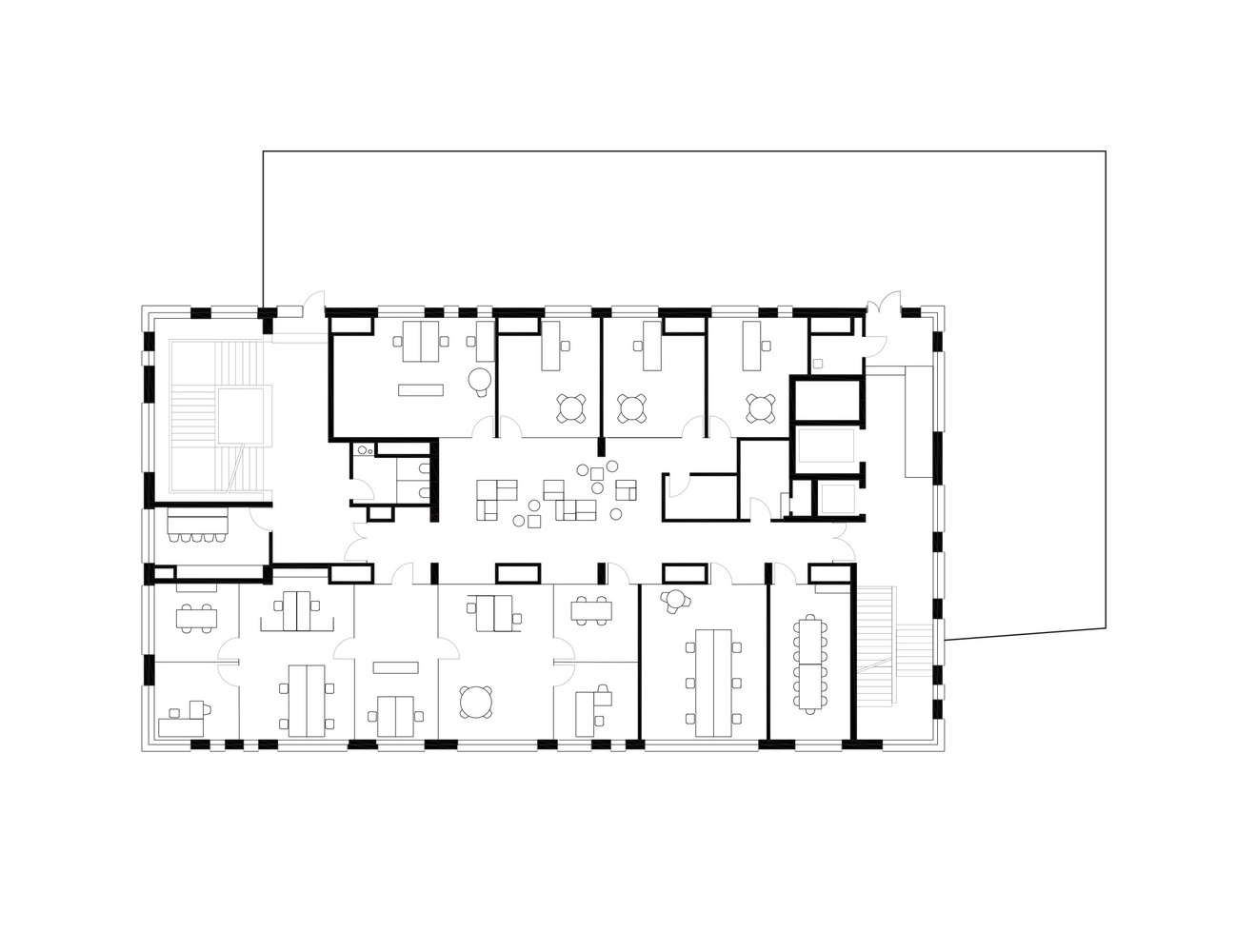
奥地利药学院平面图
奥地利药学院平面图
奥地利药学院平面图
奥地利药学院平面图
奥地利药学院剖面图
奥地利药学院剖面图
奥地利药学院剖面图
奥地利药学院剖面图
奥地利药学院剖面图
客服
消息
收藏
下载
最近

















