查看完整案例

收藏

下载
项目名称:上海复旦江湾校区新建综合体育馆
位置:上海
设计公司:同济大学建筑设计研究院
复旦江湾校区的综合体育馆是一座新建的体育馆,坐落在复旦新建江湾校区的优美湖畔边,校园整体风貌力求经典、优雅、传承百年,采用新古典主义建筑风格。现代大学校园的公共体育设施,承载了服务校园师生与周边居民的重要功能,要求的是多元、复合、包容与人性,创造可服务大众的休闲娱乐空间,在缓解师生工作学习压力的同时,也要体现一个负责任的大学对于提供公共服务的担当。同样,体育设施的对外开放,也决定了这座体育馆会成为该区域的关注焦点,将超越校园的认知范围,自然也就成为了学校对外展现自身魅力与文化的窗口。而我们的设计重点,也就定位在超越外在,发觉内在,在新古典的建筑外表下引入国际化的校园模式与超前的设计理念,既要满足学校提出的体育训练等功能需求,更要成为师生、市民能在此休闲放松、活动交流的城市客厅。本案规划设计首先从校园肌理控制入手,严格遵守校园秩序,同时应对体育建筑特色与内涵,打造独有的规划空间特色。设计尽可能保留原有用地上的青草绿荫,将主要运动体量浓缩到最小,提高内部使用效率。
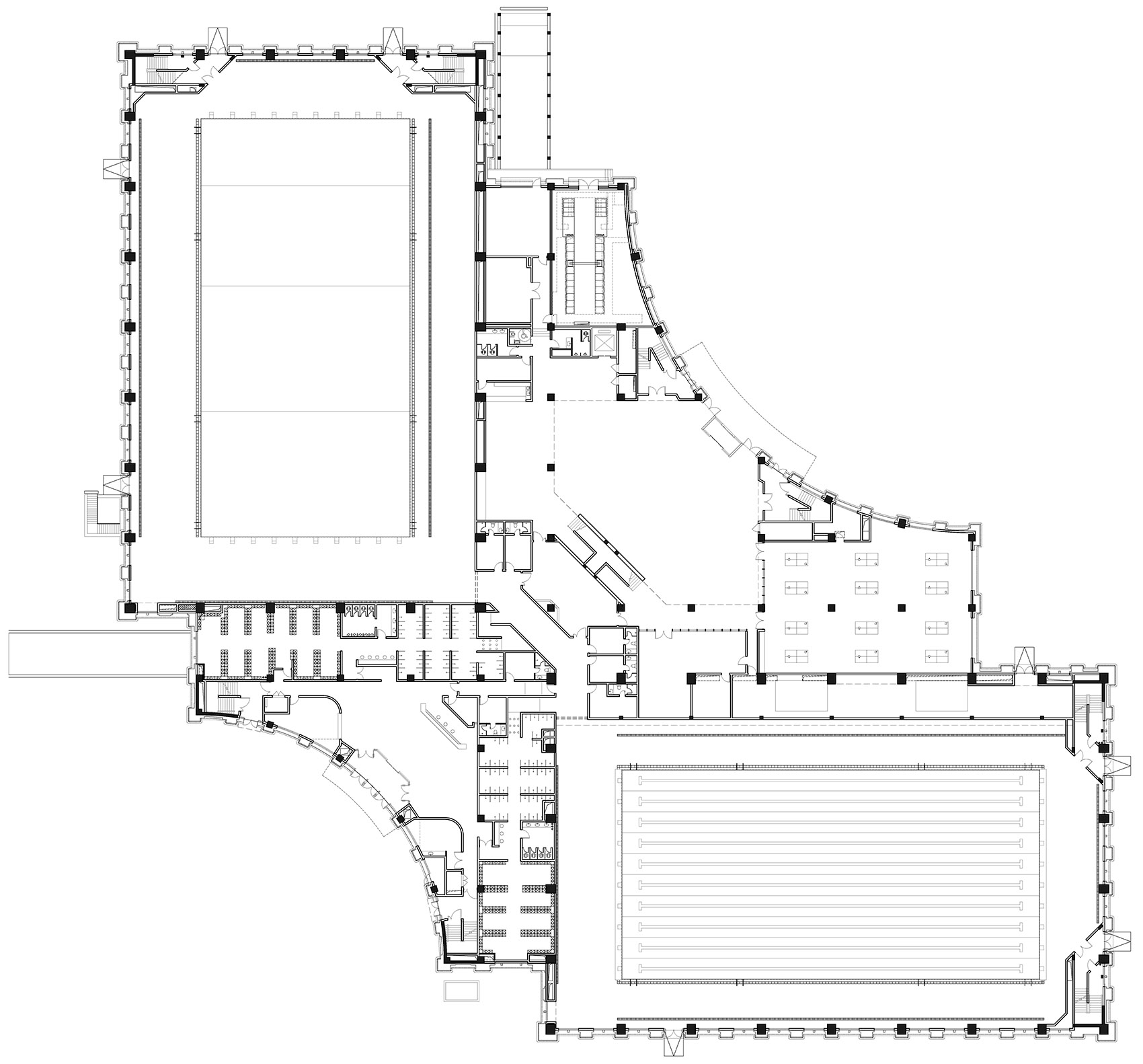
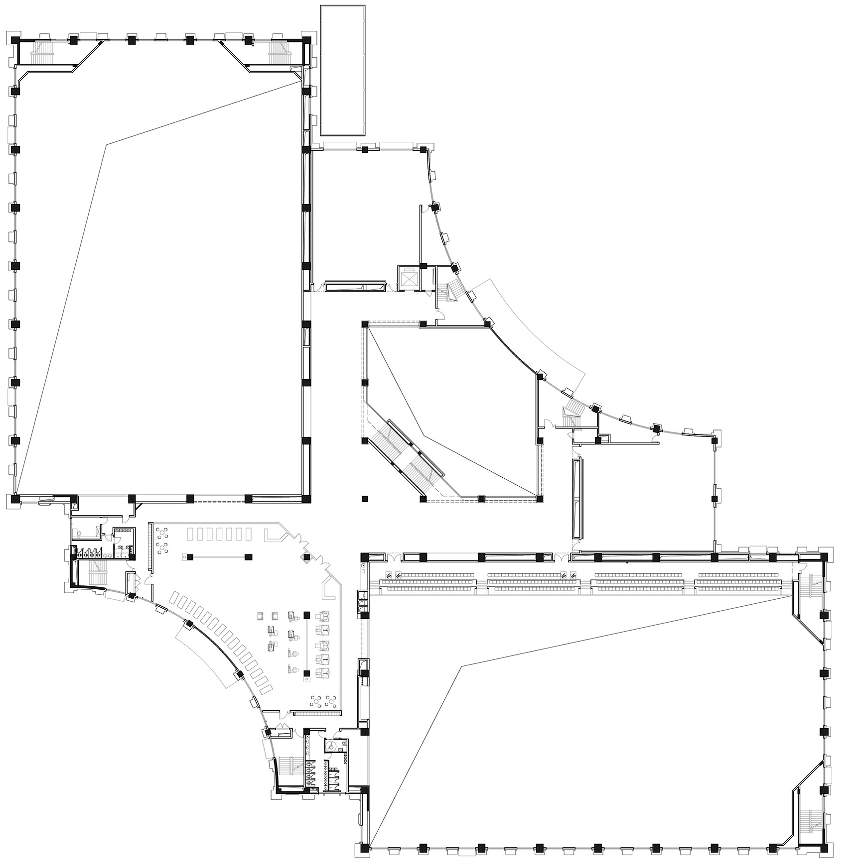
同时,释放临湖空间,控制建筑面宽,消减建筑对湖畔景观的阻隔。建筑主体采用硬朗外廓,一方便利于功能高效布局,一方便便于辨识;形成两个长方形体量。连接两个体量则运用了两条优美自然的弧线,与长方体相互咬合,与室外广场、道路相互呼应,一气呵成,形成给人以亲切感的两个体育场馆入口空间。本案在功能布局上秉持“运动结合休闲、空间多元复合” 的设计原则,高效合理地分配各类高低运动空间,叠加组合;同时穿插设置开放、共享、舒适的公共交流空间。设计将两个标准泳池分别布置于南、北两个长方形体量的一层,两层通高;而将陆上运动功能布置在两个泳池上层。弧线形空间内组织了乒乓、形体、健身房、体育办公、教室等,除体育馆主体功能外,另设置有土豆休息座椅、咖啡吧、能量贩卖小卖店、小米信息平台等。游泳馆可对外独立开放,同时,所有这些功能都通过共享中庭串接起来,而中庭也是整个体育馆内的标志性核心空间。室内设计力求打造出“城市客厅—活力容器”的氛围,致力于营造一个体育、休闲、交流甚至学习研讨、放松聚会于一体的校园最具活力凝结力的焦点。我们期望让人一进入建筑大厅,就能感受到扑面而来的时尚活力的气息,设计选用木纹铝方通与白色铝板两个经典配色为铺垫,木纹铝方通融入了细腻的图案设计,在六边形的共享中庭内打造出3面抽象的文化墙面,而吊顶、周边墙面以白色铝板、铝方通为主,结合灯具设计、水磨石地面的图案设计,通过有纵深感、有层次的图底关系,充分展现出一个体育文化氛围浓厚的公共空间。
环绕中庭空间,所有的自由开放的能量补充区、休闲咖吧区、开放自习区、休息储物区一一展开,通过吊顶的变化、灯具的点缀,实现区域的限定与功能特点的呈现,在枯燥的走道空间上创造丰富的活动出发点。在细节设计中也尤其注意,整个中庭环绕的栏板后都设置了桌面,配合座椅就可以形成自习区或休憩区,而且栏板上设有多组强、弱电插座,方便接电脑设施。游泳馆区域,从门厅设计到更衣室等,我们追求的是高于国内大部分公共游泳馆的标准,尊重人性设计,尊重个人隐私,尊重个性需求。而材料的运用也大胆明快、特点鲜明,我们采用了白色的纤维水泥板,通过其自然的肌理、色调,凸显门厅的柔和亲切感,结合木纹曲线墙面、背景墙面,使整体色调更显温暖温馨。更衣室的入口采用了绿色系与红色系马赛克进行对比,结合标识图案设计,导向清晰明确,分流男、女来客。游泳馆内则期望与门厅的暖色形成一定对比,采用白色、黑色为主色系,结合蓝色的水面,自然形成一种冷色调的美感。
篮球馆与羽毛球馆的色调则定位在温暖、活泼、自然、运动,墙面采用木色吸音铝板,顶面采用了彩色渐变的三角形吸音体,使人见之就内心开怀,成为“一运动一解愁”的抒怀场所。体育馆内各层设置有饮水点、更衣柜存放处、更衣室、休息桌椅区或矮凳区、能量贩卖机位等,处处融入人性化地关怀与个性化的需求设计,相信这里也将成为人们最爱去的运动场馆之一。体育馆的每个场馆甚至中庭空间,都考虑了声学设计,进行噪声、隔声与混响时间的控制,因此大量采用吸声材料,如中庭背景墙的黑色背衬墙体实际是吸声软包材料;游泳馆运用了耐腐蚀的超微孔吸声铝板;体育场馆采用了穿孔铝板结合吸音棉设计;形体房运用了木质吸音板。细节的设计与追求,也是我们永恒地追索目标。
上海复旦江湾校区新建综合体育馆外部实景图
上海复旦江湾校区新建综合体育馆外部实景图
上海复旦江湾校区新建综合体育馆外部实景图
上海复旦江湾校区新建综合体育馆外部实景图
上海复旦江湾校区新建综合体育馆外部实景图
上海复旦江湾校区新建综合体育馆内部实景图
上海复旦江湾校区新建综合体育馆内部实景图
上海复旦江湾校区新建综合体育馆内部实景图
上海复旦江湾校区新建综合体育馆内部实景图
上海复旦江湾校区新建综合体育馆内部实景图
上海复旦江湾校区新建综合体育馆内部实景图
上海复旦江湾校区新建综合体育馆内部实景图
上海复旦江湾校区新建综合体育馆内部实景图
上海复旦江湾校区新建综合体育馆内部实景图
上海复旦江湾校区新建综合体育馆内部实景图
上海复旦江湾校区新建综合体育馆内部实景图
上海复旦江湾校区新建综合体育馆内部实景图
上海复旦江湾校区新建综合体育馆内部实景图
上海复旦江湾校区新建综合体育馆内部实景图
上海复旦江湾校区新建综合体育馆内部实景图
上海复旦江湾校区新建综合体育馆内部实景图
上海复旦江湾校区新建综合体育馆内部实景图
上海复旦江湾校区新建综合体育馆内部实景图
上海复旦江湾校区新建综合体育馆内部实景图
上海复旦江湾校区新建综合体育馆内部实景图
上海复旦江湾校区新建综合体育馆内部实景图
上海复旦江湾校区新建综合体育馆内部实景图
上海复旦江湾校区新建综合体育馆内部实景图
上海复旦江湾校区新建综合体育馆内部实景图
上海复旦江湾校区新建综合体育馆内部实景图
上海复旦江湾校区新建综合体育馆平面图
上海复旦江湾校区新建综合体育馆平面图
上海复旦江湾校区新建综合体育馆平面图
上海复旦江湾校区新建综合体育馆平面图
上海复旦江湾校区新建综合体育馆剖面图
上海复旦江湾校区新建综合体育馆立面图
客服
消息
收藏
下载
最近







































