查看完整案例

收藏

下载
项目名称:匈牙利圣斯蒂芬学院
位置:匈牙利
建筑师:英国建筑师协会2
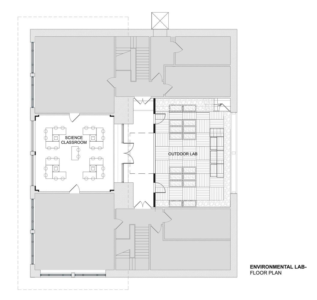
自1928年以来,圣斯蒂芬匈牙利学校一直是一个锚定机构纽约,提供预钾至8th给学生和他们的家庭打分。为了推进灵活的现代学习和社区体验,学校设施及其与附属教堂的共用集合空间得到了翻新。一个未被充分利用的屋顶露台空间被改造成了一个环境科学实验室,有室内和室外学习空间,由一扇玻璃车库门连接。此外,屋顶平台上的移动式种植机可以被推到一边,以便于白天和晚上举办大型社交活动。室内实验室也举办董事会议。过时的现有低层集会大厅被重新设计,以更好地作为学校和周围社区项目可行的剧院和体育馆空间。学校的可持续性依赖于其作为直接和社区成员的灵活资源的扩大作用。未充分利用的屋顶露台空间被改造成了一个环境科学实验室,它有室内和室外倾斜空间,由一扇玻璃车库门连接。此外,屋顶平台的移动种植机可以被推到一边,以适应白天和晚上的大型社交活动。室内实验室主持董事会会议。
匈牙利圣斯蒂芬学院外部实景图
匈牙利圣斯蒂芬学院外部夜景实景图
匈牙利圣斯蒂芬学院内部实景图
匈牙利圣斯蒂芬学院内部实景图
匈牙利圣斯蒂芬学院内部实景图
匈牙利圣斯蒂芬学院内部实景图
匈牙利圣斯蒂芬学院平面图
匈牙利圣斯蒂芬学院平面图
匈牙利圣斯蒂芬学院平面图
匈牙利圣斯蒂芬学院平面图
匈牙利圣斯蒂芬学院立面图
匈牙利圣斯蒂芬学院立面图
匈牙利圣斯蒂芬学院立面图
客服
消息
收藏
下载
最近
















