查看完整案例

收藏

下载
项目名称:美国博伊西州立大学视觉艺术中心
位置:美国
建筑师:HGA、Lombard Conrad
摄影师:Paul Crosby
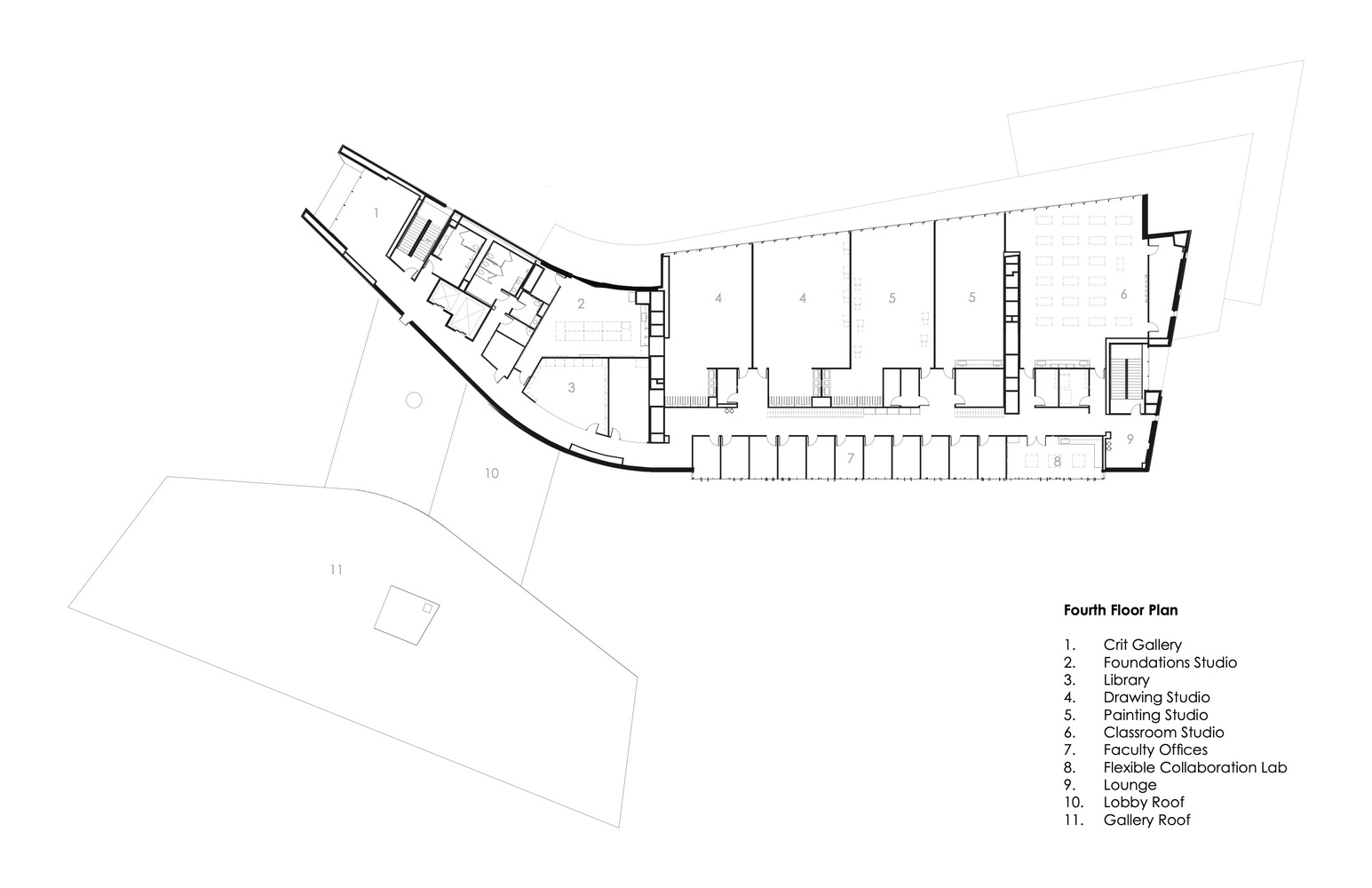
博伊西州立大学面积9067.3 m2 的视觉艺术中心是该校新建的顶级艺术场所,彰显了学校对艺术教育的重视。建筑位于校园西侧边缘,大学希望艺术中心成为连接校园和社区的文化关联和重要门户。项目功能涵盖了2D和3D授课空间、评图空间、公共画廊及学院和行政部门办公室。建筑体量由三个主要功能空间生成:建筑一侧是由石灰石外立面和北侧玻璃围合而成的高个子艺术工作室,拥有远眺博伊西河和市中心的广阔视野,另一侧是两层的蓝色不锈钢表皮的展览空间,中间由通透明亮的大堂空间相连,设计对场地、体量和朝向的处理致力于打造校园门户,遵循“将艺术展示给大众”的主题思想,并发展建筑的可持续性。大堂空间两侧各自形成了独特的艺术景观:西艺术庭院将临近画廊的功能向室外延伸,成为大堂前重要的公共前景;东艺术庭院则是由不同种类的植物编织成的锦毯,为雕塑作品的展示提供了空间。庭院路径呈放射状,从大堂入口连通至校园各处。
除了优化工作室室内北向采光,场地平面布置还为底层的制陶和雕塑工作室提供了必需的外部通道和户外工作场所。四层教学工作室的前端尖角处各有一个评图空间,末端供人闲坐休息。重型机械和排气系统独立置于五层护栏后方,隐藏在公众视线之外,与由电梯到达的全封闭机械空间相邻。呈弧角的五层工作室的6.35mm石灰石饰面固定于可随建筑形式自由弯曲的蜂窝板上,落地玻璃窗为艺术工作室提供了均匀的北向漫射光和远处的山景。两层的展览空间立面由富有动感的蓝色不锈钢瓷砖构成,反射当季当时的自然光线,形成色彩斑驳的奇幻景象。公共大堂的全高玻璃窗则强化了校园和社区之间通透的连接,并在夜间亮起迎接的灯塔。大学自项目之初就表达了通过视觉艺术中心的建立提升学校地区和国家知名度的愿景。设计为前往教室的学生和途经 Capitol 大街的居民提供了重要的入口门户。在启发创造的新身份的引导下,建筑使得视觉艺术和领先教育机构的教学设施并驾齐驱,创造出邀请所有人进入探索感受的标志性的新入口。
美国博伊西州立大学视觉艺术中心外部实景图
美国博伊西州立大学视觉艺术中心外部实景图
美国博伊西州立大学视觉艺术中心外部实景图
美国博伊西州立大学视觉艺术中心外部实景图
美国博伊西州立大学视觉艺术中心外部实景图
美国博伊西州立大学视觉艺术中心外部实景图
美国博伊西州立大学视觉艺术中心内部实景图
美国博伊西州立大学视觉艺术中心内部实景图
美国博伊西州立大学视觉艺术中心内部实景图
美国博伊西州立大学视觉艺术中心内部实景图
美国博伊西州立大学视觉艺术中心内部实景图
美国博伊西州立大学视觉艺术中心内部实景图
美国博伊西州立大学视觉艺术中心平面图
美国博伊西州立大学视觉艺术中心平面图
美国博伊西州立大学视觉艺术中心平面图
美国博伊西州立大学视觉艺术中心平面图
美国博伊西州立大学视觉艺术中心立面图
美国博伊西州立大学视觉艺术中心立面图
客服
消息
收藏
下载
最近





















