查看完整案例

收藏

下载
项目名称:巴西瓦雷拉诊所
位置:巴西
建筑师: RMK!阿基特图拉
标志性和永恒的建筑。基于这一需求,位于拐角处一小块地块的 Varela 诊所新总部由两层呈线性排列的楼层组成,并以不同物质的正式单位解释了需求计划。在拐角处,接待处呈现为一个悬挂在地面上的透明体量,以一种友好的方式与周围密集的城市环境融为一体。通道由两条路线提供,并通过位于更大流量路线的坡道和楼梯流畅地进行。在内部,一个木制立方体组织了空间,并为项目的主角眼科诊所提供了庇护。办公室通向一个花园,花园由裸露的混凝土山墙和垂直的木制百叶窗隔开,放置在建筑物的对齐上。花园除了具有景观功能外,还允许办公室与外部相结合,为空间提供隐私和声学保护。进行专业活动所必需的照明控制由自动窗帘提供。楼梯将自己呈现为木制立方体的减法,通向位于上层的心理教育办公室。以金属涂层包裹的形式单元为特征,投影在底层的悬臂上,通过棱柱体体积的减法,它可以为周围环境提供最佳视野。在与邻近地块接壤的地块的表面下,由天窗照亮的流通和服务区组织流动并为开展活动提供支持。
巴西瓦雷拉诊所外部实景图
巴西瓦雷拉诊所外部实景图
巴西瓦雷拉诊所外部实景图
巴西瓦雷拉诊所外部实景图
巴西瓦雷拉诊所内部实景图
巴西瓦雷拉诊所内部实景图
巴西瓦雷拉诊所内部实景图
巴西瓦雷拉诊所内部实景图
巴西瓦雷拉诊所内部实景图
巴西瓦雷拉诊所内部实景图
巴西瓦雷拉诊所内部实景图
巴西瓦雷拉诊所内部实景图
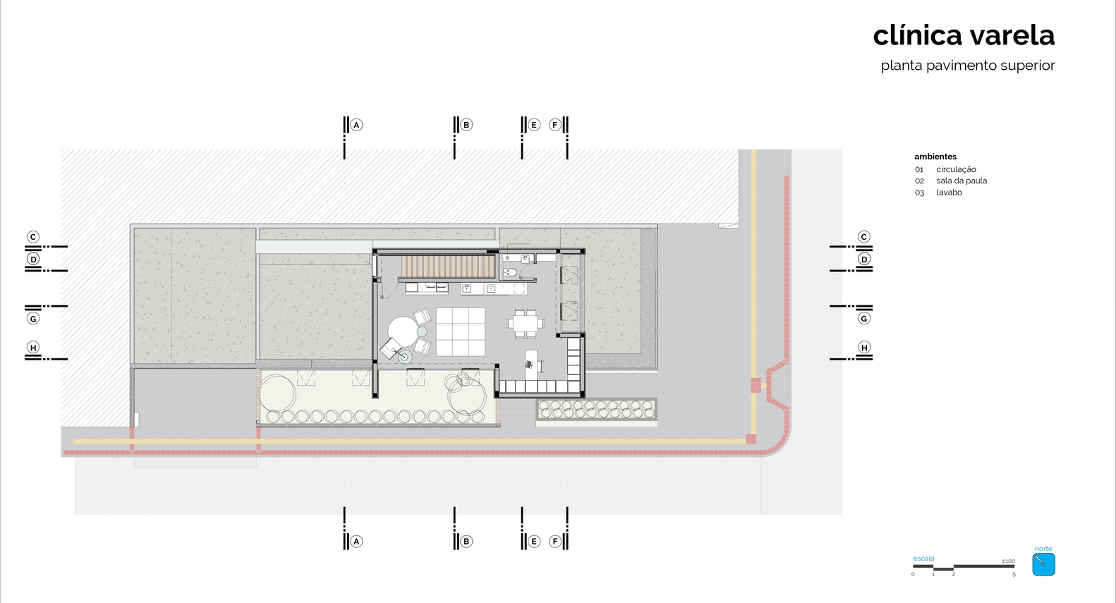
巴西瓦雷拉诊所平面图
巴西瓦雷拉诊所平面图
巴西瓦雷拉诊所剖面图
巴西瓦雷拉诊所立面图
巴西瓦雷拉诊所立面图
客服
消息
收藏
下载
最近




















