查看完整案例

收藏

下载
项目名称:厄瓜多尔马术诊所
位置:厄瓜多尔
设计公司:#1028 Arquitectura y Paisaje
摄影师:Lo Simple Estudio,Fernanda Bertero,尼古拉斯·巴斯克斯
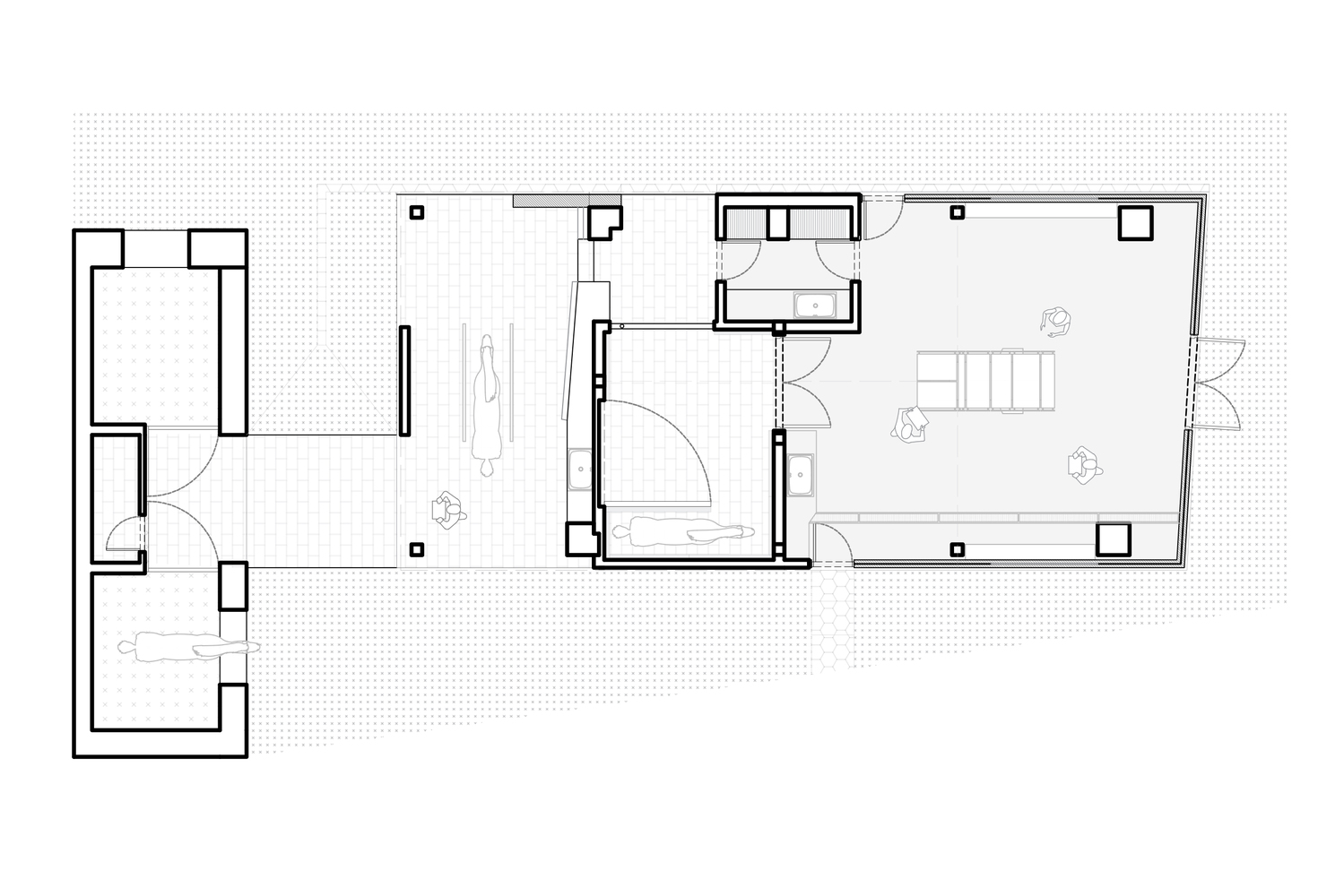
#1028是PaulaCárdenas,JoséFreire和Alejandro Ramos在基多的建筑和景观项目。我们的项目力求在当代文化和理论之间取得平衡。我们庆祝架构的视觉潜力,将程序理解为一种性能,并将架构视为其设置。马诊所是外科手术的手术室。从仓库的类型学出发,我们探索了极简主义的美学。通过增强常用材料的性能,我们寻求提供一种直观且实验性的解决方案。庆祝马术代表的惊人表现:马进入转身室,在该空间中被垫子围绕着,使它入睡。一扇1.8mx 4.2m的门打开;昏迷的马腿悬在横梁上,穿过马栏进入手术室。一旦进入,外科医生就会介入。最终,手术后,这匹马带着垫子在房间里醒来。如果无法幸免,它将通过前门离开,该前门仅在马死后才打开。诊所设计为沉浸式,风景秀丽且具有象征意义的空间。一个小型的异教寺庙,致力于庆祝骑马的仪式。
厄瓜多尔马术诊所外部实景图
厄瓜多尔马术诊所外部实景图
厄瓜多尔马术诊所外部实景图
厄瓜多尔马术诊所内部实景图
厄瓜多尔马术诊所内部实景图
厄瓜多尔马术诊所内部实景图
厄瓜多尔马术诊所平面图
厄瓜多尔马术诊所平面图
厄瓜多尔马术诊所立面图
厄瓜多尔马术诊所立面图
厄瓜多尔马术诊所立面图
客服
消息
收藏
下载
最近














