查看完整案例

收藏

下载
项目名称:长春中医药大学附属第三临床医院
位置:吉林 长春
设计公司:清华大学建筑设计研究院有限公司
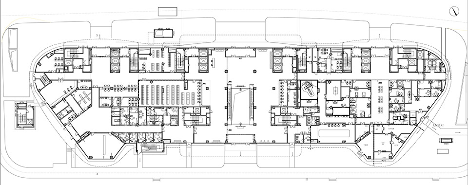
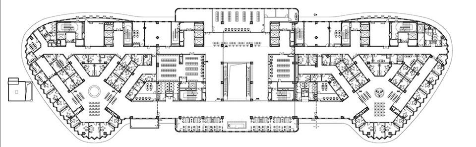
长春中医药大学附属第三临床医院为新建三级甲等中医医院工程,位于吉林省长春市长春中医药大学园区东北角,总建筑面积83561m2,其中地上57966 m2,地下25595m2。平面布局为一字型六层裙房,上部东西设A、B两座塔楼;地上裙房设门诊部、急诊部、疗区住院部、体检中心、检验科等功能用房,本项目总病床数700床。平面功能布局充分结合地形。三角形住院部平面,最大化有利朝向,让所有病房均享有南向采光和校园景观。朝向城市干道的一侧布置交通核和辅助用房,起到隔离城市轻轨噪音的作用。建筑表皮取意于中国传统竹简的竖向肌理,强调带型窗与铝板幕墙竖向分隔,造型现代典雅,虚实、尺度、比例与周边环境的协调;建筑材料与构件、色彩的选择力求简洁,打造现代、内敛而富有变化的建筑形象,表达中医院建筑所特有的文化特质。立面设计希望通过适宜的外观及细部设计,使其满足内部功能的情况下,避免自我孤立的状态,与周边城市及环境形成联系。建筑立面不仅是保温隔热的功能性界面,更是内部功能诚实的对外反应,内外物质交换的最为重要的媒介。朝西立面通过调整窗户角度有利解决西晒问题,同时把人的视线引导至最佳景观视角,有效提高康复、疗养的效果。两个住院部虽隔一定的距离,仍有对视个心里感受。调整窗户角度,把人的视线错开,有利于病房的私密性。朝北立面窗间墙方向与轻轨方向平行,使隔声效果最佳,避免噪声影响就诊和住院患者的正常休息。以人为本的设计原则从外而内贯穿建筑内部功能和人流组织的设计全过程。第三临床医院建成后已成为净月潭畔的城市公共建筑新地标。
长春中医药大学附属第三临床医院外部实景图
长春中医药大学附属第三临床医院外部实景图
长春中医药大学附属第三临床医院外部实景图
长春中医药大学附属第三临床医院外部实景图
长春中医药大学附属第三临床医院外部实景图
长春中医药大学附属第三临床医院外部实景图
长春中医药大学附属第三临床医院内部实景图
长春中医药大学附属第三临床医院内部实景图
长春中医药大学附属第三临床医院内部实景图
长春中医药大学附属第三临床医院平面图
长春中医药大学附属第三临床医院平面图
长春中医药大学附属第三临床医院平面图
长春中医药大学附属第三临床医院平面图
长春中医药大学附属第三临床医院立面图
客服
消息
收藏
下载
最近

















