查看完整案例

收藏

下载
项目名称:日本SDC牙科诊所
位置:日本
设计公司:Takeru Shoji Architects
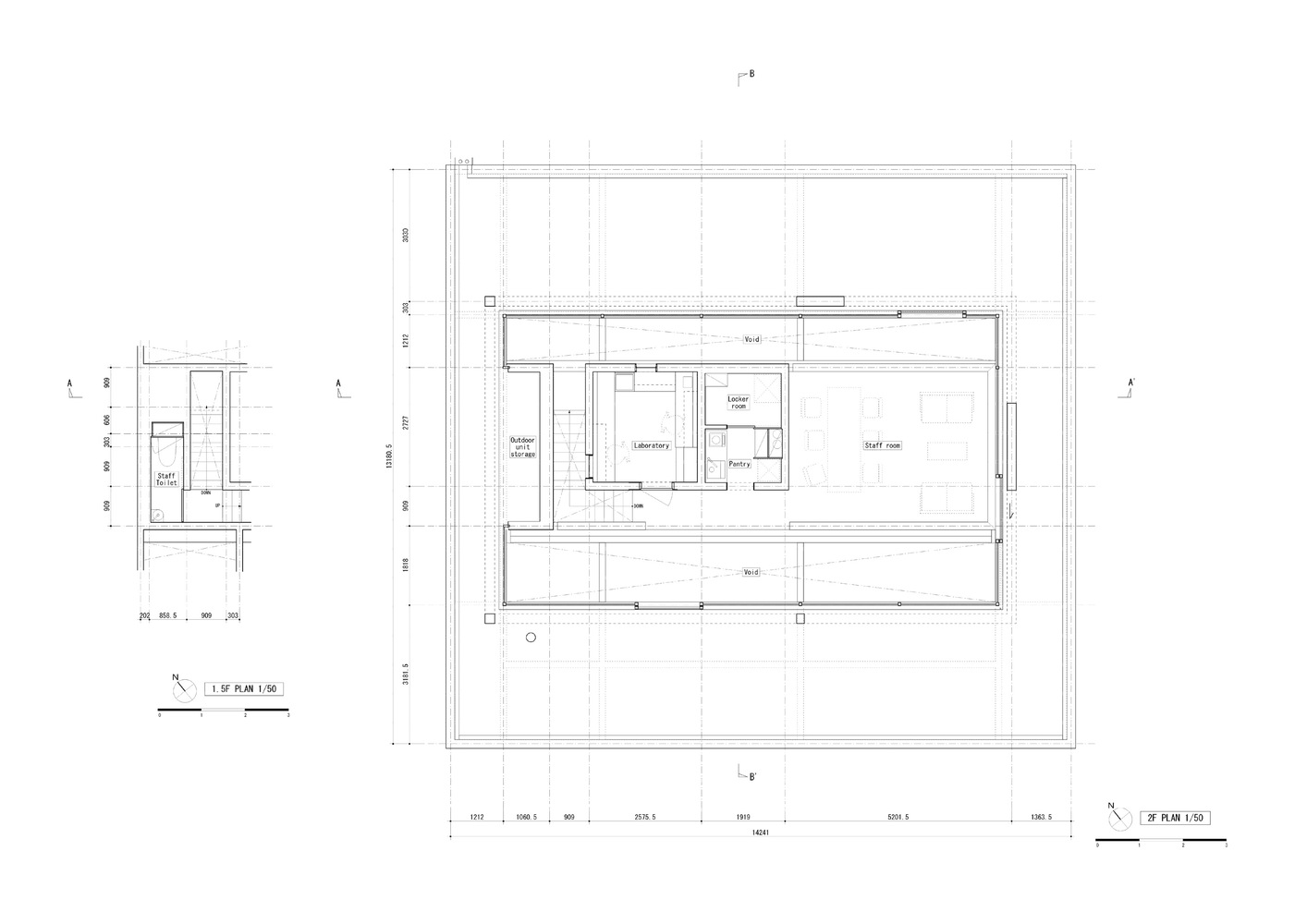
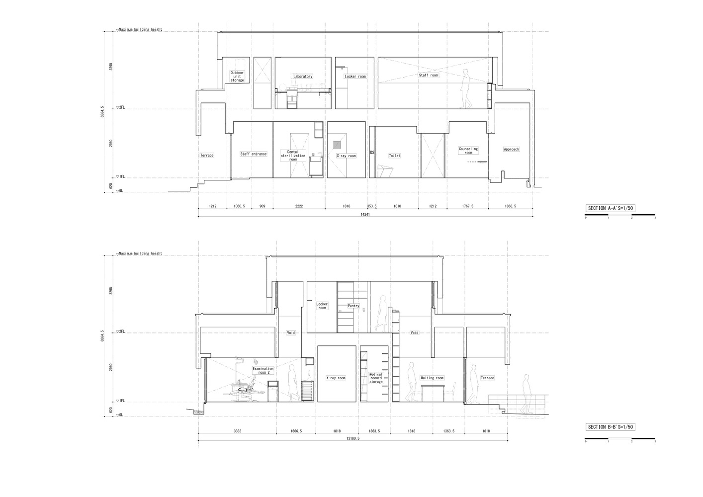
该地点位于新泻县燕市市秋叶町。我们设计的诊所不仅仅是牙科诊所,它是日托中心,书店和一个可以像在公园一样愉快地度过时光的地方。在典型的牙科诊所不宜流连的地方,这家牙科诊所不仅鼓励患者到诊所就诊,还为他们提供了丰富的休闲方式,可以在约会之前和之后悠闲地度过时间。鼓励诊所的所有人员在书店或日托中心“随心所欲”花费时间。这让位于一种新型的牙科诊所,即“住宿的地方”,“再次光临”并舒适地度过了时间。该建筑是两层楼的木制结构,其中1楼是诊所,而2楼则是供员工使用。1F将消毒,X射线,病历存储和厕所空间布置在建筑物的中心,并作为核心。外围墙完全是玻璃墙,连接检查室和等候区的露台将这种建筑形式向外延伸,并且花园围绕着建筑。此外,在整个建筑物的顶部放置了一个大“帽子”,“帽子”的引擎盖在周围形成了拱形。这些拱形是通过将引擎盖拉成桥接两个点的弧线而创建的。从这种建筑形式诞生的是,在内部和外部之间形成了一个模糊的区域,该区域调节并保护建筑物免受雪,雨,夏季太阳辐射和冬季冬季弥彦山吹下的严酷天气。这种缓冲空间具有罕见的品质,可为候诊室和检查室的人们提供隐私,同时还使他们可以自由享受四个季节。
日本SDC牙科诊所外部实景图
日本SDC牙科诊所外部实景图
日本SDC牙科诊所外部实景图
日本SDC牙科诊所外部实景图
日本SDC牙科诊所外部实景图
日本SDC牙科诊所外部夜景实景图
日本SDC牙科诊所外部夜景实景图
日本SDC牙科诊所外部夜景实景图
日本SDC牙科诊所内部实景图
日本SDC牙科诊所内部实景图
日本SDC牙科诊所内部实景图
日本SDC牙科诊所内部实景图
日本SDC牙科诊所内部实景图
日本SDC牙科诊所内部实景图
日本SDC牙科诊所内部实景图
日本SDC牙科诊所内部实景图
日本SDC牙科诊所平面图
日本SDC牙科诊所平面图
日本SDC牙科诊所剖面图
客服
消息
收藏
下载
最近






















