查看完整案例

收藏

下载
项目名称:西班牙阿尔梅里亚维加生态博物馆
位置:西班牙
设计公司:CASTILLO MIRAS ARQUITECTOS
本项目的任务书中规定,需要“打造一座能够代表Vega de Almería典型农舍,且对此类建筑进行全新解读的建筑”。设计者根据要求,设计了不同功能的白色体量,通过将它们相连,呈现出农舍的传统形象,同时他们在处理建筑结构时还遵循了笛卡尔几何结构的有机生长理论。从形式上看,本设计符合当下流行的地中海建筑风格,采用了厚重、平滑、且被粉刷为白色的墙体。任务书中所规定的元素也得到了重新解读,例如门廊设计为典型的传统空间,为人们在夏日里的工作、娱乐和生活创造空间。博物馆室外区域的设计围绕水源展开,水是干旱气候下农业的基本要素,设计者对水资源的储存、分配的基础设施进行重新诠释:池塘、灌溉水渠和饮水系统。本项目还考虑了主动和被动节能措施,使建筑能够实现零能耗和最节能等级。建筑中安装有一个小型光伏电站和加拿大式井,能够利用土壤的温度调节特性,使空气在这些设备中循环、然后再流通到建筑物内部。
西班牙阿尔梅里亚维加生态博物馆外部实景图
西班牙阿尔梅里亚维加生态博物馆外部实景图
西班牙阿尔梅里亚维加生态博物馆外部实景图
西班牙阿尔梅里亚维加生态博物馆外部实景图
西班牙阿尔梅里亚维加生态博物馆外部实景图
西班牙阿尔梅里亚维加生态博物馆外部实景图
西班牙阿尔梅里亚维加生态博物馆外部实景图
西班牙阿尔梅里亚维加生态博物馆外部实景图
西班牙阿尔梅里亚维加生态博物馆外部实景图
西班牙阿尔梅里亚维加生态博物馆外部实景图
西班牙阿尔梅里亚维加生态博物馆外部实景图
西班牙阿尔梅里亚维加生态博物馆外部实景图
西班牙阿尔梅里亚维加生态博物馆外部实景图
西班牙阿尔梅里亚维加生态博物馆外部实景图
西班牙阿尔梅里亚维加生态博物馆外部实景图
西班牙阿尔梅里亚维加生态博物馆外部实景图
西班牙阿尔梅里亚维加生态博物馆外部实景图
西班牙阿尔梅里亚维加生态博物馆外部实景图
西班牙阿尔梅里亚维加生态博物馆外部实景图
西班牙阿尔梅里亚维加生态博物馆外部实景图
西班牙阿尔梅里亚维加生态博物馆外部实景图
西班牙阿尔梅里亚维加生态博物馆外部实景图
西班牙阿尔梅里亚维加生态博物馆外部实景图
西班牙阿尔梅里亚维加生态博物馆外部实景图
西班牙阿尔梅里亚维加生态博物馆外部实景图
西班牙阿尔梅里亚维加生态博物馆外部实景图
西班牙阿尔梅里亚维加生态博物馆外部实景图
西班牙阿尔梅里亚维加生态博物馆外部实景图
西班牙阿尔梅里亚维加生态博物馆外部实景图
西班牙阿尔梅里亚维加生态博物馆外部实景图
西班牙阿尔梅里亚维加生态博物馆外部实景图
西班牙阿尔梅里亚维加生态博物馆外部实景图
西班牙阿尔梅里亚维加生态博物馆外部实景图
西班牙阿尔梅里亚维加生态博物馆内部实景图
西班牙阿尔梅里亚维加生态博物馆内部实景图
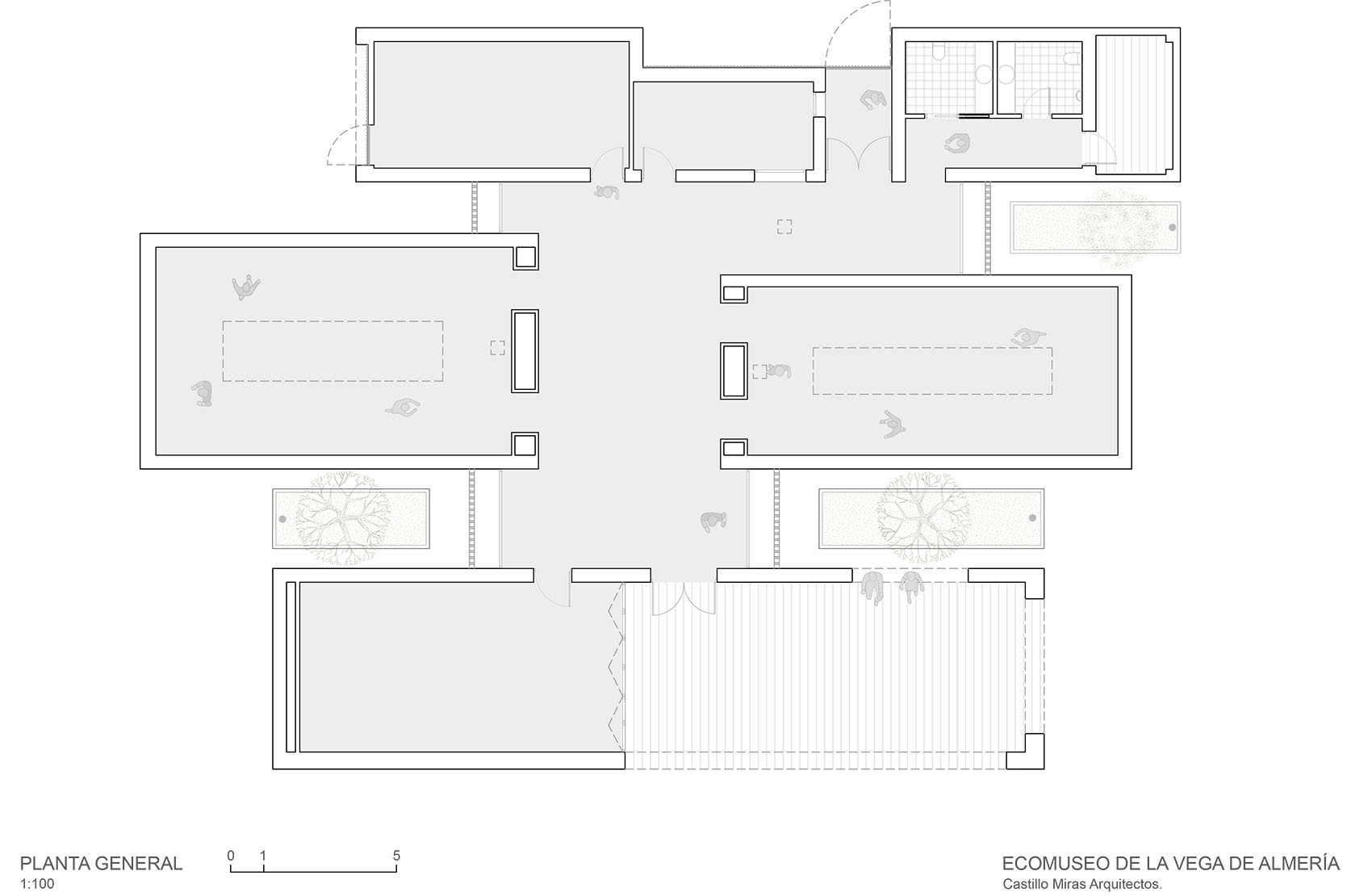
西班牙阿尔梅里亚维加生态博物馆平面图
西班牙阿尔梅里亚维加生态博物馆平面图
西班牙阿尔梅里亚维加生态博物馆剖面图
西班牙阿尔梅里亚维加生态博物馆剖面图
西班牙阿尔梅里亚维加生态博物馆立面图
西班牙阿尔梅里亚维加生态博物馆立面图
客服
消息
收藏
下载
最近












































